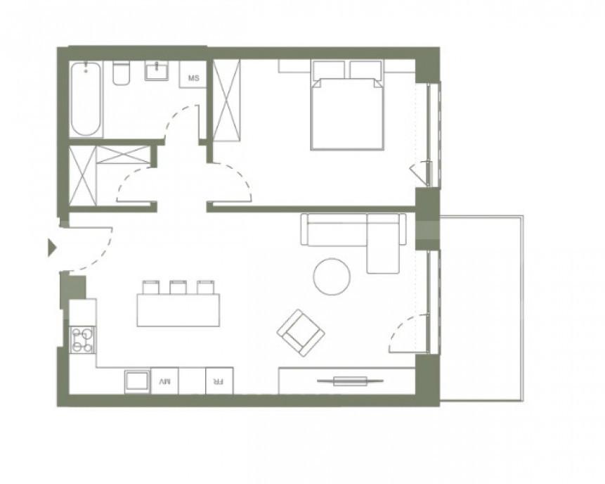
Blitz va prezinta Ansamblul ERA by Hexagon - un concept modern de regenerare urbana situat pe malul raului Nadas in inima Clujului Proiectul combina locuinte de 2 3 4 camere alaturi de studio-uri duplexuri cu gradina si penthouse-uri cu facilitati integrate spatii verzi piste pentru bicicleta pod pietonal gradinita supermarket si zone comunitare Materialele si dotarile sunt de cel mai inalt nivel iar ansamblul respecta standardele nZEB prin solutii sustenabile energie geotermala pompe de caldura panouri solare In plus Hexagon are o reputatie solida in piata--acest proiect este ideal pentru clientii care cauta confort calitate si un stil de viata urban responsiv Apartamentele se predau FINISATE si cu baile utilate Confortul termic pe sezon de vara este gandit in felul urmator -Jaluzelele se inchid manual sau automat in conditii de insorire Recuperatoarele de caldura asigura aportul de aer proaspat la interior pentru un climat sanatos si economie de energie -Pompele de caldura produc agentul termic pentru sistemul de racire pasiva de la nivelul tavanelor din spatiile de locuit -Panourile fotovoltaice furnizeaza energia electrica pentru functionarea pompelor de caldura Sistemul de automatizare al cladirii optimizeaza consumul de energie Confortul termic pe sezon de iarna este gandit in felul urmator -recuperatoarele de caldura asigura aportul de aer proaspat la interior pentru un climat sanatos si economie de energie -Iarna pompele de caldura produc agentul termic necesar sistemului de incalzire din tavanele apartamentelor -iarna in perioada foarte rece cazanele pe gaz completeaza puterea necesara producerii agentului termic S istemul de automatizare al cladirii optimizeaza consumul de energie Apartamentul prezentat are o suprafata utila de 54 9 mp plus o logie de 7 6 mp Pretul afisat este valabil pentru plata unui avans de 90 fara TVA Pentru plata unui avans de 60 pretul este de 149 450 euro fara TVA Pentru plata unui avans de 30 pretul este de 152 500 euro fara TVA Pretul parcarilor subterane este de 14 500 plus TVA Cod oferta / ID BLITZ P150638 Id intern P150638
⚠ AtenÈ›ie !
Nu plăti niciodată în avans într-un cont bancar până când nu l-ai întâlnit pe vânzător și ați semnat un acord.
Nu furniza informații confidențiale în discuții pe WhatsApp/Telegram sau alte aplicații de mesagerie unde utilizatorii își ascund ușor identitatea, deoarece te poți expune la fraude sau înșelăciuni.
Nu furniza niciodată detaliile cardului tău bancar (număr, data expirării, CVV). Te expune direct la fraude bancare.
Primirea unui mesaj pe WhatsApp/Telegram cu un ID scanat nu înseamnă că ai identificat cumpărătorul. Acest lucru se face pe loc, când semnați un acord de cumpărare.
Când comanzi online, alege livrarea cu verificare. Pentru un cost relativ mic, te protejezi de eventuale neplăceri.
VAND SAU SCHIMB CU CASA IN URMATOARELE ZONE REMETEA/VOINICENILOR Sancraiu de Mures UNIRII Locatie excelenta - Cartier Unirii intr-un bloc nou situat la etajul 1 Suprafata utila 50 4 mp Terasa spatioasa 62 8 mp Compartimentare decomandat cu living open-space si bucatarie Boxa loc de parcare incluse in pret Apartamentul este complet mobilat si utilat modern cu finisaje de inalta calitate si toate utilitatile necesare Este ideal pentru cei care isi doresc confort liniste si un spatiu generos atat in interior cat si in exterior Caracteristici principale Living open-space cu bucatarie Dormitor luminos Baie complet echipata Terasa de peste 60 mp - perfecta pentru relaxare dining sau amenajare tip gradina Loc de parcare inclus Boxa pentru depozitare Bloc nou zona linistita si acces facil la puncte de interes Pentru mai multe informatii sau vizionari ma puteti contacta in privat Cod oferta / ID BLITZ P152240 Id intern P152240
BLITZ va propune un apartament spectaculos situat intr-o cladire istorica din 1904 in una dintre cele mai frumoase zone ale Timisoarei - Piata Iosefin Spatiul pastreaza detalii arhitecturale autentice si emana eleganta la fiecare pas fiind potrivit atat pentru locuinta cat si pentru birou profesional avocatura notariat consultanta 135 mp utili 45 mp subsol inscrisi in CF pod separat si gradina privata - o combinatie rara de spatiu stil si functionalitate Compartimentarea este versatila -3 camere mari 1 camera suplimentara ideale pentru locuinta sau birou Pietei Rafinament si istorie - -bucatarie separata cu camara baie mare WC de serviciu -hol elegant si balcon spatios cu vedere pe ambele parti Pastreaza tamplaria si parchetul original din lemn iar pozitionarea la etajul 1 din 2 ofera confort lumina naturala si acces facil Locatie excelenta semi-centrala aproape de institutii restaurante si transport in comun Gradina...
Blitz ofera spre vanzare o proprietate deosebit de versatila amplasata intr-o zona excelenta cu deschidere la doua strazi - oferind numeroase posibilitati de utilizare Noul proprietar poate transforma imobilul intr-o locuinta personala confortabila sau intr-o investitie profitabila cu potential de amenajare ca spatiu comercial birouri clinica medicala pensiune sau hostel Cladirea este structurata pe demisol parter etaj si pod fiecare nivel fiind contorizat separat pentru gaz si electricitate Demisolul cu intrare separata din strada a functionat anterior ca spatiu comercial si are o suprafata utila de 53 32 mp fiind compus dintr-o camera spatioasa bucatarie si hol Parterul cuprinde 3 camere luminoase bucatarie baie cu geam si o terasa inchisa ideala pentru relaxare Etajul a fost complet refacut oferind un living modern cu mini bar o bucatarie mare doua camere si o baie generoasa cu cada Podul poate fi amenajat suplimentar in functie de necesitati Curtea ...
Blitz ofera spre inchiriere un apartament modern cu 3 camere semidecomandate situat in zona centrala - Parcul 14 Iulie o locatie excelenta aproape de restaurante supermarketuri mijloace de transport in comun si zone verzi Detalii apartament o Suprafata utila 55 mp o Etaj 1/4 o Compartimentare - 2 dormitoare - Living open-space cu bucataria - Baie moderna - Balcon Dotari si avantaje - Finisaje premium si mobilier modern - Centrala termica proprie cu incalzire prin calorifere - Se inchiriaza complet mobilat si utilat - Loc de parcare inclus in pret Disponibil imediat ideal pentru cei care isi doresc confort stil si o locatie centrala cu acces facil catre toate punctele de interes din oras Contacteaza-ne pentru o vizionare Cod oferta / ID BLITZ P43526 Id intern P43526
Vila cu piscina spectaculoasa de vanzare in zona Grand Hotel Italia O proprietate cu adevarat unica ce imbina eleganta designului arhitectural cu rafinamentul detaliilor interioare si pozitionarea eficienta a locatiei Situata intr-una dintre cele mai cautate zone ale Clujului - la limita cartierului Andrei Muresanu cu Buna Ziua aceasta vila iti ofera confort si o atmosfera aparte Detalii tehnice Teren 1242 mp Front 34 ml Suprafata construita 620 mp Suprafata utila totala 423 mp Regim de inaltime D P E M Proprietatea este din anul 2004 si renovata in 2013 2 locuri de parcare - garaj pentru doua masini De la renovare a fost locuita doar cate 3 saptamani pe an Exterior Gradina terasata in 2 trepte in partea de jos este piscina pe un teren de aproximativ 1000 mp iar in partea de sus este o livada cu pomi fructiferi 242 mp Spatiu pentru crama si loc pentru depozitare sunt incastrare in partea de jos a terenului cu livada O curte spa...
Descopera noul proiect rezidential de pe str Margeanului 1B imobil A1 Baia Mare un proiect marca Revolution Residence Va propunem spre vanzare apartamente cu 2 si 3 camere avand suprafete cuprinse intre 45 84 mpc si 72 58 mpc plus terasa cu suprafata cuprinsa intre 3 75 mpc si 20 69 mpc Achizitioneaza unul din apartamentele cu 2 sau 3 camere si beneficiezi de design gratuit pentru amenajarea camerei de baie Detalii proiect - locatie strada Margeanului 1B imobil A1 Baia Mare - regim de inaltime P 4 si cuprinde un total de 60 unitati de apartamente - acces foarte usor la mijloacele de transport in comun restaurante magazine mall - pozitionare excelenta blocul fiind retras ferit de agitatia orasului - standarde ridicate de siguranta si calitate - design modern - parcare exterioara - boxe depozitare - supraveghere video - acces privat - lift - spatii comerciale la parter - imobilul se vinde locuibil cu instalatie de incalzire prin pardoseala si centr...
Va propun spre vanzare un apartament 2 camere decomandat confort 1 suprafata utila 58mp situat la etajul 1/7 finisat modern centrala termica balcon imobil cu termen de finalizare in 2025 aflat in Cartierul rezidential Solar Berceni B-dul Metalurgiei sector 4 Proprietarul detine un loc de parcare proprietate personala situat in fata blocului In zona sunt scoli gradinite hypermarket-uri magazine statii STB si sunt amenajate spatii verzi Pret apartamentului cu locul de parcare inclus - 92000 eur pret negociabil Comision standard Pentru informatii suplimentare si vizionari nu ezitati sa ma contactati Agent Ramiro Imob - Daniel tel 0786 660 295
Vanzare apartament 2 camere situat in ansamblul Astorium Garden situat in zona Theodor Pallady - Str Drumul Gura Calitei Beneficiile locatiei in complexul Astorium Garden - Locatarii beneficiaza de o piscina exclusiva spatii verzi amenajate o pista de alergare si locuri de joaca pentru copii - Complexul se afla in apropierea unor centre comerciale importante precum Dedeman Ikea Jumbo si Decathlon facilitand accesul la diverse servicii si produse - Complexul dispune de parcari subterane pentru un grad ridicat de siguranta si protectie a vehiculelor precum si de un sistem de securitate modern oferind un mediu linistit si sigur - La parterul cladirilor se afla spatii comerciale inclusiv un magazin o cafenea si un salon de infrumusetare asigurand acces facil la servicii esentiale si optiuni de petrecere a timpului liber Separat se poate achizitiona si un loc de parcare subteran Pentru informatii suplimentare si vizionari apelati nr de telefon afi...
Zen Space Imobiliare va propune spre vanzare un apartament cu 2 camere semi-decomandat SU 43 mp in sectorul 4 zona Brancoveanu - Budimex - Nitu Vasile Apartamentul este situat la Parterul unui bloc de 8 etaje in curs de reabilitare termica Apartamentul fost renovat in anul 2023 are toate instalatiile electrice si sanitare schimbate si se vinde mobilat utilat complet cum apar in poze In zona avem spitalul Budimex scoli gradinite magazine si spatii verzi cu parculete amenajate Pentru detalii si vizionari va rugam sa ma contactati Paula 0726 171 888 Comision standard
București - 7 August 2025
78.900 €
Atenție
Din motive de securitate și pentru protecția utilizatorilor, această funcționalitate nu este disponibilă pentru locația ta.