Nu plăti niciodată în avans într-un cont bancar până când nu l-ai întâlnit pe vânzător și ați semnat un acord.
Nu furniza informații confidențiale în discuții pe WhatsApp/Telegram sau alte aplicații de mesagerie unde utilizatorii își ascund ușor identitatea, deoarece te poți expune la fraude sau înșelăciuni.
Nu furniza niciodată detaliile cardului tău bancar (număr, data expirării, CVV). Te expune direct la fraude bancare.
Primirea unui mesaj pe WhatsApp/Telegram cu un ID scanat nu înseamnă că ai identificat cumpărătorul. Acest lucru se face pe loc, când semnați un acord de cumpărare.
Când comanzi online, alege livrarea cu verificare. Pentru un cost relativ mic, te protejezi de eventuale neplăceri.
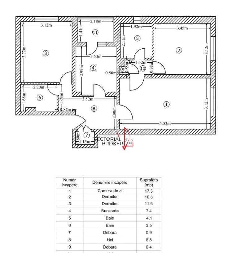
Lux spatiu si localizare premium - tot ce iti doresti intr-un singur apartament Blitz va ofera spre vanzare un apartament spectaculos cu 3 camere situat in inima Sucevei intr-un bloc nou si modern construit in 2020 care imbina confortul urban cu eleganta finisajelor de top Cu o suprafata utila de 93 mp iar cea totala de 98 mp acest apartament decomandat te cucereste din prima o Living open-space cu bucatarie ultramoderna perfect pentru momente in familie sau seri cu prietenii o Doua dormitoare luminoase gandite pentru odihna si intimitate o Doua bai moderne complet utilate o Balcon spatios ideal pentru cafeaua de dimineata o Boxa la subsol pentru spatiu de depozitare suplimentar Totul este gata sa te muti - apartamentul se vinde complet mobilat si utilat cu mobilier de calitate superioara si finisaje premium alese cu atentie pentru un stil elegant si contemporan Beneficiezi de o Centrala termica proprie ferestre termopan usa metalica o...
Proiect finalizat - Predare la cheie Direct dezvoltator - Comision 0 Natura acasa la tine Ansamblul rezidential Belize Residence este amplasat pe in zona Cernica - Pantelimon Ilfov pe soseaua Cernica intr-o zona rezidentiala in plina dezvoltare aflat la doar 30 minute de centrul Bucurestiului si la 10 minute distanta Cora Pantelimon si Ikea Pallady 12 minute distanta statia de metrou Nicolae Teclu 15 minute de Mega Mall 5 minute de Autostrada Soarelui si la 1 minut de soseaua de centura La doar 300m se afla statia mijloacelor de transport public de stat pentru liniile 410 si 459 dar si statia transportatorilor privati ce leaga Cernica de capitala Belize Residence Pantelimon ofera facilitati deosebite paza 24/24 supraveghere video supermarket Mega Image in incinta complexului si beneficiaza in acelasi timp de oaza de liniste oferita de apropierea de padurea Cernica si de lacul Cernica adevarate destinatii de agrement pentru timpul liber Ansamblul este format ...
Ilfov - 6 Aprilie 2025
110.548 €
Atenție
Din motive de securitate și pentru protecția utilizatorilor, această funcționalitate nu este disponibilă pentru locația ta.