Nu plăti niciodată în avans într-un cont bancar până când nu l-ai întâlnit pe vânzător și ați semnat un acord.
Nu furniza informații confidențiale în discuții pe WhatsApp/Telegram sau alte aplicații de mesagerie unde utilizatorii își ascund ușor identitatea, deoarece te poți expune la fraude sau înșelăciuni.
Nu furniza niciodată detaliile cardului tău bancar (număr, data expirării, CVV). Te expune direct la fraude bancare.
Primirea unui mesaj pe WhatsApp/Telegram cu un ID scanat nu înseamnă că ai identificat cumpărătorul. Acest lucru se face pe loc, când semnați un acord de cumpărare.
Când comanzi online, alege livrarea cu verificare. Pentru un cost relativ mic, te protejezi de eventuale neplăceri.
Caut Ap 3 cam termen lung Nemobilat Direct de la Proprietar zona Piata Muncii Calea Calerasilor Mihai Bravu B-dul Decebal Piata Alba iulia Burebista B-dul Uniri Doresc contract pe termen lung Tel 0732 785 232
4 camere 1 camera mansarda de 25 mp balcon de inchiriat Vila interbelica Parc Carol - Unirii - Tineretului Inchiriez etajul 2 al unei vile interbelice solide cu acces separat 2 bai 1 baie completa si o baie de serviciu Pozitionat stradal pentru locuit sau birouri la doar 3 minute de mers pe jos de Parcul Carol intr-o zona centrala excelenta - intre Unirii si Tineretului Se accepta cazare orice nationalitate Compartimentare 5 camere balcon Spatiu recent renovat - Geamuri termopan parchet - 5x Aer conditionat centrala termica proprie - Frigider aragaz masina de spalat - Televizoare diagonala mare - Contoare separate pentru utilitati - Mobilierul poate fi scos la cerere - Se accepta animale de companie - mai cumpar si adaug la cerere un pat si un dulap dormitor Dressing la momentul semnarii contractului
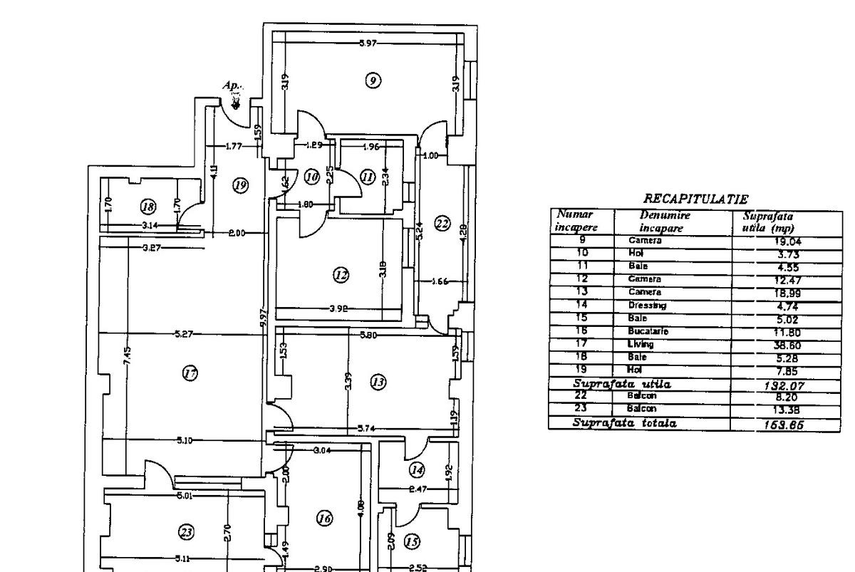
4 camere decomandate situat in ansamblul Washington Residence la etajul 1/4 cu 180 mp utili 2 terase 14 mp si 9 mp loc de parcare in garaj subteran si boxa de depozitare incluse Conditii inchiriere - Parcare subterana boxa incluse - Pret chirie 3500 EUR/luna TVA - Se achita 2 luni garantie 1 luna chirie Contract minim 12 luni Disponibil imediat Caracteristici generale Living generos de 53 mp cu zona de dining acces la terasa principala Bucatarie inchisa complet mobilata si utilata electrocasnice noi Dormitor matrimonial cu dressing baie proprie cada cabina dus obiecte sanitare premium 2 dormitoare secundare ambele cu dressing unul are acces la a doua terasa 2 bai suplimentare grup sanitar pentru oaspeti Hol de intrare spatios cu dressing incorporat Dotari si finisaje Centrala termica proprie calorifere noi Climatizare centralizata cu ventiloconvectoare si termostate in fiecare camera Parchet marmura ceramica -...
Apulum94 va propune spre inchiriere o proprietate care se preteaza pentru activitati de tip salon de infrumusetare de intretinere peronala sau de masaj Este vorbe de un apartament situat la etajul 1 al unei vile apartament 4 incaperi si doua grupuri sanitare situat la mica distanta de Mall Vitan mai exact in plan secund fata de Calea Vitan cu acces din strada Brailita relativ aproape de Prosper Vitan Kaufland Mihai Bravu Metroul este la 8 minute mers pe jos de imobil Metrou Mihai Bravu si din aceasta zona se ajunge usor si in zona Rond Alba Iulia-Decebal Fiecare incapere beneficiaza de racord apa si canalizare Fiind un imobil tip vila avem unde nu avem contorizare separata decat la curentul electric costurile cu apa si incalzire se impart cu locatarii de la parter Daca se doreste se poate inchiria si etajul 2 unde sunt alte 2 camere baie si bucatarie Pentru etajul 2 se doreste o chirie de 700 de euro deasemenea se poate inchiria si garajul de la subsol pentru parcare sa...
Ofer spre inchiriere Ap 3 cam confort 1 Piata Victoriei Dr Felix et 2/8 mobilat cu mobila noua in dormitoare si sufragerie utilat TV cu ecran plat AC termopan plase de tantari usa metalica parchet gresie faianta frigider aragaz prajitor cafetiera microunde masina de spalat Blocul are o singura scara se afla la intersecia Titulescu cu Dr Felix in spatele unui bloc turn nu este stradal oferind liniste are lift nou si este anvelopat 630 euro / luna - anticipa1 luna garantie 630 euro
București - 22 Septembrie 2025
630 €
Atenție
Din motive de securitate și pentru protecția utilizatorilor, această funcționalitate nu este disponibilă pentru locația ta.