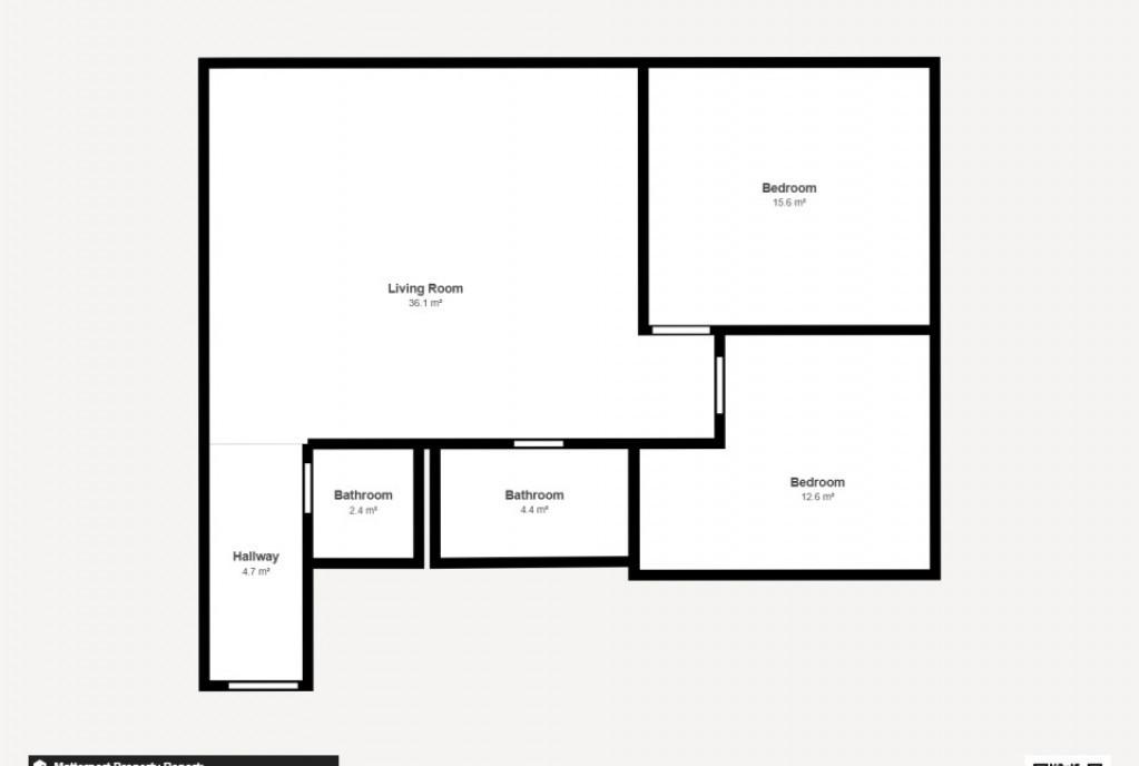
Se ofera spre v acirc nzare un apartament elegant si spatios situat pe strada Teodor Mihali icirc n una dintre cele mai apreciate zone din Cluj-Napoca ndash aproape de Iulius Mall FSEGA si Parcul Iulius Apartamentul are suprafata de 79 64 mp utili si este situat la etajul 1 din 5 icirc ntr-un bloc nou finalizat icirc n 2023 Compartimentare Living cu bucatarie open-space 2 dormitoare luminoase 2 bai complet echipate Hol spatios Blacon cu acces din living si din dormitor Apartamentul se remarca prin finisaje premium si atentie la detalii fiind amenajat cu parchet si usi interioare de calitate superioara obiecte sanitare moderne si elegant integrate bucatarie complet echipata si mobilata Proprietatea se vinde complet mobilata si utilata Separat se poate achizitiona loc de parcare subteran la pretul de 20000 Euro TVA Constructia noua ofera standard ridicat de confort izolatie fonica si termica excelenta precum si o comunitate rezidentiala moderna Un apartament ideal pentru locuinta proprie sau investitie combin acirc nd confortul modern cu o pozitionare excelenta Pentru mai multe detalii sau vizionari nu ezitati sa ne contactati Id intern EXP301
⚠ AtenÈ›ie !
Nu plăti niciodată în avans într-un cont bancar până când nu l-ai întâlnit pe vânzător și ați semnat un acord.
Nu furniza informații confidențiale în discuții pe WhatsApp/Telegram sau alte aplicații de mesagerie unde utilizatorii își ascund ușor identitatea, deoarece te poți expune la fraude sau înșelăciuni.
Nu furniza niciodată detaliile cardului tău bancar (număr, data expirării, CVV). Te expune direct la fraude bancare.
Primirea unui mesaj pe WhatsApp/Telegram cu un ID scanat nu înseamnă că ai identificat cumpărătorul. Acest lucru se face pe loc, când semnați un acord de cumpărare.
Când comanzi online, alege livrarea cu verificare. Pentru un cost relativ mic, te protejezi de eventuale neplăceri.
Exclusivitate Oferim spre vanzare un apartament cu 3 camere semidecomandat situat in zona Big la etajul 1 Suprafata totala 46 mp Detine balcon situat in prelungirea dormitorului Gaz la usa Apartamentul nu prezinta imbunatatiri este liber ocupabil imediat Scara curata cu interfon si cu Vecini civilizati PRET 43000 EURO Va asteptam la vizionare
Regis Imobiliare va propune la vanzare Apartament exclusivist situat in statiunea turistica Poiana Brasov in complexul rezidential Silver Mountain Video prezentare https //www youtube com/watch v 8V7VVAUnlb4 Resortul dispune de sala de fitness jacuzzi piscina interioara piscina exterioara infinity incalzita sauna umeda si uscata restaurant club si 2 sali de conferinta Fie ca doresti sa impletesti utilul cu placutul sa obtii beneficii financiare considerabile prin exploatarea in regim hotelier si sa iti faci si tu concediile aici fie ca dooresti sa iti bucuri viata locuind permnanent in inima muntilor dar si aproape de civilizatie proprietatea aceasta poate fi tot ce ai visat Verdele brazilor si zumzetul padurii te vor trezi de dimineata iar piscurile muntilor te vor incanta fie vara fie iarna Apartamentul isi rasfata locatarii prin privelisti relaxante din fiecare camera si confort termic sporit Cei 79 mp sunt armonios impartiti dupa cum urmeaza - living...
Dobrogea Imobiliare va prezinta spre vanzare un apartament cu 3 camere decomandat situat pe strada Victoriei langa Confectii la etajul 2 Apartamentul este compartimentat astfel hol generos sufragerie 2 dormitoare 2 bai una cu cada si una cu dus bucatarie si 2 balcoane mari inchise cu termopan in care s-a amenajat zona de gatit intr-unul din ele Suprafata utila a acestui imobil este de 75 mp iar suprafata impreuna cu cele 2 balcoane este de 91 mp Imobilul este intr-o stare buna dar se poate amenaja dupa placul fiecaruia suprafata acestuia permitand orice recompartimentare Incalzirea este de la Eneroterm gazele fiind la usa Beneficiaza in pretul de vanzare de o boxa la subsolul blocului intabulata avand o suprafata de 17 3 mp Separat se poate vinde un garaj in proprietate situat la demisolul blocului in suprafata de 17 7 mp la pretul de 15 000 euro Va asteptam la vizionare Ne puteti vizita la sediul nostru situat pe str Pacii nr 6 la parterul hot...
Koncept Imobiliare va ofera spre vanzare un apartament cu 3 camere decomandate situat la parterul unui imobil cu 4 etaje in zona Kaufland in cartierul Marasti Apartamentul are o suprafata utila de 72 mp si este compartimentat astfel bucatarie deschisa 3 dormitoare 2 bai hol despartitor o debara si 2 balcoane inchise cu suprafata de 8 mp Apartamentul se vinde mobilat si utilat asa cum este prezentat in poze si dispune de usa antiefractie la intrare geamuri termopan aragaz frigider masina de spalat rufe etc Imobilul se afla in imediata apropiere de mijloace de transport in comun banci magazine scoli gradinite locuri de joaca pentru copii si spatii verzi Chiar daca este aproape de agitatia orasului apartamentul se afla intr-o zona retrasa si linistita Datorita zonei de amplasare orientarii si a compartimentarii de care dispune apartamentul acesta se recomanda atat pentru investitie cat si pentru locuinta Pentru informatii suplimentare programarea unei vizionar...
PYF020B9004 Imagineaza-ti locuinta perfecta care sa reflecte personalitatea ta si sa satisfaca toate nevoile tale Echipa noastra dedicata te va ajuta in cautarea locuintei ideale Portofoliul nostru include exact ceea ce iti doresti tu si familia ta Alege PYF REAL ESTATE pentru a transforma visul tau in realitate PYF REAL ESTATE va propune prin agentul zonei Marian L spre vanzare un apartament situat in zona Drumul Taberei pe strada Poiana Mare la 5 minute de metrou Orizont Imobilul a fost construit in anul 1961 dispune de interfon Apartamentul este compus din 3 camere avand 2 dormitoare 1 baie si 1 bucatarie fiind situat la etajul 4/4 Apartamentul se vinde mobilat complet stare buna si utilat beneficiind de elemente cu finisaje de calitate pentru a crea o atmosfera cat mai primitoare in viitoarea casa precum calorifere ferestre pvc pereti cu faianta lavabil podele din parchet si gresie usa intrare din metal de asemenea baia dispune de mobilier de ...
București - 29 Iulie 2025
94.900 €
Atenție
Din motive de securitate și pentru protecția utilizatorilor, această funcționalitate nu este disponibilă pentru locația ta.