Blitz va propune un loc in care fiecare membru al familiei tale isi gaseste coltul de liniste dar si spatiul in care se bucura de momente impreuna Un apartament cu suficient loc pentru vise mari pentru joaca relaxare munca de acasa sau cine lungi in familie Acest apartament total decomandat cu o suprafata generoasa este mai mult decat o simpla locuinta - este fundalul ideal pentru un stil de viata echilibrat adaptabil in care spatiul lucreaza in favoarea ta Bucataria este deja amenajata - locul perfect pentru retete de familie povesti dimineata la cafea si seri petrecute gatind impreuna Livingul spatios cu balcon inchis poate deveni zona ta de relaxare sau biroul tau luminos Cele 3 dormitoare dintre care unul cu balcon deschis ofera intimitate si confort fiecarui membru al familiei Doua bai bine pozitionate ideale pentru viata de zi cu zi a unei familii active Holurile largi cu spatii de depozitare generoase aduc ordine si functionalitate in viata de zi cu zi Te afli intr-un cartier verde si linistit Girocului la cativa pasi de parcuri scoli magazine si toate facilitatile importante Fiecare zi poate incepe in tihna si se poate incheia cu plimbari linistite in cartier Locuinta este un canvas deschis pentru ideile tale - perfect pentru a fi personalizata dupa bunul plac cu posibilitatea de a crea zone separate pentru relaxare lucru joaca sau hobby-uri Daca iti doresti mai mult decat un apartament - un loc in care sa te regasesti si sa cresti impreuna cu familia - te invitam sa-l descoperi Cod oferta / ID BLITZ P146677 Id intern P146677
⚠ AtenÈ›ie !
Nu plăti niciodată în avans într-un cont bancar până când nu l-ai întâlnit pe vânzător și ați semnat un acord.
Nu furniza informații confidențiale în discuții pe WhatsApp/Telegram sau alte aplicații de mesagerie unde utilizatorii își ascund ușor identitatea, deoarece te poți expune la fraude sau înșelăciuni.
Nu furniza niciodată detaliile cardului tău bancar (număr, data expirării, CVV). Te expune direct la fraude bancare.
Primirea unui mesaj pe WhatsApp/Telegram cu un ID scanat nu înseamnă că ai identificat cumpărătorul. Acest lucru se face pe loc, când semnați un acord de cumpărare.
Când comanzi online, alege livrarea cu verificare. Pentru un cost relativ mic, te protejezi de eventuale neplăceri.
Blitz va propune spre vanzare o garsoniera luminoasa si bine impartita situata la parterul unui bloc construit in 2008 Are 20 mp utili si este compusa din camera spatioasa bucatarie separata baie si hol - tot ce ai nevoie pentru confortul de zi cu zi Este amplasata foarte aproape de Spitalul Judetean si Universitatea de Medicina si Farmacie ceea ce o face perfecta atat pentru locuit cat si pentru investitie inchiriere catre studenti sau cadre medicale Zona este linistita cu acces rapid la magazine statii de autobuz si alte puncte de interes Avantaje o Locatie excelenta - langa Spitalul Judetean si UMF o Bloc nou 2008 curat si bine intretinut o Compartimentare practica o Ideala pentru o persoana sau un cuplu tanar Cod oferta / ID BLITZ P155983 Id intern P155983
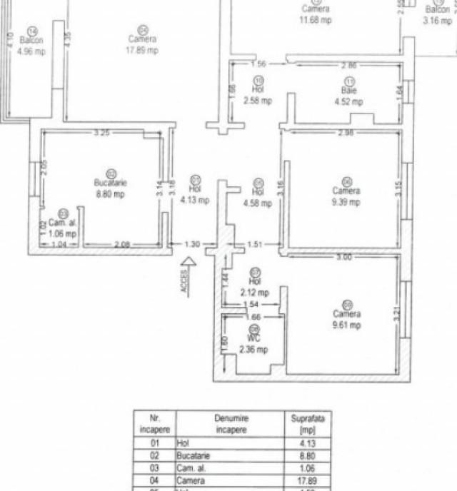
Blitz va prezinta un apartament complet decomandat cu 3 camere situat in zona Garii pe Aleea Harniciei intr-o locatie accesibila si bine conectata la facilitatile urbane Caracteristici principale Suprafata utila 69 mp Parter din 6 etaje - acces facil ideal pentru toate varstele Orientare sud-est - apartament foarte luminos Complet utilat partial mobilat - gata de mutat Compartimentare practica o Living generos o 2 dormitoare o Bucatarie separata o 2 bai o Balcon inchis o 2 holuri spatioase Dotari importante Centrala termica proprie - eficienta si confort termic 2 pivnite - una dintre ele cu acces din exterior ideala pentru depozitare suplimentara sau spatiu de hobby Localizare avantajoasa Zona Garii - acces rapid la transport magazine scoli si alte puncte de interes Strada linistita cu vecinatate buna Un apartament ideal pentru familii persoane care cauta spatiu bine impartit si lumina naturala intr-o zona linistita dar foarte bine conect...
Blitz va ofera spre vanzare un apartament spatios cu 2 camere decomandat situat in zona centrala a orasului Gaesti la etajul 2 al unui bloc solid bine intretinut Apartamentul ofera un spatiu generos si o compartimentare practica living luminos dormitor confortabil bucatarie spatioasa baie hol generos si doua balcoane Proprietatea se vinde nerenovata oferind astfel posibilitatea viitorului proprietar de a o amenaja dupa propriul gust si stil Un avantaj important il reprezinta cele doua garaje incluse in pret ideale atat pentru parcare cat si pentru depozitare suplimentara Blocul este amplasat intr-o zona centrala linistita cu acces facil la magazine scoli parc si mijloace de transport Cod oferta / ID BLITZ P155841 Id intern P155841
Blitz propune spre inchiriere un apartament cu 4 camere situat in zona centrala ideal pentru cei care cauta spatiu confort si acces rapid la toate punctele de interes Proprietatea impresioneaza prin suprafata generoasa compartimentarea functionala si luminozitatea naturala abundenta Dispune de doua balcoane mari perfecte pentru relaxare sau spatiu suplimentar de depozitare Situat la etajul 4/4 apartamentul beneficiaza de centrala proprie este mobilat si partial utilat fiind gata de mutare O alegere potrivita pentru cei care apreciaza un stil de viata confortabil intr-o zona premium a orasului Cod oferta / ID BLITZ P159918 Id intern P159918
Blitz va propune spre vanzare un apartament decomandat cu 1 camera situat in zona Galata intr-un complex rezidential nou in bloc modern dotat cu lift Locuinta are o suprafata de 41 mp si se remarca prin finisaje premium oferind un spatiu luminos aerisit si usor de personalizat fiind nemobilat si pregatit pentru a fi amenajat dupa propriul stil Compartimentarea inteligenta include o camera generoasa cu balcon o bucatarie separata baie si hol toate concepute pentru confort si functionalitate Apartamentul beneficiaza si de un loc de parcare un avantaj semnificativ in zona Ansamblul este amplasat intr-o zona linistita cu acces rapid la supermarketuri farmacii gradinite si alte facilitati esentiale O alegere excelenta pentru cei care cauta un spatiu modern versatil si intr-un mediu rezidential de calitate Va asteptam la vizionare Cod oferta / ID BLITZ P159455 Id intern P159455
PYF007B9869 Imagineaza-ti locuinta perfecta care sa reflecte personalitatea ta si sa satisfaca toate nevoile tale Echipa noastra dedicata te va ajuta in cautarea locuintei ideale Portofoliul nostru include exact ceea ce iti doresti tu si familia ta Alege PYF REAL ESTATE pentru a transforma visul tau in realitate PYF REAL ESTATE va propune prin agentul zonei Sahin B spre vanzare un apartament situat in zona Unirii mai exact pe Bd Unirii in imediata apropiere a metroului autobuzului zonelor comerciale restaurantelor centrului universitar situat la 5 minute de statia de metrou Piata Unirii intr-un imobil construit in anul 1996 finalizat avand structura de monolit si compartimentari de caramida Imobilul are izolatie exterioara si interioara apartamentul compus din patru camere avand trei dormitoare trei bai si o bucatarie este situat la etajul 6/9 si are destinatie rezidentiala Avand o suprafata 120mp dar si o compartimentare decomandata apartamentu...
PYF003B9767 Imagineaza-ti locuinta perfecta care sa reflecte personalitatea ta si sa satisfaca toate nevoile tale Echipa noastra dedicata te va ajuta in cautarea locuintei ideale Portofoliul nostru include exact ceea ce iti doresti tu si familia ta Alege PYF REAL ESTATE pentru a transforma visul tau in realitate PYF REAL ESTATE va propune spre vanzare prin agentul zonei Madalina L apartamentul situat in zona Aparatorii Patriei pe strada Aleea Tebea in imediata apropiere a mijloacelor de transport in comun zonelor comerciale restaurantelor centrului universitar situat la 15 minute de statia de metrou Constantin Brancoveanu intr-un imobil construit in anul 1975 finalizat avand structura de monolit si compartimentari de caramida Imobilul are izolatie exterioara si interioara apartamentul compus din doua camere avand un dormitor o baie si o bucatarie este situat la etajul 2/4 si are destinatie rezidentiala Avand o suprafata 81mp dar si o compartiment...
Haus Imobiliare va prezinta spre vanzare un apartament elegant cu 4 camere situat in una dintre cele mai apreciate zone din Constanta - Faleza Nord Suprafata utila 114 3 mp Balcon inchis 4 1 mp Boxa la subsol 4 1 mp Suprafata totala 118 4 mp Bloc nou echipat cu lift si reabilitat termic Compartimentare Living spatios cu acces la balcon si vedere directa la mare 3 dormitoare luminoase dintre care unul ofera aceeasi priveliste panoramica 2 bai moderne una en-suite la dormitorul matrimonial Bucatarie separata mobilata si utilata complet Boxa de 4 1 mp pentru depozitare suplimentara Apartament complet mobilat si utilat gata pentru mutare Vedere panoramica bilaterala mare din living si dormitor priveliste superba asupra orasului Confort sporit lift modern si izolatie termica eficienta Zona linistita dar cu acces imediat la plaja si facilitati urbane Facilitati in zona Plaje la doar cateva minute de mers pe jos precum Plaja Faleza Nord si Plaja 3 Pa...
Lucky Residence Drumul Jilavei 113B Se vinde asa cum e in poze Loc de parcare in cota indiviza Se vinde doar la cash O baie jos Spatii de depozitare la mansarda Nu are lift Detalii zona 1 minut statie STB 241 - 2 statii pana la Metrou Aparatorii Patriei 4 minute Parcul Tudor Arghezi 4 minute Jumbo Auchan Metro 5 minute Lidl Kaufland 7 minute Grand Arena Mall Carefor Detalii garaj Loc de parcare exterioara inclus in pretul apartamentului Reper Aparatorii Patriei - Metrou Aparatorii Patriei Serviciul nou oferit de PREMIER Imobiliare Solicita acum VIZIONARE ONLINE pentru aceasta proprietate
Agentia Primum Imobiliare are placerea de a va oferi spre vanzare un apartament spatios cu 4 camere situat in zona IOSEFIN intr-o locatie frumoasa linistita si usor accesibila spre centrul orasului Apartamentul este situat la etajul 1 din 2 bloc cu acoperis dispune de centrala proprie si este decomandat Compartimentare - 1 hol de acces - 1 bucatarie - 1 living spatios - 3 dormitoare spatioase - 2 bai - debara - boxa la subsol Apartamentul se vinde cum este in poze sau gol Se accepta credit bancar Informatiile cu caracter tehnic ne sunt furnizate de catre proprietar Ne angajam sa va oferim consultanta imobiliara si financiara pe toata durata procesului de tranzactie Mai multe detalii telefonic
TimiÅŸ - 31 Iulie 2025
160.000 €
Atenție
Din motive de securitate și pentru protecția utilizatorilor, această funcționalitate nu este disponibilă pentru locația ta.