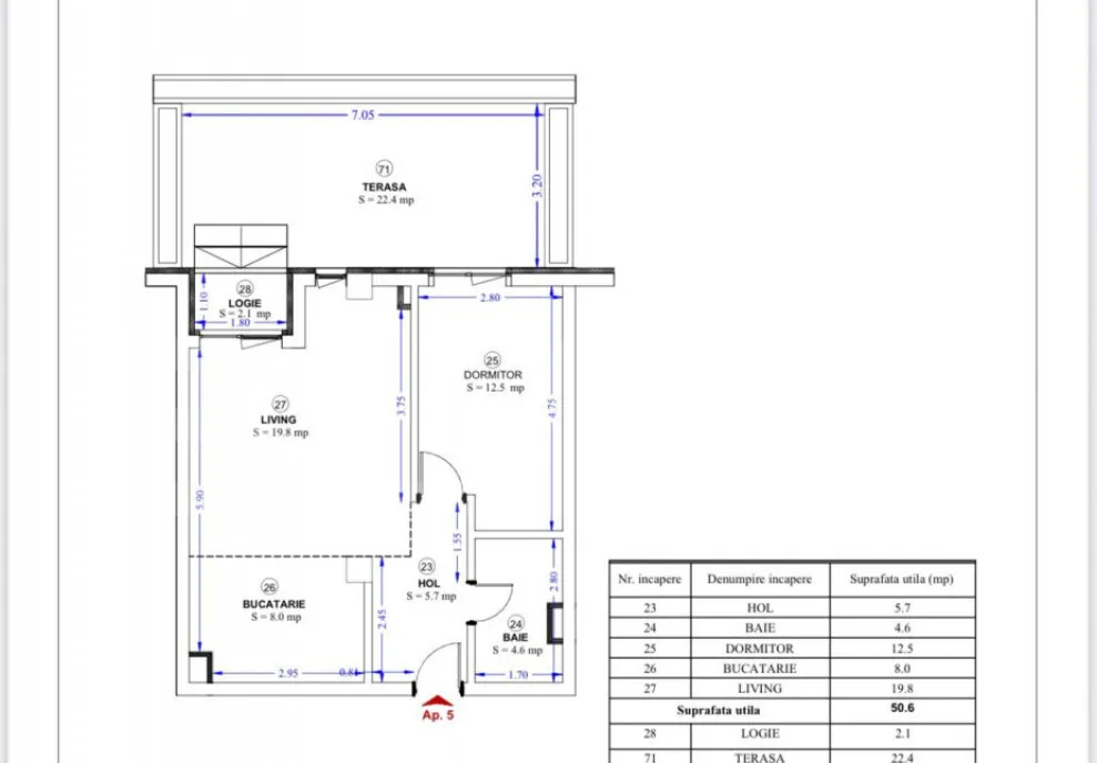
Blitz vă propune spre vânzare un apartament semidecomandat, ideal pentru momente de relaxare alături de familie sau prieteni, situat în zona Torontalului.
???? Suprafață utilă: 50.55 mp
???? Logie: 2.14 mp – perfectă pentru o pauză de cafea
☀️ Terasă spațioasă: 22.36 mp – locul ideal pentru grătare, plante sau socializare
Apartamentul este compartimentat inteligent, oferind spații aerisite și bine luminate, ideale pentru un stil de viață modern și confortabil.
????Localizat într-o zonă liniștită și apreciată – Torontalului, aproape de toate facilitățile: supermarketuri, mijloace de transport, școli, farmacii și spații verzi.
???? O alegere inspirată pentru locuit sau investiție!
???? Contactează echipa Blitz pentru mai multe detalii sau pentru a programa o vizionare!
Cod ofertă / ID BLITZ: P148806
Id intern: P148806
⚠ Atenție !
Nu plăti niciodată în avans până când nu l-ai întâlnit pe vânzător și ați semnat un acord.
Nu furniza informații confidențiale în discuții pe alte aplicații de mesagerie unde utilizatorii își ascund ușor identitatea.
Nu furniza niciodată detaliile contului sau cardului tău bancar.
Când comanzi online, alege livrarea cu verificare. Pentru un cost relativ mic, te protejezi de eventuale neplăceri.
Blitz oferă spre închiriere spațiu pentru birouri sau activități comerciale, cu o suprafață de 50 mp, situat în zonă centrală. Imobilul dispune de apă curentă, baie proprie și centrală termică, fiind ideal pentru birouri, cabinet, salon sau alte activități comerciale. Acces facil și vizibilitate bună. ???? Disponibil imediat Cod ofertă / ID BLITZ: P163142 Id intern: P163142
Blitz propune spre vânzare o casă cu design contemporan, aflată la intrare în Chinteni, în zona Profi – o locație liniștită și în plină dezvoltare, la doar câteva minute de Cluj-Napoca. Construită pe un teren de 500 mp, proprietatea impresionează prin arhitectura modernă și compartimentarea inteligentă, având o suprafață utilă de 125 mp: Parterul include: Hol generos la intrare Bucătărie spațioasă cu cămară separată Baie de serviciu Living luminos cu acces direct către o terasă de 32 mp Birou ideal pentru lucrul de acasă Spațiu tehnic Mansarda este dedicată zonei de noapte și oferă: Dormitor matrimonial cu dressing și baie proprie Două dormitoare secundare Baie spațioasă de 6.5 mp Casa va fi construită din cărămidă, cu acoperiș din țiglă ceramică, și se va preda la stadiul de semifinisat, ceea ce îți oferă libertatea de a o personaliza după propriul gust. Dotări tehnice moderne: Racordare la apă, curent și canalizare Încălzire prin pardoseală alimentată de pompă de căldură – soluție e...
Blitz ofera spre vânzare o casă individuală, tip P+E, situată într-o zonă liniștită și accesibilă din Barițiu, ideală pentru o familie care își dorește un cămin confortabil și modern. Proprietatea se întinde pe o suprafață utilă de 120 mp și beneficiază de un teren generos de 340 mp, oferind un spațiu suficient atât în interior cât și în curte.La parter, casa dispune de un living spațios,un dining perfect pentru momentele de relaxare în familie sau cu prietenii; șemineul pe lemne adaugă un plus de căldură și atmosferă. Bucătăria este open-space, complet mobilată și utilată cu aparatură de ultimă generație, oferind toate facilitățile necesare pentru gătit cu ușurință. De asemenea, la parter se află o cămară pentru depozitare, o baie de serviciu modernă, dar și un spațiu dedicat pentru depozitarea pantofilor, care adaugă un plus de funcționalitate locuinței.La etaj, găsim două dormitoare spațioase, fiecare având suficient loc pentru mobilier de calitate. Dormitorul principal beneficiază...
???? *Blitz ofera spre vânzare un apartament de vis, perfect pentru o familie mare!* ???? ???? *Apartament 4 camere, nou, mobilat și utilat la cel mai înalt standard!* ???? *Locație privilegiată* – într-o zonă liniștită, bine conectată la mijloacele de transport și în apropiere de școli, grădinițe, parcuri și facilități comerciale. ✨ *Caracteristici principale:* - *4 camere spațioase*, perfecte pentru o familie numerosă sau pentru cei care doresc spațiu suplimentar. - *Bucătrie mobilată și utilată* cu electrocasnice de ultimă generație: frigider cu sistem No Frost, plită cu inductie, cuptor incorporat, hotă puternică, mașină de spălat vase. Totul este nou și de înaltă calitate! - *Baie modernă* cu cada, chiuvetă elegantă și mobilieră de design. - *Sistem de încălzire calorefire pentru un confort maxim în orice sezon. - *Geamuri termopan* pentru izolare fonică și termică excelentă. - *Pardoseală de lux* în toate camerele (marmura de calitate si gresie antifală). - *Doua balcoane* unde ...
Blitz va propune spre vanzare un penthouse unic in ansamblu rezidential din zona Decebal. Acesta reprezintă un proiect rezidențial de excepție, ce se remarcă prin designul său contemporan și caracteristicile arhitecturale inovatoare, fiind unul dintre cele mai ambițioase proiecte de pe piața imobiliară. Amplasat la doar 50 de metri de vibrantul bulevard Decebal, cunoscut pentru atmosfera sa mondenă și oferta variată de restaurante și cafenele, ansamblul oferă rezidenților săi un stil de viață modern, dinamic și elegant. Situat la doar 200 de metri de Rondul Piața Alba-Iulia, ansamblul asigură un acces rapid către facilitățile zonei centrale, Unirii – Centrul Vechi, unde locuitorii pot beneficia de o paletă extinsă de servicii culturale și de divertisment. În proximitate se găsesc teatre, cinematografe, muzee, centre comerciale și pub-uri, creând astfel un mediu urban ideal, ce răspunde atât nevoilor cotidiene, cât și dorințelor de relaxare și socializare. Ansamblul se bucură de o pozi...
VA PROPUNEM SPRE VANZARE UN APARTAMENT DE 2 CAMERE SUPRAFATA 48 MP ETAJ 1/3 UTILAT-MOBILAT FINISAJE PREMIUM CENTRALA PROPRIE BALCON INCHIS CU GEAMURI CULISANTE LOC PARCARE SITUAT INTR-UN IMOBIL FINALIZAT IN 2014 AFLAT PE STR AMURGULUI 7 MINUTE DE METROU APARTAMENTUL A FOST ZUGRAVIT VOPLEA LAVABILA IN NOIEMBRIE 2025 PRET - 108 995 EUR NEGOCIABIL TELEFON CONTACT - 0786660295 - DANIEL COMISION STANDARD
Bloc stradal cu intrare stradala, civilizat, reabilitat termic, pe Bd. 1 Decembrie 1918 intersectie cu str. Postavarul, la 800 m statia de metrou (10 minute mers). Apartament confort 1 semidecomandat, cu o suprafata de 51mp (suprafata utila 46,67 mp + balcon 4,33 mp), vedere pe spatele blocului, pe Est, pozitionat pe mijloc, etaj 9/10. Apartamentul are ferestre termopan, usa si ferestra catre balcon tot termopan, usa metalica intrare, aparat aer conditionat, parchet in camere, in baie este instalat si bideu. Apartamentul este curat, intretinut, fara imbunatatiri recente, moderne. In apartament se pot lasa toate electrocasnicele si mobilierul existent fara costuri suplimentare. Apartamentul este nelocuit si disponibil imediat. Actele pregatite pentru vanzare. Se accepta credit (nu sunt modificari in apartament, bloc constructie 1971, neexpertizat, neincadrat in liste risc seismic). Pe scara blocului este trasa teava separata de gaze, avand posibilitate montare centrala proprie de apart...
APOSTU ESTATE va propune spre vanzare un apartament cu 2 camere situat in Braytim intr-un bloc nou finalizat ce imbina perfect linistea unei zone rezidentiale cu proximitatea facilitatilor urbane Cu o suprafata utila de 47 mp si o terasa de 6 mp locuinta te intampina cu un sentiment de echilibru si rafinament Spatiile sunt bine gandite luminoase si primitoare -- livingul cu bucatarie semi-deschisa creeaza o atmosfera calda ideala pentru seri relaxante sau momente petrecute alaturi de cei dragi Finisajele interioare sunt realizate cu grija pana la cel mai mic detaliu tencuiala mecanizata glet lavabil iar baghetele decorative adauga o nota eleganta si sofisticata Peretii sunt din caramida fara rigips oferind un plus de izolare si durabilitate gemurile cu 3 stile pentru izolare fonica si termica superioara foarte mari si luminoase iar incalzirea in pardoseala si centrala proprie garanteaza confortul termic pe tot parcursul anului Baia este moderna cu posibi...
Blitz va propune spre vanzare un apartament decomandat situat intr-o zona linistita si verde Roata Faget cu acces facil atat dinspre Faget cat si dinspre Valea Garbaului Detalii proprietate o Suprafata utila 55 mp o Balcon 8 mp o Etaj 2 din 4 o Compartimentare 2 camere decomandate - living cu iesire pe balcon si dormitor bucatarie baie hol cu dressing generos la intrare o Bloc construit in 2008 Dotari si finisaje o Se vinde complet mobilat si utilat o Centrala termica proprie o Balcon spatios ideal pentru relaxare Parcare o Loc de parcare exterior cu CF separat - disponibil la pretul de 6 000 EUR Avantaje o Zona linistita aer curat si priveliste placuta o Acces usor atat pe la Roata Faget cat si pe la Valea Garbaului o Bloc solid comunitate linistita o Perfect pentru cupluri familii tinere sau investitie pe termen lung Un apartament luminos cu orientare sud-estica bine compartimentat si complet echipat intr-o zona retra...
Nu rata ocazia de a te bucura de confortul unui camin modern amplasat intr-una dintre cele mai cautate zone din Floresti Apartamentul cu 2 camere situat la etajul 2 al unui imobil nou cu 4 niveluri se afla in zona Tineretului in imediata apropiere a stadionului de fotbal oferind un acces rapid si facil spre Cluj-Napoca -- ideal pentru cei care doresc sa locuiasca intr-o zona linistita dar bine conectata cu orasul Cu o suprafata utila de 48 mp locuinta impresioneaza prin compartimentarea practica si luminoasa hol de intrare living spatios cu bucatarie open-space dormitor confortabil si balcon generos orientat spre Nord-Vest perfect pentru momentele de relaxare la finalul zilei Apartamentul se preda complet finisat cu materiale si finisaje de inalta calitate pereti vopsiti cu lavabil premium parchet elegant gresie si faianta moderne usi interioare in tonuri calde instalatii sanitare de top si bai echipate complet cu mobilier si baterii moderne Finisajele sunt la al...
Cluj - 4 Decembrie 2025
93.142 €
Atenție
Din motive de securitate și pentru protecția utilizatorilor, această funcționalitate nu este disponibilă pentru locația ta.