Va propunem spre vanzare un apartament cu 4 camere si 2 bai avand suprafata de 89 mp decomandat situat la etajul 5/5 intr-un bloc construit in 1984 in zona Pacurari-Esplanada Mimoza Iasi Locuinta are o suprafata generoasa de 89 mp este luminoasa si ofera un potential excelent de renovare Apartamentul este liber perfect pentru mutare imediata sau amenajare dupa propriul gust Zona este linistita cu acces rapid catre mijloace de transport centre comerciale scoli si farmacii Pentru mai multe detalii si vizionari va rog sa sunati la 0757-135-189 sau email 160 protected Id intern P8239
⚠ AtenÈ›ie !
Nu plăti niciodată în avans într-un cont bancar până când nu l-ai întâlnit pe vânzător și ați semnat un acord.
Nu furniza informații confidențiale în discuții pe WhatsApp/Telegram sau alte aplicații de mesagerie unde utilizatorii își ascund ușor identitatea, deoarece te poți expune la fraude sau înșelăciuni.
Nu furniza niciodată detaliile cardului tău bancar (număr, data expirării, CVV). Te expune direct la fraude bancare.
Primirea unui mesaj pe WhatsApp/Telegram cu un ID scanat nu înseamnă că ai identificat cumpărătorul. Acest lucru se face pe loc, când semnați un acord de cumpărare.
Când comanzi online, alege livrarea cu verificare. Pentru un cost relativ mic, te protejezi de eventuale neplăceri.
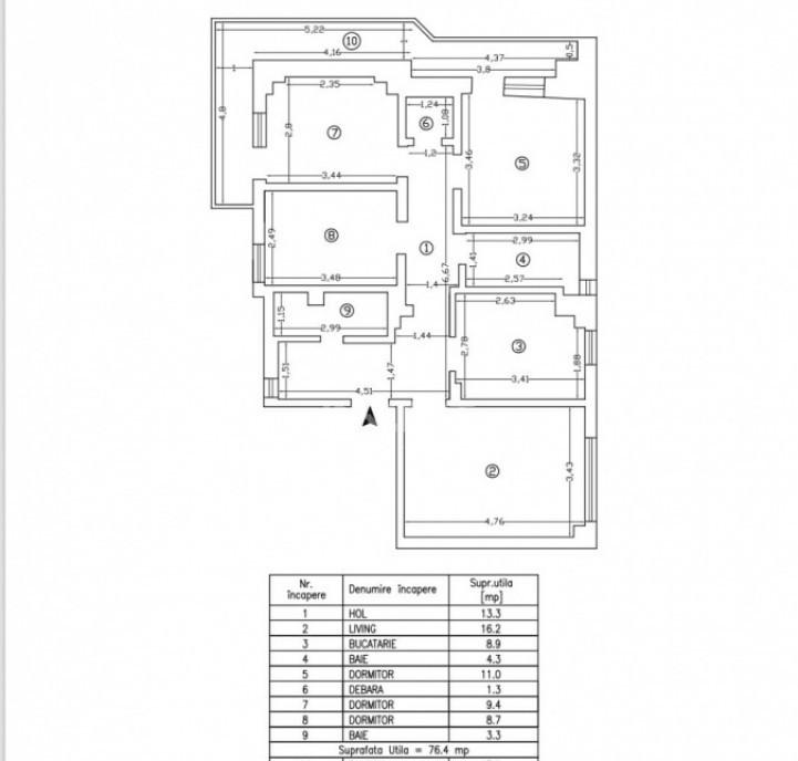
Va propunem spre vanzare un apartament cu 3 camere si 2 bai avand suprafata de 71 mp situat la etajul 3 dintr-un bloc cu 4 etaje in zona Canta-Scoala Elena Cuza Iasi Imobilul se vinde partial mobilat Pentru mai multe detalii si vizionari va rog sa sunati la 0757-135-189 sau email 160 protected Id intern P8226
Va propunem spre vanzare un apartament cu 1 camera decomandat avand suprafata totala de 41 mp situat la etajul 6 dintr-un bloc cu 9 etaje din anul 1990 in zona rond Pacurari Iasi Imobilul se afla aproape de statii de transport in comun si supermarket-uri Apartamentul necesita renovare totala Pentru mai multe detalii si vizionari va rog sa sunati la 0757-135-189 sau email 160 protected Id intern P8194
Va propunem spre vanzare un apartament cu 4 camere decomandat avand suprafata de 103 mp situat la etajul 3 dintr-un bloc cu 8 etaje din anul 1988 in zona Garii - Fostul Billa Iasi Pentru mai multe detalii si vizionari va rog sa sunati la 0757-135-189 sau email 160 protected Id intern P8207
Va propunem spre vanzare un apartament spatios de 2 camere decomandate situat la etajul 1 al unui bloc cu 8 etaje construit in 1985 intr-o zona linistita si cu acces facil la toate punctele de interes Suprafata utila 67 mp Etaj 1/8 An constructie 1985 Compartimentare decomandat Apartamentul a fost renovat complet inclusiv instalatia electrica si sanitara astfel ca noul proprietar nu mai are nicio grija - totul este modern si pregatit pentru mutare imediata Dotari si finisaje moderne -Geamuri termopan tripan de ultima generatie valoare 9 500 EUR - izolatie fonica si termica excelenta -Mobilier modern si electrocasnice noi incluse in pret -Bucatarie complet utilata aragaz cuptor hota frigider masina de spalat -Baie renovata integral cu obiecte sanitare noi -Parchet gresie si faianta de calitate superioara -Usa metalica la intrare si usi interioare noi Apartamentul se vinde complet mobilat si utilat exact ca in poze - i...
Va propunem spre vanzare un apartament cu 2 camere decomandat in zona Arcu - Restaurant Blue Aqua Iasi Imobilul este spatios liber mutare imediata 57 25 mp bloc din 1986 zona linistita aproape de transport si puncte de interes Necesita imbunatatiri - personalizeaza-l dupa gustul tau Optional garaj 17 mp - 20 000 EUR Pentru mai multe detalii si vizionari va rog sa sunati la 0757-135-189 sau email 160 protected Id intern P8183
Va ofer spre vanzare un apartament de 4 camere aflat la etajul 1 din 4 intr un bloc construit in anul 1968 izolat termic situat intr-o zona facila aproape de Liceul Alexandru Ioan Cuza Liviu Rebreanu parcuri Scoala Liviu Rebreanu Acest apartament decomandat se bucura de vedere mixta beneficiind de liniste cat si de lumina naturala Apartamentul de 4 camere dispune deinstalatia sanitara si electrica schimbata integrala Blocul nu este incadrat la nici o clasa de risc seismic Nu rata ocazia de a locui intr-un apartament care combina confortul cu accesibilitatea Merita vazut Va astept cu drag la vizionare
REA1024192 SVN Romania propune spre vanzare un duplex premium cu 4 camere in complexul rezidential Moghioros Residence o locatie excelenta din Drumul Taberei cu acces facil la toate facilitatile importante din zona Apartamentul are o suprafata totala de 129 6 mp si este compus din 3 dormitoare 3 bai un living generos cu bucatarie open-space zona de depozitare si o terasa de 11 6 mp cu vedere panoramica spectaculoasa fiind amplasat la etajul 11 Fiecare camera este dotata cu aer conditionat Proprietatea beneficiaza de finisaje moderne bine intretinute si se vinde cu 2 locuri de parcare la subsol - unul proprietate si unul inchiriat Complexul este pozitionat strategic aproape de statia tramvaiului 41 si metrou la cativa pasi de Parcul Moghioros centre comerciale restaurante clinici medicale si veterinare In incinta exista loc de joaca privat si zone verzi oferind un stil de viata confortabil si linistit Pentru mai multe detalii si vizionari nu ezitati sa ...
Vectorial Broker va prezinta un apartament de 4 camere in Basarabia reper Chisinau -Miramar confort 1 decomandat avand suprafata de 90 mp cu 2 bai si 2 balcoane vedere mixta Blocul este reabilitat termic Locuinta este situata la etajul 6 intr-un imobil tip bloc de 10 etaje construit in anul 1982 Blocul este stradal si apartamentul are vedere mixta Apartamentul este partial imbunatiatit si este pretabil pentru locuinta Recomandam aceasta proprietate persoanelor active pentru care o locuinta in apropiere de mijloacele de transport in comun statie de metrou centre comerciale supermarketuri piete agroalimentare si parcuri reprezinta un factor de decizie Pretul nu este negociabil si se accepta orice fel de creditare ID intern VB3019276
R E A Imobiliare va ofera spre vanzare un apartament cu 4 camere decomandat amplasat in zona Soseaua Stefan cel Mare Bloc reabilitat termic construit in 1980 care nu este incadrat in nicio categorie de risc seismic nefiind expertizat Apartamentul are vedere mixta - livingul si un dormitor au vedere spre bulevard iar celelalte doua dormitoare au vedere spre spate Se afla la etajul 3 al unui bloc cu 10 etaje si are o suprafata utila totala de 95 mp din care 11 mp sunt reprezentati de cele doua balcoane Compartimentare living trei dormitoare bucatarie doua bai si doua balcoane Se vinde nemobilat cu exceptia bucatariei mobilata si utilata Instalatiile electrice si sanitare au fost schimbate in urma cu 6 ani Confortul termic este asigurat prin reteaua edilitara de termoficare dar si cu ajutorul aparatului de aer conditionat Loc de parcare Zona pet-friendly In imediata apropiere se afla puncte comerciale bancare farmaceutice medicale educationale si d...
Compania imobiliara Apulum 94 va propune un apartament de 4 camere cu o panorama exceptionala catre Hotelul Intercontinental catre Bd Magheru cat si catre Piata Romana Este situat pe colt si are aceasta vedere superba Imobilul este construit in 1979 din beton si caramida Apartamentul este situat la etajul 7 si este renovat in totalitate pana la sapa in 2022 cu instalatiile schimbate centrala termica proprie pe gaze parchet din lemn stratificat geam termopan tripan care izoleaza foarte bine fonic usi din lemn gresie faianta 4 aparate de aer conditionat Compartimentarea interioare este foarte buna avand camere generoase Beneficiaza de 3 balcoane dintre care unul de 8 metri situat pe colt cu vedere panoramica Zona este superba Pentru mai multe detalii si vizionare nu ezitati sa ma contactati pe nr 0733683446- Laura Ionescu
București - 27 Septembrie 2025
389.000 €
Atenție
Din motive de securitate și pentru protecția utilizatorilor, această funcționalitate nu este disponibilă pentru locația ta.