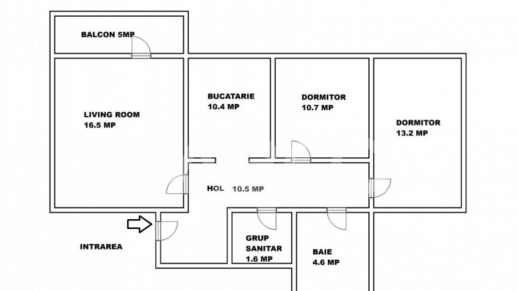
Apartament 3 camere de vanzare decomandat 67 mp zona Mihai Viteazul Sibiu Avantaje majore ale acestui apartament bull Decomandare cu bucatarie separata bull Orientare spre curte interioara ndash liniste lumina naturala pe tot parcursul zilei bull Zona retrasa de la zgomotul bulevardului bull Zona excelenta aproape de magazine scoli gradinite statii de autobuz farmacii piata agroalimentara bull Locatie ferita de aglomeratie TABOO Imobiliare propune un apartament de vanzare cu 3 camere decomandat situat in localitatea Sibiu zona Mihai Viteazul aflat la etajul 4 intr -un imobil tip nbsp bloc cu regim de inaltime pe Parter 10 Etaje anul constructiei 1970 structura beton Suprafata utila de 67 mp balcon deschis de 4 mp Apartamentul este structurat astfel bull Hol de compartimentare bull Bucatarie separata cu camara bull Baie de serviciu grup sanitar bull Baie cu cada bull Living cu balcon bull Dormitor bull Dormitor Finisajele interioare sunt moderne bull Usa intrare metal bull Usi interioare celulare lemn bull Tamplarie ferestre pvc termopan bull Pereti vopsea lavabila faianta bull Podele parchet gresie Utilitati si dotari bull Bucatarie mobilata utilata bull Mobilat complet bull Utilitati curent electric apa canalizare gaz catv telefon acces internet fibra optica bull Izolatii exterior bloc izolat termic bull Contorizare apometre contor gaz contor curent electric contorizare separata bull Caracteristici casa/vila interfon lift acoperis Apartamentul se vinde mobilat si utilat cu aragaz cuptor hota masina de spalat rufe frigider cu congelator Incalzirea se realizeaza prin centrala proprie calorifere Se accepta ca si modalitate de plata surse proprii sau credit bancar Pret 129 950EUR Cod oferta / ID P24906 Suna-ne acum la 0369 822 820 si afla detalii despre aceasta proprietate de vanzare din Sibiu dar si despre alte proprietati potrivite pentru tine Informatii speciale 1 Descarca aplicatia pe mobilul tau TABOO Imobiliare din Apple Store Google Play sau Huawei AppGallery pentru a afla instantaneu noile proprietati care intra pe piata 2 Daca ai o proprietate pe care vrei sa o vinzi sau sa o inchiriezi suntem aici pentru tine Contacteaza-ne pentru o evaluare gratuita fara obligatii si vei descoperi avantajele de a lucra cu o echipa dedicata si experimentata 3 Daca vrei sa incepi o cariera de agent imobiliar suna la 0369 822 820 si programeaza o intalnire pentru a afla toate beneficiile si avantajele Intra pe TABOO ro si descopera cele mai recente oferte actualizate zilnic Anunt actualizat in 15 octombrie 2025 Id intern P24906
⚠ AtenÈ›ie !
Nu plăti niciodată în avans într-un cont bancar până când nu l-ai întâlnit pe vânzător și ați semnat un acord.
Nu furniza informații confidențiale în discuții pe WhatsApp/Telegram sau alte aplicații de mesagerie unde utilizatorii își ascund ușor identitatea, deoarece te poți expune la fraude sau înșelăciuni.
Nu furniza niciodată detaliile cardului tău bancar (număr, data expirării, CVV). Te expune direct la fraude bancare.
Primirea unui mesaj pe WhatsApp/Telegram cu un ID scanat nu înseamnă că ai identificat cumpărătorul. Acest lucru se face pe loc, când semnați un acord de cumpărare.
Când comanzi online, alege livrarea cu verificare. Pentru un cost relativ mic, te protejezi de eventuale neplăceri.
Apartament 4 camere de inchiriat decomandat 150 mp Slimnic Apartamentul generos situat in Slimnic la doar cativa kilometri de Sibiu este ideal pentru grupuri de pana la 10-12 muncitori Avantaje majore ale acestui apartament bull Spatiu de dormit suficient pentru nbsp 10 persoane bull Locatie buna pentru naveta catre Sibiu si zonele industriale bull Locuri de parcare TABOO Imobiliare propune un apartament de inchiriat cu 4 camere decomandat situat in localitatea Slimnic aflat la etajul 1 intr -un imobil tip casa cu regim de inaltime pe Parter 1 Etaje Anul constructiei 2018 structura caramida Suprafata utila de 150 mp Apartamentul este structurat astfel bull Hol bull Bucatarie bull Baie bull Living bull 3 Dormitoare bull Camera tehnica bull Debara Finisajele interioare sunt clasice bull Usa intrare metal bull Usi interioare celulare bull Tamplarie ferestre pvc termopan bull Pereti vopsea...
Apartament 3 camere de vanzare decomandat 78 mp zona Doamna Stanca Sibiu nbsp EXCLUSIVITATE COMISION 0 strada Doamna Stanca Acest nbsp penthouse se remarca prin priveliste panoramica spectaculoasa lumina naturala din abundenta si intimitate sporita fiind situat la ultimul nivel Ofera terasa generoasa finisaje premium si un stil de viata exclusivist unde confortul si prestigiul se imbina perfect Avantaje majore ale acestui apartament bull Loc de parcare privat bull Parcare extra pentru vizitatori bull Priveliste panoramica bull Terasa generoasa bull Orientare S-V bull Centru comercial la 2 minute de mers pe jos TABOO Imobiliare propune un apartament de vanzare cu 3 camere decomandat situat in localitatea Sibiu zona Doamna Stanca aflat la etajul retras intr -un imobil tip bloc cu regim de inaltime pe Parter nbsp 6 Etaje Etaj Retras anul constructiei 2017 structura beton Suprafata utila de 78 mp terasa de 97 mp Apartamentul es...
CASA INDIVIDUALA DE VANZARE nbsp CU EXCLUSIVITATE COMISION 0 nbsp este alegerea potrivita pentru tine si familia ta Casa are o suprafata construita de 180 mp si suprafata utila de 150 mp Structura cladirii este din caramida are sistem de incalzire cu centrala proprie calorifere Are un stil clasic si este de vanzare nbsp partial mobilata si utilata Imobilul are o curte libera de 271 mp cu locuri de parcare spatiu pentru zona de joaca a copiilor si gradina Imobilul este situat in apropiere de statii pentru mijloace de transport in comun zone verzi Casa este compartimentata astfel Demisol spatiu depozitare hol 3 camere baie bucatarie necesita renovare La parterul inalt al propietati mai avem 2 dormitoare hol intermediar baie bucatarie si camara Pod depozitare Anexe Finisajele interioare sunt clasice Usa intrare pvc Usi interioare pvc Tamplarie ferestre pvc termopan Podele parchet gresie Finisaj necesita renovare ...
Apartament 2 camere de vanzare decomandat 58 mp zona Turnisor Sibiu nbsp TABOO Imobiliare propune un apartament de vanzare cu 2 camere decomandat situat in localitatea Sibiu zona Turnisor aflat la etajul 4 intr -un imobil tip bloc cu regim de inaltime pe Parter 4 Etaje anul constructiei 2016 structura caramida Suprafata utila de 58 mp balcon de 3 mp Apartamentul este structurat astfel bull Hol bull Bucatarie bull Baie cu geam bull Living cu balcon bull Dormitor nbsp bull Camara Finisajele interioare sunt clasice nbsp bull Usa intrare metal bull Usi interioare celulare bull Tamplarie ferestre pvc nbsp bull Pereti vopsea lavabila faianta bull Podele parchet gresie Utilitati si dotari bull Bucatarie mobilata partial utilata bull Mobilat complet bull Utilitati curent electric apa canalizare gaz catv telefon acces internet fibra optica bull Izolatii exterior bu...
Apartament 2 camere de vanzare decomandat 75 mp zona Central Sibiu TABOO Imobiliare propune un apartament de vanzare cu 2 camere decomandat situat in localitatea Sibiu zona Central aflat la etajul 2 intr -un imobil tip casa/vila cu regim de inaltime pe Parter 3 Etaje anul constructiei 1957 structura caramida Suprafata utila de 75 mp Apartamentul este structurat astfel bull Hol bull Dormitor bull Baie bull Debara bull WC de serviciu bull Bucatarie bull Living Finisajele interioare necesita renovare bull Usa intrare lemn bull Usi interioare lemn nbsp nbsp nbsp nbsp nbsp nbsp bull Tamplarie ferestre lemn nbsp bull Pereti vopsea lavabila faianta bull Podele parchet gresie Utilitati si dotari bull Bucatarie mobilata partial utilata nbsp nbsp nbsp nbsp nbsp nbsp bull Mobilat complet nbsp nbsp nbsp nbsp nbsp nbsp nbsp nbsp nbsp nbsp bull Utilitat...
Apartament spatios cu 3 camere in inima orasului - locul in care te vei simti ca ACASA Va invitam sa descoperiti un apartament cu adevarat special situat intr-una dintre cele mai cautate zone ale Capitalei - pe Bulevardul Constantin Brancoveanu la doar cativa pasi de Spitalul Marie S Curie si de strada Nitu Vasile si Metrou Constantin Brancoveanu Cu o suprafata generoasa de 63 mp acest apartament decomandat cu 3 camere situat la etajul 6 din 10 ofera tot confortul de care aveti nevoie pentru un stil de viata modern si echilibrat Luminos aerisit si bine compartimentat spatiul se preteaza perfect atat pentru o familie care isi doreste stabilitate si proximitate fata de scoli parcuri si mijloace de transport cat si pentru un cuplu tanar aflat la inceput de drum Pret - 124900 EUR NEGOCIABIL Pentru informatii suplimentare si vizionari nu ezitati sa ma contactati Agent Ramiro Imob - Adrian 0770 965 679
Va propunem spre vanzare un apartament cu 3 camere situat in zona Mihai Viteazu din Ploiesti intr-un bloc construit in anul 1978 Locuinta se afla la etajul 6 din 9 intr-un imobil anvelopat termic ceea ce asigura un plus de eficienta energetica si confort termic Caracteristici principale bull Suprafata utila 65 mp bull Balcon generos 8 mp bull Compartimentare decomandat bull Etaj 6/9 bull Bloc anvelopat bull An constructie 1978 Apartamentul necesita imbunatatiri oferind posibilitatea viitorului proprietar sa-l amenajeze dupa propriul gust Spatiile sunt bine delimitate luminoase iar balconul mare ofera un plus de spatiu pentru relaxare sau depozitare Avantaje bull Zona linistita cu acces facil la mijloace de transport scoli magazine si alte puncte de interes bull Structura solida bloc bine intretinut bull Ideal atat pentru locuit cat si pentru investitie Disponibil imediat...
Comision zero Vanzare in exclusivitate un apartament cu 3 camere decomandat in Popesti-Leordeni aproape de primarie pe soseaua Oltenitei nr 23 blocul cu bancile Brd Raiffeisen BT In imediata apropiere avem piata primarie Mega Image mare non stop aprozar florarie pentru domnii atenti cu sotiile lor scoala gradinita si statie autobuz care duce direct la Metrou Piata Sudului - Suprafata utila 78 28 metri patrati - Bucatarie semi-mobilata se vinde precum arata in poze - An constructie 1989 estimat bloc foarte solid din monolit anvelopat - Pret 97000 euro - Boxa - Centrala proprie - Avem cheile proprietatii - Aer conditionat Detalii suplimentare stabilire vizionari la 0725 957 934 - Silviu Cioaba - comision 0 Reper Popesti-Leordeni - Soseaua Oltenitei Serviciul nou oferit de PREMIER Imobiliare Solicita acum VIZIONARE ONLINE pentru aceasta proprietate
Apartamentul este situat la 10 minute de statia de metrou Grigorescu intr-un bloc construit in 2014 la parter cu o suprafata de 70 mp decomandat zugravit bucatarie mobilata incalzire in pardoseala curte liber Pretul de vanzare este 155000 euro
Blitz va propune spre vanzare un penthouse cu 3 camere 2 bai si 2 terase generoase cu suprafata de 91 4mp in Zona Cetatii Pretul nu include TVA Apartamentul face parte dintr-un nou ansamblu exclusivist de apartamente unul cu un regim de inaltime scazut de P 2 ER ce dispune si de spatii comerciale si o zona generoasa de spatii verzi Compartimentarea practic gandita la acest apartament este dispusa in living bucatarie open space 2 dormitoare 1 cu baie matrimoniala 2 bai cu geam 1 hol 1 logie si 2 terase cu o suprafata insumata de 91 4mp Acest apartament face parte dintr-un ansamblu de 32 de apartamente cu compartimentari de la 33 3 mp pana la 74 mp cu logii de la 5 mp balcoane de la 6 mp pana la terase de 91 4 mp Materialele de inalta calitate si rezistenta proiectul ce anticipeaza nevoile viitorilor proprietari si atentia la fiecare detaliu al executiei fac din acest ansamblu un camin in care va fi o placere sa te trezesti in fiecare zi A...
Cluj - 24 Iunie 2025
140.380 €
Atenție
Din motive de securitate și pentru protecția utilizatorilor, această funcționalitate nu este disponibilă pentru locația ta.