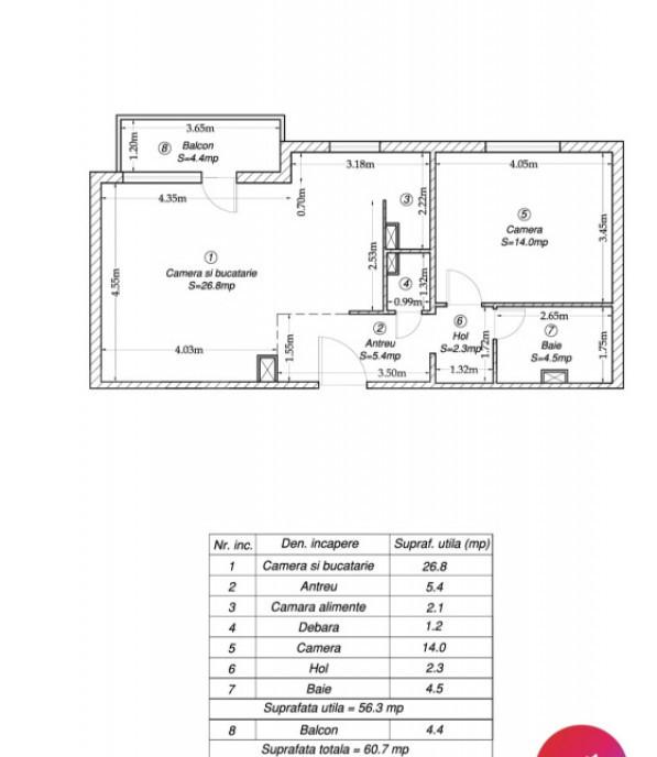
Blitz va propune un apartament luminos si spatios 2 camere - etaj 4/4 bloc cu acoperis zona accesibila Iti doresti un apartament aerisit cu view spectaculos si multa lumina naturala Blitz Imobiliare Timisoara iti prezinta aceasta locuinta cu 2 camere situata la etajul 4 al unui bloc din anii 80 cu acoperis si o compartimentare eficienta ideala pentru viata urbana Suprafata utila de 56 mp la care se adauga un balcon generos de 4 4 mp inchis - un spatiu excelent indiferent de sezon Apartamentul a fost modificat inteligent astfel ca inca de la intrare esti intampinat de un living spatios ce comunica direct cu bucataria open space dotata si cu un spatiu de depozitare Zona de zi este aerisita si luminoasa ideala pentru relaxare si socializare Dormitorul este separat luminos si ofera acces imediat catre baia cu vana Pe langa compartimentarea practica locuinta beneficiaza de multiple spatii de depozitare care iti ofera confort si organizare Finisajele sunt clasice dar apartamentul este intretinut si poate fi locuit imediat cu o simpla igienizare Incalzirea este realizata prin centrala proprie pe gaz si calorifere asigurand confort in sezonul rece Locatia este un alt mare avantaj acces facil catre zona centrala mijloace de transport in comun magazine scoli si alte puncte de interes Daca iti doresti o locuinta luminoasa functionala si gata sa devina acasa suna pentru a programa o vizionare Cod oferta / ID BLITZ P149533 Id intern P149533
⚠ AtenÈ›ie !
Nu plăti niciodată în avans într-un cont bancar până când nu l-ai întâlnit pe vânzător și ați semnat un acord.
Nu furniza informații confidențiale în discuții pe WhatsApp/Telegram sau alte aplicații de mesagerie unde utilizatorii își ascund ușor identitatea, deoarece te poți expune la fraude sau înșelăciuni.
Nu furniza niciodată detaliile cardului tău bancar (număr, data expirării, CVV). Te expune direct la fraude bancare.
Primirea unui mesaj pe WhatsApp/Telegram cu un ID scanat nu înseamnă că ai identificat cumpărătorul. Acest lucru se face pe loc, când semnați un acord de cumpărare.
Când comanzi online, alege livrarea cu verificare. Pentru un cost relativ mic, te protejezi de eventuale neplăceri.
Blitz va propune spre vanzare casa spatioasa cu o suprafata utila de 174 mp si ofera un design modern si functional La parter gasim un living generos perfect pentru relaxare si socializare o bucatarie deschisa ideala petrecerea timpului cu familia De asemenea parterul include doua bai ceea ce adauga un plus de confort si un dormitor care poate fi folosit ca spatiu de odihna sau birou Casa este dotata cu geamuri si usi tip Salamander de cea mai buna calitate asigurand o izolatie termica excelenta si un mediu confortabil in interior Casa are un etaj care include trei dormitoare oferind suficient spatiu pentru intreaga familie sau pentru oaspeti Fiecare dormitor poate fi personalizat pentru a reflecta stilul si preferintele celor care locuiesc acolo Cele doua bai de la etaj adauga un plus de confort facilitand utilizarea simultana de catre mai multe persoane Casa a fost gandita si pentru a fi utilizata ca spatiu pentru birouri avand un design care sa sprijine act...
BLITZ va propune spre vanzare un apartament modern excelent compartimentat ideal pentru familii sau investitie o 2 dormitoare spatioase o Living luminos o Bucatarie inchisa o Terasa pentru momente de relaxare Localizare excelenta cu acces facil la mijloace de transport parc cu loc de joaca privat scoli si gradinite in apropiere In plus apartamentul se afla la cativa pasi de Iulius Mall si Aquapark Amazonia oferind un stil de viata confortabil si activ Acest apartament imbina perfect functionalitatea confortul si avantajele unei locatii premium Contactati-ne pentru mai multe detalii si pentru a programa o vizionare Cod oferta / ID BLITZ P152716 Id intern P152716
BLITZ va propune spre vanzare un apartament modern excelent compartimentat ideal pentru familii sau investitie o 2 dormitoare spatioase o Living luminos o Bucatarie inchisa o Terasa pentru momente de relaxare Localizare excelenta cu acces facil la mijloace de transport parc cu loc de joaca privat scoli si gradinite in apropiere In plus apartamentul se afla la cativa pasi de Iulius Mall si Aquapark Amazonia oferind un stil de viata confortabil si activ Acest apartament imbina perfect functionalitatea confortul si avantajele unei locatii premium Contactati-ne pentru mai multe detalii si pentru a programa o vizionare Cod oferta / ID BLITZ P153059 Id intern P153059
Blitz va ofera spre vanzare un apartament decomandat cu 2 camere in Predeal care poate fi atat o investitie buna pentru inchiriere in regim hotelier cat si locuinta proprie mai ales pentru cei pasionati de sporturi montane Imobilul este in proximitatea partiei aflandu-se intr-o zona ideala pentru drumetii relaxare si aer curat Terasa aduce inca un beneficiu locuintei avand orientare spre padure Imobilul are o suprafata utila de 55 mp compartimentata inteligent pentru un plus de confort Dispune de centrala proprie si loc de parcare Se vinde mobilat si utilat exact ca in poze Pentru vizionari nu ezitati sa ne contactati Cod oferta / ID BLITZ P155732 Id intern P155732
Blitz va propune spre vanzare un apartament cu 2 dormitoare si living open-space cu balcon generos situat in inima orasului in zona Piata Unirii Iasi Locuinta beneficiaza de toate avantajele unei zone centrale acces rapid la mijloace de transport universitati institutii restaurante cafenele zone comerciale si spatii culturale Totul se afla la cativa pasi oferind un stil de viata dinamic comod si eficient Zona este sigura bine conectata si mereu activa ideala atat pentru locuire cat si pentru investitie Este o oportunitate excelenta pentru cei care isi doresc confort mobilitate si acces direct la centrul vibrant al Iasului Va asteptam cu drag la vizionare Cod oferta / ID BLITZ P159704 Id intern P159704
Va propunem spre vanzare un apartament cu 2 camere decomandat cu o suprafata de 54mp situat la etajul 5 dintr-un bloc cu 10 etaje in zona Gara- Fostul Billa Iasi Acesta se afla foarte aproape de mijloace de transport in comun si supermarket-uri Cu acces rapid pietonal spre UMF si UAIC Iasi Pentru mai multe informatii si pentru a programa o vizionare va rugam sa ne contactati la 0757-135-189 sau email 160 protected Id intern P7695
PYF016B10934 vanzare 2 camere Zona Rosu Chiajna Pret 73500 Euro ID oferta PYF016B10934 Acasa incepe cu un sentiment Poate fi o lumina calda intr-o dupa-amiaza linistita un balcon cu vedere sau o bucatarie unde iti savurezi cafeaua de dimineata Imagineaza-ti locuinta perfecta care reflecta personalitatea ta si raspunde nevoilor tale zilnice Echipa PYF REAL ESTATE te ajuta sa gasesti acel loc special pe care il poti numi acasa Portofoliul nostru cuprinde proprietati atent selectate ideale pentru tine si familia ta Localizare -Rosu- Chiajna una dintre cele mai cautate zone din Chiajna cu acces rapid la mijloace de transport in comun scoli magazine parcuri si centre comerciale Detalii proprietate Tip locuinta Apartamente Tip operatiune vanzare Numar camere 2 camere 1 dormitoare Suprafata utila 56 mp Suprafata totala 61 mp Etaj 3 / 3 Compartimentare decomandat Confort 1 An constructie 2018 Tip imobil bloc mixt Incalzire central...
Vectorial Broker va prezinta un apartament in care te poti muta imediat Este compus din 2 camere in Tei reper Sectia 7 Politie confort 1 decomandat avand suprafata de 50 mp cu 1 bai esi 1 balcon Locuinta este situata la etajul 9 intr-un imobil tip bloc de 10 etaje construit in anul 1970 avand 4 apartamente pe palier Apartamentul este imbunatatit are urmatoarele finisaje ferestre pvc incalzire termoficare pereti faianta lavabil podele parchet gresie usa intrare metal si este pretabil pentru locuinta Recomandam aceasta proprietate persoanelor active pentru care o locuinta in apropiere de mijloacele de transport in comun statie de metrou centre comerciale supermarketuri piete agroalimentare si parcuri reprezinta un factor de decizie Parcurile Tei si Doamna Ghica la cateva minute distanta de mers pe jos Statie STB Tranvai 21 troleibuz 66 autobuze 143 243 182 282 care fac legatura cu toate zonele orasului Pretul este NEGOCIABIL si se accepta orice fe...
PYF018B10534 Vanzare 2 camere Zona Tineretului Bucuresti Pret 123000 Euro ID oferta PYF018B10534 Acasa incepe cu un sentiment Poate fi o lumina calda intr-o dupa-amiaza linistita un balcon cu vedere sau o bucatarie unde iti savurezi cafeaua de dimineata Imagineaza-ti locuinta perfecta care reflecta personalitatea ta si raspunde nevoilor tale zilnice Echipa PYF REAL ESTATE te ajuta sa gasesti acel loc special pe care il poti numi acasa Portofoliul nostru cuprinde proprietati atent selectate ideale pentru tine si familia ta Localizare Tineretului - Hotel Cantemir una dintre cele mai cautate zone din Bucuresti cu acces rapid la mijloace de transport in comun scoala/gradinita centru universitar restaurant/pub parc central piata trafic pietonal fastfood supermarket banca zona comerciala autobuz metrou scoli magazine parcuri si centre comerciale Detalii proprietate Tip locuinta Apartamente Tip operatiune vanzare Numar camere 2 camere 1...
Blitz va propune sa descoperiri un nou standard de viata in zona de maxima dezvoltare a Clujului - un ansamblu rezidential ultramodern proiectat dupa cele mai recente norme NZEB Nearly Zero Energy Building pentru un trai sustenabil eficient si confortabil Energie Verde Economii pe termen lung Fiecare cladire este echipata cu panouri fotovoltaice asigurand un consum redus de energie si respect pentru mediul inconjurator Un stil de viata echilibrat in mijlocul naturii urbane Ansamblul integreaza un parc privat generos cu zone de relaxare locuri de joaca si spatii verzi gandit pentru toate varstele Aici linistea naturii se imbina armonios cu dinamismul vietii urbane Educatie si confort la un pas de casa Bucura-te de acces facil la o cresa si o scoala moderne construite in interiorul complexului oferind siguranta si confort familiilor cu copii Facilitati premium Piscina interioara pentru relaxare indiferent de sezon Centru fitne...
Cluj - 6 Iunie 2025
131.300 €
Atenție
Din motive de securitate și pentru protecția utilizatorilor, această funcționalitate nu este disponibilă pentru locația ta.