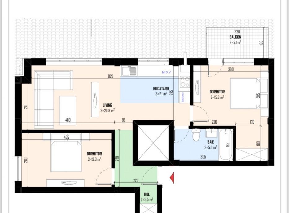
De vanzare apartament cu 3 camere cu o suprafata utila de 60 2 mp situat la parterul lui bloc construit in anul 2025 cu regim de inaltime P 3E Pod cu placa de beton Apartamentul se preda finisat la cheie cu centrala termica pe gaz calorifere finisajele interioare sunt la alegerea cumparatorului si racordat la toate utilitatile canalizare apa curenta gaze electricitate Blocul are o pozitie foarte buna situat chiar pe Sos Alexandriei la cateva minute de mijloacele de transport in comun si multiple spatii comerciale Pentru mai multe detalii si vizionari va rog sa ma contactati la numarul de telefon 0736564292
⚠ AtenÈ›ie !
Nu plăti niciodată în avans într-un cont bancar până când nu l-ai întâlnit pe vânzător și ați semnat un acord.
Nu furniza informații confidențiale în discuții pe WhatsApp/Telegram sau alte aplicații de mesagerie unde utilizatorii își ascund ușor identitatea, deoarece te poți expune la fraude sau înșelăciuni.
Nu furniza niciodată detaliile cardului tău bancar (număr, data expirării, CVV). Te expune direct la fraude bancare.
Primirea unui mesaj pe WhatsApp/Telegram cu un ID scanat nu înseamnă că ai identificat cumpărătorul. Acest lucru se face pe loc, când semnați un acord de cumpărare.
Când comanzi online, alege livrarea cu verificare. Pentru un cost relativ mic, te protejezi de eventuale neplăceri.
Descopera oportunitatea ideala de a-ti gasi casa perfecta in Bragadiru Casa eleganta conceputa pentru confort si stil de viata modern cat si acces rapid la facilitati si infrastructura - Pret 200 000 Euro un raport calitate-pret excelent pentru o proprietate de exceptie De ce sa alegi aceasta oportunitate Proprietate spatioasa si moderna ideala pentru familiile care cauta confort si siguranta Amplasare strategica aproape de puncte de interes scoli magazine si transport public Posibilitate de personalizare si dezvoltare a spatiului dupa preferintele tale Contacteaza-ne acum Echipa noastra de experti imobiliali te va ghida pas cu pas pentru a face cea mai buna alegere Nu rata aceasta sansa de a investi in viitorul tau Transforma visul in realitate - casa ta te asteapta
Te invitam sa descoperi un apartament modern cu 2 camere decomandat avand o suprafata utila de 56 3 mp disponibil la etajele 1 2 si 3 intr-un bloc nou P 3E Pod cu placa de beton finalizat in 2025 Locuinta se preda la cheie cu finisaje interioare la alegerea cumparatorului oferindu-ti libertatea de a-ti personaliza spatiul in functie de stilul tau Dotari si avantaje Centrala termica pe gaz si calorifere pentru eficienta si confort Racordat complet la utilitati apa canalizare gaze electricitate Constructie solida din caramida cu finisaje moderne si durabile Bloc cu doar 3 etaje pentru liniste si intimitate Locatie excelenta Amplasat chiar pe Soseaua Alexandriei imobilul beneficiaza de o pozitie avantajoasa aproape de statii de transport in comun supermarketuri spatii comerciale farmacii si scoli Aceasta proprietate reprezinta o oportunitate ideala atat pentru locuinta personala cat si pentru investitie pe termen lung Pentru mai multe informa...
Descopera un apartament de 56 7 mp disponibil la etajele 1 2 si 3 ale unui bloc nou construit integral din caramida cu regim redus de inaltime - doar 3 etaje pentru un plus de intimitate si confort Compartimentarea este practica si bine gandita 2 camere bucatarie separata si balcon oferind un echilibru ideal intre functionalitate si confort Locuinta dispune de incalzire pe gaz si ferestre din aluminiu asigurand eficienta energetica si confort pe tot parcursul anului Interiorul se preda complet finisat iar finisajele interioare pot fi alese de catre cumparator pentru a-ti crea propriul spatiu personalizat Avantaje si dotari Bloc nou construit din caramida Incalzire pe gaz - eficienta si confort termic Ferestre din termopan - design modern si izolare superioara 2 camere bucatarie separata balcon generos Finisaje la alegerea clientului Cladire cu doar 3 etaje ideala pentru liniste si intimitate Locatie excelenta Apartamentul este amplasat intr-o ...
Descopera un apartament spatios de 52 6 mp situat la parterul unui bloc nou din caramida finalizat in 2025 Locuinta este complet finisata si se preda la cheie cu posibilitatea de a-ti alege finisajele interioare pentru a crea spatiul exact pe gustul tau Imobilul are doar 3 etaje oferindu-ti un plus de liniste confort si intimitate - perfect pentru o viata moderna si relaxata Dotari si beneficii Incalzire proprie pe gaz - eficienta si control total asupra costurilor Tamplarie termopan Salamander - izolare excelenta si confort acustic Cladire moderna construita integral din caramida Acces facil catre toate punctele de interes urban Locatie excelenta Situat intr-o zona bine conectata aproape de statii de autobuz supermarketuri Profi non-stop Penny Mega Image scoli si gradinite dar si cafenele restaurante si farmacii - tot ce ai nevoie la doar cativa pasi distanta Transport public la cateva minute Farmacie la 570 m Acces rapid catre principalele art...
Te invitam sa descoperi un apartament de 60 7 mp disponibil la etajele 1 2 si 3 ale unui bloc nou finalizat in 2025 construit integral din caramida - atat la exterior cat si la interior Locuinta este gata pentru mutare dotata cu ferestre din termopan si elemente de tehnologie moderna care asigura eficienta si confort In plus finisajele interioare pot fi alese de catre cumparator pentru a personaliza spatiul exact dupa gustul propriu Avantaje si dotari Apartament spatios si luminos Balcon pentru relaxare Incalzire pe gaz - confort termic si control al costurilor Toate utilitatile asigurate Bloc modern din caramida - izolare termica si fonica superioara Acces rapid la transportul public Magazine restaurante si scoli la doar cativa pasi distanta Locatie excelenta Situat intr-o zona urbana bine dezvoltata apartamentul ofera acces facil la supermarketuri farmacii gradinite si statii de autobuz astfel incat tot ce ai nevoie se afla foarte aproape de casa ...
Blitz ofera spre vanzare apartament de 3 camere intr-un ansamblu rezidential nou cu o suprafata utila de 55 mp compus din living bucatarie 2 dormitoare 1 dresing 1 baie hol si 2 balcoane In incinta ansamblului vor exista spatii comerciale parc si gradinita Apartamentele se predau la stadiul de finisat iar preturile sunt cu TVA INCLUS Exista si posibilitatea de a achizitiona 1 loc de parcare exterior la pretul de 4500 Euro TVA inclus sau subteran la pretul de 6500 euro TVA INCLUS Termen de finalizare MAI 2025 Cod oferta / ID BLITZ P130528 Id intern P130528
REA1025502 SVN Romania va propune spre vanzare un duplex situat la parter care se apropie mai mult de o casa de designer decat de un apartament clasic Gandit in jurul unor nuante curajoase si contraste elegante acest spatiu imbina perfect luxul arta si functionalitatea Pret 590 000 EUR TVA Chirie generata in prezent 3 000 EUR TVA Ce primesti 96 7 mp utili peste 20 mp terase gradina proprie - perfect atat pentru locuit cat si pentru birou Living spectaculos cu dubla inaltime decor mural si ferestre de design pe intreaga inaltime Bucatarie moderna cu zona de bar ideala pentru intalniri business sau seri relaxante intre prieteni Compartimentare versatila dormitoare sau birouri spatioase bai premium terase private Zona de entertainment air hockey darts si lounge pentru socializare Doua birouri distincte fiecare cu posturi duble de lucru - potrivite pentru profesionisti in regim hibrid sau companii boutique Gradina privata si teras...
Apartament 3 camere decomandat loc de parcare intabulat in Tomis Plus ndash bloc Tomis Villa Strada Berlin In inima unuia dintre cele mai cautate cartiere ale Constantei te asteapta un apartament care nu ofera doar spatiu ci si sentimentul acela rar aici ne putem vedea crescand ca familie O lumina calda iti intampina pasii din primul moment iar compartimentarea inteligenta face ca fiecare colt al locuintei sa aiba un scop si un farmec aparte Detalii constructive si pozitionare Suprafata utila de 76 mp la care se adauga 3 balcoane 11 mp perfect integrate in stilul de viata al unei familii moderne Suprafata totala 87 mp Etaj 2 din 3 intr-un bloc din caramida ndash solid calduros si bine izolat Orientare sud-est ndash apartamentul este scaldat in lumina naturala de dimineata pana dupa-amiaza exact lumina aceea blanda care iti da stare de bine Loc de parcare intabulat pozitionat chiar in fata blocului ndash confort maxim zilni...
Apartament de vanzare 3 camere Situat in Sos Colentina la etajul 10 10 Bloc renovat anvelopa o singura scara Apartament este renovat instalatie sanitara schimbata instalatie electrica schimbata Ac in fiecare camera a apartamentului Se vinde cum se vede in poze mobilat si utilat
Comision 0 - Direct Dezvoltator Preturi Promotionale - Imobil Nou DESCRIERE Modern si avangardist Ansamblul Rezidential reprezinta o oportunitate premium in zona de Sud a Bucurestiului Situat in apropierea de Metrou Titan si Metrou 1 Decembrie 1918 pe raza sectorului 3 la doar 7 minute de parcurs cu masina In proximitate mijloace de transport centre comerciale scoli gradinite centre medicale precum si spatii de recreere Acest imobil este imbinarea ideala dintre calitatea si durabilitatea constructiei Design arhitectural modern finisajele si dotari premium Materiale de inalta calitate compartimentare practica cu spatii indoor si outdoor generoase si usor de amenajat toate acestea pentru a va asigura un confort maximilizat ARHITECTURA Arhitectura deosebita pune la dispozitie un modul inconjurat de spatii verzi alegerea ideala pentru cei in cautare de apartamente moderne si accesibile cu gradini si terase spatioase variind de la 1 la 4 camere Ansambl...
București - 1 August 2025
125.783 €
Atenție
Din motive de securitate și pentru protecția utilizatorilor, această funcționalitate nu este disponibilă pentru locația ta.