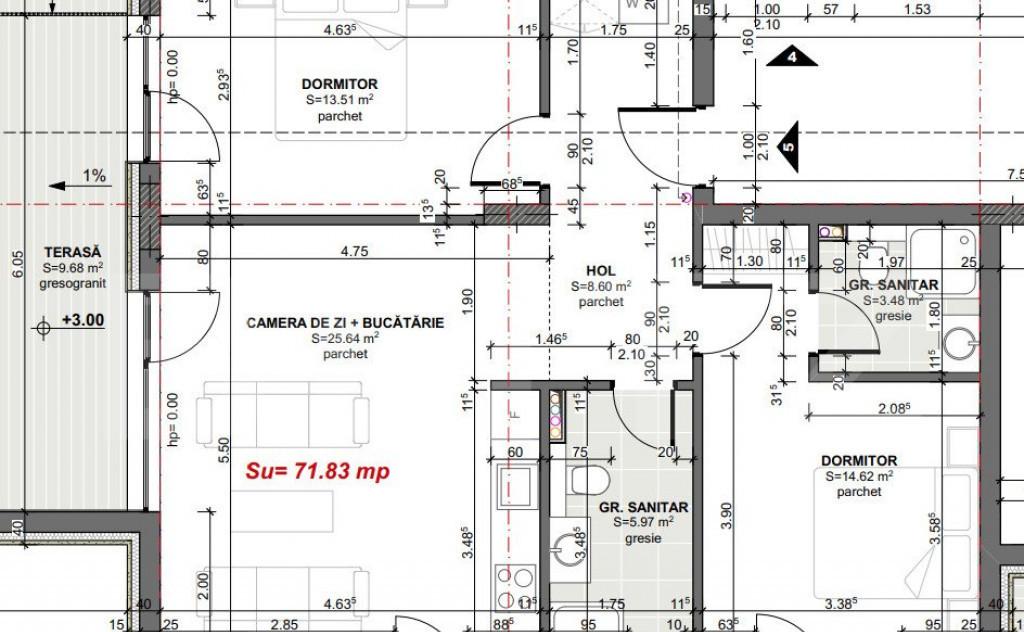
Ansamblu rezidential exclusivist in Apahida Descopera un proiect unde luxul intalneste functionalitatea oferind confort rafinament si calitate in fiecare detaliu Detalii constructive Fatada ventilata moderna cu durabilitate ridicata Case ale scarii placate cu marmura Tamplarie premium pentru izolare excelenta Confort si design Incalzire in pardoseala Terase generoase si apartamente luminoase Spatii moderne si functionale Spatiu comercial la parter Placat cu ceramica durabila ce isi mentine aspectul impecabil timp de 50 de ani Parcare Exterioara 3 500 EUR Garaj 6 500 EUR Preturile nu includ TVA - 19 Predare si finisaje Baie finisata complet Gresie si faianta in bucatarie Pereti cu doua straturi de glet gata pentru vopsea lavabila Cod oferta / ID BLITZ P143264 Id intern P143264
⚠ AtenÈ›ie !
Nu plăti niciodată în avans într-un cont bancar până când nu l-ai întâlnit pe vânzător și ați semnat un acord.
Nu furniza informații confidențiale în discuții pe WhatsApp/Telegram sau alte aplicații de mesagerie unde utilizatorii își ascund ușor identitatea, deoarece te poți expune la fraude sau înșelăciuni.
Nu furniza niciodată detaliile cardului tău bancar (număr, data expirării, CVV). Te expune direct la fraude bancare.
Primirea unui mesaj pe WhatsApp/Telegram cu un ID scanat nu înseamnă că ai identificat cumpărătorul. Acest lucru se face pe loc, când semnați un acord de cumpărare.
Când comanzi online, alege livrarea cu verificare. Pentru un cost relativ mic, te protejezi de eventuale neplăceri.
Blitz va propune o oportunitate pentru investitie o casa SAD situata in zona Girocului una dintre cele mai bune si cautate zone din Timisoara Proprietatea are o suprafata utila de 280 mp fiind amplasata pe un teren de 642 mp cu un front stradal de 18 ml Cladirea este dispusa pe parter si etaj parterul fiind construit in 1990 iar etajul adaugat in 2005 Intreaga constructie a fost renovata complet in 2022 inclusiv instalatiile electrice si sanitare si este izolata termic Acoperisul este din tigla iar in 2024 au fost montate panouri solare ceea ce reduce semnificativ costurile de intretinere Spatiul este compartimentat inteligent avand 8 incaperi potrivite pentru activitati comerciale 2 bai un birou beci si garaj in curte Beneficiaza si de o camera tehnica In acte figureaza ca spatiu cu destinatie comerciala SAD si detine negatie ISU pentru functionarea ca clinica ceea ce il face ideal pentru clinica medicala centru de infrumusetare birouri sau alte s...
Blitz va ofera spre inchiriere un apartament modern cu 2 camere semidecomandat situat in Floresti zona Subcetate Locatie excelenta - aproape de magazine si mijloace de transport in comun Compartimentare practica Dormitor confortabil - pat dublu dulap spatios Living open-space - luminos ideal pentru relaxare sau lucru de acasa la cererea chiriasului se achizitioneaza si canapea etc Bucatarie moderna - complet mobilata si utilata cu electrocasnice noi Baie eleganta - dotata cu finisaje premium 2 balcoane deschise - perfect pentru momente de relaxare Dotari pentru confort maxim Prima inchiriere - mobilat si utilat la cheie Centrala proprie incalzire eficienta Masina de spalat haine Loc de parcare subteran inclus Disponibil imediat Contacteaza-ne pentru detalii si programarea unei vizionari Cod oferta / ID BLITZ P153868 Id intern P153868
Blitz va propunem spre vanzare un apartament modern cu 3 camere situat intr-o zona linistita si bine pozitionata din apropierea straziiIuliu Maniu - ideal pentru o familie un cuplu sau ca investitie sigura Suprafata utila 67 mp Compartimentare 2 dormitoare living open-space cu bucatarie Baie spatioasa cu cada Balcon cu priveliste deschisa Etaj 4 / imobil cu acoperis Apartamentul a fost recent renovat avand un design modern luminos si primitor Dotari si finisaje -Centrala termica proprie -Aer conditionat -Masina de spalat rufe frigider hota plita si cuptor electric -Parchet nou gresie si faianta moderne -Ferestre termopan -Instalatii schimbate integral Avantaje zona -Cartier linistit si sigur ferit de trafic intens -In imediata apropiere gradinite scoli facultati magazine farmacii mijloace de transport in comun -Acces rapid catre centrul orasului Apartamentul este disponibil imediat se vinde complet mobilat si utilat gata pentru muta...
Casa spatioasa de vanzare in Bod - teren generos mobilata si utilata zona in dezvoltare Descopera confortul si linistea unei locuinte gata de mutat situata intr-o zona linistita si in plina expansiune din Bod la doar cativa kilometri de Brasov Suprafata utila 148 mp Suprafata teren 623 mp - ideal pentru gradina loc de joaca sau zona de relaxare Incalzire centrala pe lemne - eficienta si economica Se vinde complet mobilata si utilata - te poti muta imediat Acte la zi - tranzactie rapida si sigura Transport in comun in apropiere - acces facil catre oras Zona in plina dezvoltare - investitie cu potential pe termen lung Pret 199 000 EUR Locatie Bod - o comunitate linistita perfecta pentru familii sau pentru cei care isi doresc un stil de viata relaxat aproape de oras Aceasta casa este alegerea ideala pentru o familie care cauta confort spatiu si intimitate dar si pentru investitori care doresc o proprietate complet pregatita pentru...
Blitz va prezinta un apartament pretabil pentru birou/firma cu doua camere situat in sectorul 2 pe strada Paul Greceanu nr 26 intr-o cladire de tip casa de tip S P 2E Ma construita in anul 1940 Imobilul beneficiaza de o renovare recenta fiind complet modernizat spatios si perfect pentru locuire Apartamentul este amplasat in mansarda cu o suprafata de 40 mp oferind un spatiu luminos si confortabil Locuinta dispune de un loc de parcare in curte si se afla intr-o zona cu trafic redus asigurand liniste si intimitate Accesul la metrou Stefan cel Mare se realizeaza in doar 2 minute pietonal iar in imediata apropiere gasiti facilitati esentiale precum Spitalul Floreasca Stadionul Dinamo gradinite scoli parcuri Parcul Circului si magazine Mega Image De asemenea sectia de politie este la doar cateva case distanta asigurand siguranta si comfort Aceasta proprietate reprezinta o oportunitate ideala pentru cei care cauta un apartament modern in zone linistite dar cu...
Vanzare apartament 3 trei camere decomandat lux situat la etaj 4/8 cu o priveliste superba living 2 doua dormitoare bucatarie 2 doua bai finisaje moderne calitate central zona centrala magazine scoli in apropiere de Mall Vitan mijloace de transport zona cu o priveliste deosebita finisaje deosebite calitate
R E A Imobiliare va ofera spre vanzare un apartament cu 3 camere decomandat amplasat in zona Pantelimon/Spital Pantelimon Bloc reabilitat termic construit in 1974 care nu este incadrat in nicio categorie de risc seismic nefiind expertizat Vederea apartamentului este pe spate Se afla la etajul 7 al unui bloc cu 10 etaje si are o suprafata utila totala de 71 mp din care 9 mp sunt reprezentati de balcon Compartimentare living doua dormitoare bucatarie baie si balcon Se vinde mobilat si utilat Confortul termic este asigurat prin reteaua edilitara de termoficare dar si cu ajutorul aparatului de aer conditionat Instalatiile electrice si sanitare sunt schimbate Loc de parcare Boxa pentru depozitare Zona pet-friendly In imediata apropiere se afla puncte comerciale bancare farmaceutice medicale educationale si de divertisment Acces facil la mijloacele de transport in comun 12-15 minute pana la statia de metrou Se accepta toate modalitatile de plata I...
Acest imobil face parte din dezvoltarea imobiliara HOMECLASS Residence situat in zona Noua Brasov Un proiect rezidential nou gandit pentru cei care isi doresc un stil de viata echilibrat intr-un cadru natural dar cu acces facil catre oras Ansamblul este dezvoltat pe regim de inaltime P 3E Etaj Retras cu un total de 28 de apartamente cu 1 2 si 3 camere fiecare proiectat cu atentie la detalii confort si functionalitate COMPARTIMENTARE - Zona de zi care are o suprafata generoasa - Bucataria de tip open space aceasta dispunand de zona de luat masa si acces la terasa - Dormitorul detine acces la terasa comuna cu zona de living - Camera beneficiaza de suprafete vitrate mari - Baia aceasta dispune de aerisire naturala DOTARI - centrala pe bloc - tamplarie PVC cu geam termopan - usa metalica - izolatie cu vata bazaltica de 10 cm - incalzire in pardoseala FACILITATI DE PARCARE - 32 de locuri de parcare acoperite care pot fi achizitionate ...
Blitz va prezinta o proprietate de vanzare ideala pentru familiile care cauta confort si accesibilitate Beneficiaza de urmatoarele caracteristici Compartimentare apartamentul dispune de 3 camere semidecomandat oferind un spatiu generos si bine delimitat Suprafata cu 90 mp utili locuinta asigura suficient spatiu pentru un stil de viata confortabil avand un garaj subteran si pivnita 24 mp Mobilare si utilari proprietatea este complet mobilata si utilata gata sa primeasca noii proprietari fara a fi nevoie de investitii suplimentare Localizare situata intr-o zona buna in imediata apropiere a magazinelor scolii gradinitei parcului si statiei de autobuz facilitand accesul la toate utilitatile de care ai putea avea nevoie Aceasta oferta reprezinta o oportunitate excelenta pentru cei care doresc o locuinta spatioasa moderna si situata intr-o zona cu toate avantajele vietii urbane Cod oferta / ID BLITZ P142860 Id intern P142860
ImoPuls va propune o constructie noua - 2025 in zona Braytim - Timisoara cu o arhitectura deosebita moderna cu apartamente de 3 camere decomandate 2 bai compartimentate excelent Locuintele sunt racordate la toate utilitatile publice se predau la quot cheie quot cu finisaje alese pe gustul clientilor care beneficiaza si de locuri de parcare incluse in pret Fiecare apartament beneficiaza de - gresie si faianta de la Tempini - usi interioare de la Coco amp Tinoli - ferestre cu tamplarie PVC si geamuri tripan 7 camere cu argon de la Qfort - aparat de aer conditionat de 18 000 BTU cu Wi-Fi - incalzire cu centrala proprie in condesatie 24kw si incalzire in pardoseala - usa metalica la intrare - loc de parcare privat in curtea interioara a imobilului Imobilul are structura din beton ziduri din caramida si este termoizolat la exterior cu polistiren de 15 cm Preturile nu contin tva Termenul de predare al apartamentelor este Noiembrie 2025
TimiÅŸ - 17 Iulie 2025
170.765 €
Atenție
Din motive de securitate și pentru protecția utilizatorilor, această funcționalitate nu este disponibilă pentru locația ta.