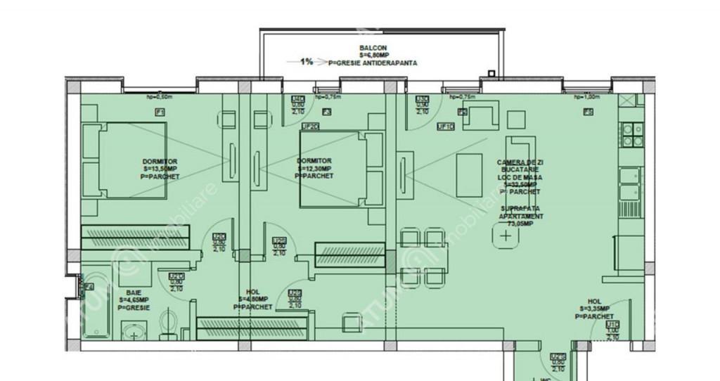
De vanzare apartament de 3 camere decomandate cu 2 bai si balcon situat la etajul intermediar 1 din 3 cu doar 4 apartamente pe palier situat intr-un imobil constructie noua aflat in zona Doamna Stanca Apartamentul are 94 46 mp construiti si 73 05 mp utili acesta fiind compus dintr-un living open space cu bucataria de 32 50 mp doua dormitoare dintre care cel matrimonial de 13 50 mp iar cel secundar 12 30 mp 2 bai iar cea principala 4 65 mp dotata cu geam de aerisire si cada iar cea de serviciu 1 95 mp hol de acces 3 35 mp unde poate fi pozitionat cuierul cu pantofar iar al doilea hol 4 80 mp unde poate fi incastrat un dressing spatios Separat de suprafata utila apartamentul dispune si de un balcon 6 80 mp in care accesul se face atat din camera de zi cat si dintr-un dormitor j Parcarea se realizeaza pe propriul loc de parcare situat in fata blocului Apartamentul se preda la stadiul de alb si dispune de urmatoarele dotari si finisaje -Usa de metal anti-efractie la intrarea in apartament placata cu MDF -Pereti tencuiti tencuiala pe baza de var-ciment gletuiti si zugraviti cu lavabila alba in 2 straturi -Pardoseli amenajate cu sapa autonivelanta semiuscata elicopterizata pregatite pentru parchet-gresie -Tamplarie PVC marca Sallamander cu 5 camere si 3 foi de sticla cu Low-E glafuri exterioare de aluminiu si PVC interior -Centrala proprie pe gaz marca Bosch in condensare si incalzire in pardoseala -Distribuitor pentru instalatia de incalzire - Racorduri apa-canal in bucatarie si bai - Racord gaz metan la bucatarie -Instalatii electrice trase pe pozitie cu tablou general si sigurante pentru consumatorii de putere -Instalatii pentru TV si internet trase pe pozitie Din punct de vedere structural imobilele sunt edificate pe structura din beton si zidarie din caramida cu grosimea de 30 cm anvelopare termica exterioara realizata din polistiren expandat de 10 cm cu densitatea EPS 80 si zugravit cu decorativa siliconata de exterior usa de acces din PVC cu inchidere electro-magnetica si interfon acoperis tip sarpanta cu invelitoare din tigla marca Bramac plansee din beton intre etaje inclusiv intre etajul 3 si pod Valoarea apartamentului la plata unui avans de 15 este de 141 570 TVA Inclus se poate achizitiona si prin credit ipotecar ID intern 3009
⚠ AtenÈ›ie !
Nu plăti niciodată în avans într-un cont bancar până când nu l-ai întâlnit pe vânzător și ați semnat un acord.
Nu furniza informații confidențiale în discuții pe WhatsApp/Telegram sau alte aplicații de mesagerie unde utilizatorii își ascund ușor identitatea, deoarece te poți expune la fraude sau înșelăciuni.
Nu furniza niciodată detaliile cardului tău bancar (număr, data expirării, CVV). Te expune direct la fraude bancare.
Primirea unui mesaj pe WhatsApp/Telegram cu un ID scanat nu înseamnă că ai identificat cumpărătorul. Acest lucru se face pe loc, când semnați un acord de cumpărare.
Când comanzi online, alege livrarea cu verificare. Pentru un cost relativ mic, te protejezi de eventuale neplăceri.
De vanzare casa compusa din 4 camere cu 2 bai si 2 locuri de parcare in suprafata totala de 97 mp localizat intr-o zona populata exclusiv de case din cartierul Arhitectilor Imobilul este tip cvadruplex compus din Parter Etaj edificat in anul 2015 pe zidarie portanta din caramida iar structura si planseele sunt din beton armat Din punct de vedere al izolatiei termice aceasta este anvelopata cu polistiren expandat de 10 cm cu densitatea EPS 80 acoperis este terasat iar invelitoarea este din tigla metalica Terenul total masoara 94 mp dintre care amprenta casei este de 48 mp terenul liber este de 46 mp dispus in doua zone curtea libera de 37 mp amenajata cu dale din beton si gazon iar restul de teren este locul de parcare privat Suprafata utila a casei este de 80 mp distribuiti pe cele doua niveluri La parter regasim un hol de acces unde regasim zona de primire amenajata cu pantofar si cuier camera de zi tip open space cu bucataria care pot fi separate baie dotata cu gea...
De vanzare in zona Vasile Aaron din Sibiu apartament renovat de 2 camere decomandate cu balcon pivnita uscata si boxa in suprafata totala de 62 69 mp orientat SUD-EST Apartamentul este situat la parterul inalt care poate fi considerat chiar etajul 1 al unui imobil edificat in jurul anilor 1980 care gazduieste doar 4 apartamente pe palier si care dispune de lift 6 persoane izolatie termica exterioara de 10 cm interfon pentru accesul securizat in imobil si acoperis terasat Apartamentul este luminat si incalzit pe toata perioada zilei datorita orientarii prielnice inspre SUD-EST Apartamentul masoara 50 mp suprafata utila si este compus dintr-un hol de acces generos unde este si zona de primire dotata cu pantofar si cuier si prin intermediul holului se face accesul in fiecare incapere separat Camera de zi frumos amenajata si unde poate fi amenajat un dinning pentru mesele in familie dormitorul matrimonial bucataria separata si cu acces la o camara dotata cu geam ba...
De vanzare apartament cu 2 camere decomandate la etajul intermediar 1 cu balcon si loc propriu de parcare in suprafata totala de 65 38 mp orientat spre SUD-EST localizat in zona Calea Dumbravii/Siretului din Sibiu Apartamentul pozitionat la etajul intermediar 1 facem parte dintr-un ansamblu rezidential nou edificat in jurul anului 2010 cu doar 3 etaje si 4 apartamente pe palier Din punct de vedere structural imobilul este edificat pe structura din beton si zidarie exterioara din caramida cu grosimea de 30 cm izolat termic exterior cu polistiren expandat de 10 cm zugravit in vopsea decorativa de exterior siliconata si acoperis tip terasa cu invelitoare din tigla metalica Suprafata utila a apartamentului este de 48 mp acesta fiind compus la intrare dintr-un hol generos unde se poate pozitiona cuierul cu pantofar si unde se afla si un dressing incastrat camera de zi tip open space cu bucataria un dormitor generos baia spatioasa dotata cu cada si geam de aerisire Separa...
De vanzare apartament cu 2 camere in suprafata totala de 50 mp si pivnita proprie uscata orientat spre SUD pozitionat in zona Rahovei/Ciresica din Sibiu Apartamentul este pozitionat la parterul inalt al unui imobil edificat in jurul anului 1980 intr-un imobil cu 4 nivele si doar 4 apartamente pe palier Apartamentul masoara 40 mp suprafata utili acestia fiind distribuiti intr-un hol de acces unde poate fi amenajata zona de primire cu pantofar si cuier bucatarie separata camera de zi si un al doilea hol prin intermediul caruia se face accesul atat in baie care este dotata cu cada cat si in dormitor Parcarea se realizeaza pe locurile de parcare publice aflate in fata blocului Apartamentul dispune de dotari si finisaje precum centrala termica proprie pe gaz cu calorifere din otel termostatate si instalatie termica din cupru usa metalica de de acces tamplarie PVC cu geam termopan pardoseala placata cu parchet laminat si gresie peretii bai placati cu fainta obiecte sanita...
De vanzare apartament de 3 camere cu 2 balcoane tip loggie de 94 mp construiti situat la etajul intermediar 2 orientare Estica localizat in zona Rahovei/Ciresica din Sibiu Apartamentul este situat la etajul intermediar 2 al unui imobil edificat in anul 2008 compus din Parter 5 Etaje si care gazduieste doar 2 apartamente pe palier Din punct de vedere structural acesta este construit pe structura din beton si zidarie din caramida de 30 cm grosime exterior peste care este aplicat termosistemul exterior de 10 cm cu densitate EPS 80 si zugravit cu vopsea decorativa siliconata de exterior acoperisul este tip sarpanta cu invelitoare din tigla Locuinta masoara 82 00 mp utili in care cele 2 balcoane incastrate de 5 mp si 5 5 mp sunt incluse si este compusa din camera de zi cu bucataria tip open space de 40 90 mp care pot fi delimitate cu usurinta si dispun de acces intr-un balcon de 4 95 mp 2 dormitoare dintre care cel matrimonial de 14 50 mp beneficiaza de acces in al doilea bal...
Comision 0 - Direct Dezvoltator Preturi Promotionale - Imobil Nou DESCRIERE Modern si avangardist Ansamblul Rezidential reprezinta o oportunitate premium in zona de Sud a Bucurestiului Situat in apropierea de Metrou Titan si Metrou 1 Decembrie 1918 pe raza sectorului 3 la doar 7 minute de parcurs cu masina In proximitate mijloace de transport centre comerciale scoli gradinite centre medicale precum si spatii de recreere Acest imobil este imbinarea ideala dintre calitatea si durabilitatea constructiei Design arhitectural modern finisajele si dotari premium Materiale de inalta calitate compartimentare practica cu spatii indoor si outdoor generoase si usor de amenajat toate acestea pentru a va asigura un confort maximilizat ARHITECTURA Arhitectura deosebita pune la dispozitie un modul inconjurat de spatii verzi alegerea ideala pentru cei in cautare de apartamente moderne si accesibile cu gradini si terase spatioase variind de la 1 la 4 camere Ansambl...
Agentia Experti Imobiliari va invita sa descoperiti un apartament spatios si primitor ideal pentru o familie care isi doreste confort si functionalitate Situat intr-o zona linistita si bine cotata zona Coiciu acest apartament decomandat cu 3 camere va ofera un spatiu generos de 86 46 mp utili completat de doua balcoane insumand 11 65 mp perfecte pentru momentele de relaxare sau cafeaua de dimineata Dispune de 2 grupuri sanitare bucatarie complet utilata mobilier modern si centrala termica pe gaz totul pregatit pentru mutare imediata Actele sunt in regula - cadastru si intabulare efectuate Nu ratati sansa de a transforma acest apartament in noul dumneavoastra acasa Pentru mai multe informatii despre acest anunt imobiliar sau pentru a programa o vizionare nu ezitati sa ne contactati Suntem aici pentru a va ajuta sa gasiti locuinta perfecta pentru stilul dumneavoastra de viata E 4 P30853 Id intern P30853
Apartament in vila Militari zona Rosu langa padure cu curte proprie zona de vile mobilat si utilat complet loc de parcare zona linistita si civilizata 90mp 50mp curte 2gs
Nou pe piata Comision 0 Va prezint spre vanzare un apartament cu 3 camere situat in zona 13 Septembrie - Marriott pe strada Mihail Cioranu Pozitionarea imobilului este excelenta foarte aproape de Calea 13 Septembrie nu este bloc stradal este in randul al doilea de blocuri fata de bulevard cu intrare atat din Soseaua Panduri pe langa Spitalul O R L Th Burghele cat si din Calea 13 Septembrie pa langa Marriott Accesul catre centrul orasului este extrem de facil 2 6km pana la Piata Unirii- 6 minute cu masina Parcul Izvor la 1 1 km- 3 minute cu masina Cartierul Cotroceni Eroilor Factultatea de Drept sunt la sub 1 8 km distanta iar in zona sunt nenumarate mijloace de transport in comun Statiile de metrou din apropiere sunt Metrou Eroilor 1- 1 5km Metrou Izvor 1 7km Metrou Academia Militara- 1 3 km Apartamentul este situat la etajul 1/8 intr-un imobil construit in anii 1978-1980 si are o suprafata totala de 70 2 mp din care 66 2 suprafata utila Imobi...
ID 3C020 Va propunem spre vanzare un apartament de 3 camere decomandat pe strada Luica cu o suprafata de 70mp Situat la etajul 4/8 Anul 1982 Suprafata de 70 mp 2 bai cu aerisire naturala Toate actele sunt pregatite pentru vanzare Comision standard Pret imobil 120 000 euro Pentru mai multe detalii vizionari sau oferte simulare contactati-ma Beatrice 0771631848
București - 26 Iulie 2025
119.990 €
Atenție
Din motive de securitate și pentru protecția utilizatorilor, această funcționalitate nu este disponibilă pentru locația ta.