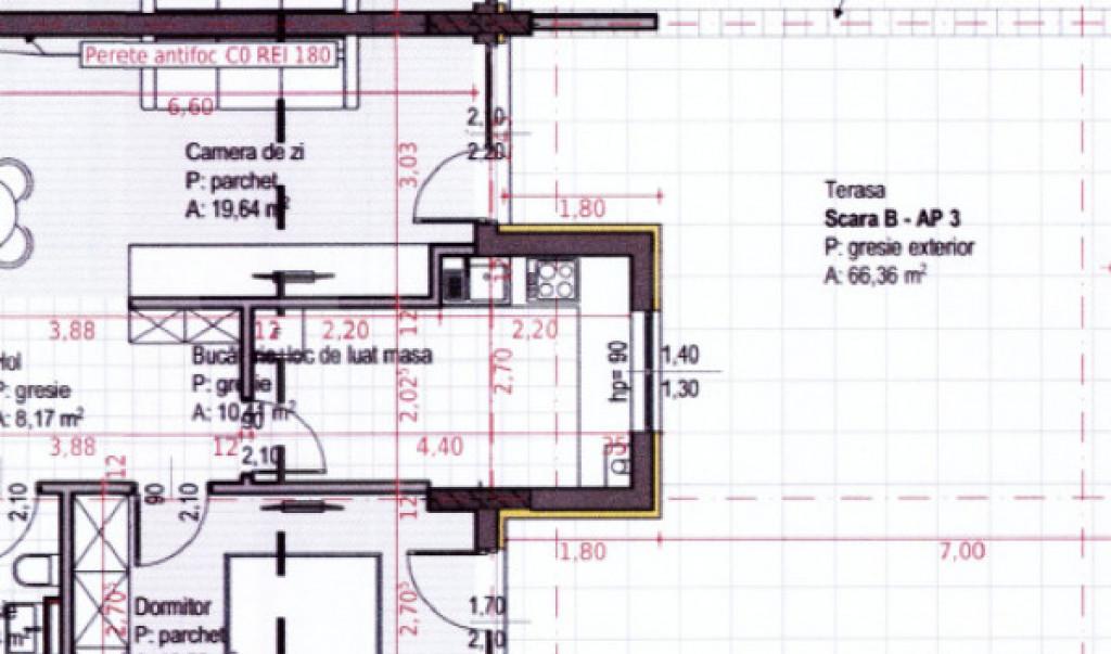
Blitz propune spre vanzare un apartament cu 2 camere amplasat intr-un bloc nou intr-una dintre cele mai dinamice si apreciate zone ale Clujului -- Sopor la doar cateva minute de Iulius Mall Baza Sportiva Gheorgheni si zone verzi Locuinta se afla intr-un imobil cu regim de inaltime P 9 si beneficiaza de compartimentare practica si spatii vitrate generoase oferind lumina naturala pe tot parcursul zilei Suprafata utila Living - 19 64 mp Bucatarie loc de luat masa - 10 41mp Baie - 4 54 mp Dormitor- 12 55 mp Hol- 8 17 mp Terasa de 66 38 mp ideal pentru relaxare Se preda in stadiul de semifinisat cu -sistem de incalzire centralizata pe bloc cu repartitoare individuale -instalatii trase pe pozitii -usa metalica la intrare tamplarie PVC cu geam tripan -pereti gletuiti sapa turnata balcoane placate cu gresie exterioara Facilitati ale zonei -acces rapid catre Iulius Mall FSEGA Lidl Carrefour Baza Sportiva Gheorgheni -mijloace de transport in comun la cateva minute -zona in dezvoltare cu infrastructura noua si spatii verzi Apartamentul este ideal pentru locuire personala dar si pentru investitie data fiind cererea ridicata in zona si apropierea de campusul universitar In pretul afisat este inclusa si parcarea subterna - pentru detalii si vizionare te invitam sa ne contactezi Cod oferta / ID BLITZ P149240 Id intern P149240
⚠ AtenÈ›ie !
Nu plăti niciodată în avans într-un cont bancar până când nu l-ai întâlnit pe vânzător și ați semnat un acord.
Nu furniza informații confidențiale în discuții pe WhatsApp/Telegram sau alte aplicații de mesagerie unde utilizatorii își ascund ușor identitatea, deoarece te poți expune la fraude sau înșelăciuni.
Nu furniza niciodată detaliile cardului tău bancar (număr, data expirării, CVV). Te expune direct la fraude bancare.
Primirea unui mesaj pe WhatsApp/Telegram cu un ID scanat nu înseamnă că ai identificat cumpărătorul. Acest lucru se face pe loc, când semnați un acord de cumpărare.
Când comanzi online, alege livrarea cu verificare. Pentru un cost relativ mic, te protejezi de eventuale neplăceri.
Blitz va propune spre vanzare un apartament de 3 camere in zona strazii Florilor Acesta se afla la parterul inalt al unui bloc cu regim inaltime P 4 Compartimentarea modern gandita in living luminos si 2 dormitoare confortabile 1 baie dotata cu echipamente moderne 1 balcon inchis perfect pentru relaxare sau socializare/si dotat cu un spatiu de depozitare generos Mobilat si utilat complet mobilier realizat la comanda si electrocasnice de calitate superioara inclusiv masina de spalat vase si o multime de spatii de depozitare Mentionam ca a fost renovat partial acum 1 an iar centrala termica acum 3 ani Avantaje suplimentare Apartamentul este situat in zona centrala a Florestiului ceea ce ofera un acces facil la toate punctele de interes - magazine scoli transport public In plus locatia permite un drum mai scurt si mai usor spre Cluj-Napoca Nu ratati ocazia de a locui intr-un apartament modern si bine pozitionat Pentru mai multe detalii sau pentru a progra...
Blitz ofera spre vanzare un apartament de 3 camere la cateva minute de mers pe jos de Vivo Mall Apartamentul este situat la etajul 2 intr-un imobil cu 3 etaje bloc finalizat in anul 2024 Dispune de centrala termica proprie incalzire in pardoseala geamuri termopan triple si toate instalatiile sunt trase pe pozitie Acesta se preda semifinisat oferindu-va oportunitatea de a-l amenaja dupa bunul plac In plus puteti beneficia de un loc de parcare exterior in schimbul sumei de 10000 euro TVA inclus Este locuinta ideala pentru cei care isi doresc sa aiba la indemana toate facilitatile statia de autobuz la 3 minute de mers pe jos in imediata apropiere parc si Academia de Muzica Va asteptam la vizionare Cod oferta / ID BLITZ P161474 Id intern P161474
Blitz va propune spre vanzare un spatiu comercial in Zona Cetatii Spatiul face parte dintr-un nou ansamblu exclusivist de apartamente unul cu un regim de inaltime scazut de P 2 ER ce dispune si de apartamente si o zona generoasa de spatii verzi Compartimentarea practic gandita la acest spatiu este dispusa in open space 70 1 mp care poate fi compartimentat la cerere dupa bunul plac si nevoile specifice ale viitorului proprietar Au fost alesi furnizori de materiale de constructie cu o reputatie excelenta din perspectiva calitatii si a rezistentei materialelor in timp pentru a-ti oferi siguranta unei constructii cu o durata lunga de viata cu dotari si facilitati de cea mai inalta calitate insa si celor ce vor sa faca o investitie sigura si de durata avand in vedere punctele de interes din zona Vorbim despre numarul mare de magazine farmacii gradinite/ scoli private si de stat statii de bus 4 minute pana la viitoare statie de metrou Dorim sa mentionam c...
Blitz Imobiliare va prezinta spre vanzare un apartament cu 3 camere decomandate situat intr-o zona ideala pentru familii sau pentru cei care isi doresc confort Suprafata utila 52 mp Etaj parter Compartimentarea este practica si eficienta hol generos 3 camere decomandate bucatarie 1 baie Locatia ofera un echilibru ideal intre liniste si accesibilitate cu acces rapid catre magazine scoli gradinite licee si mijloace de transport in comun la cateva minute conexiuni rapide catre centrul orasului P Zona este cunoscuta pentru infrastructura bine dezvoltata spatiile verzi din proximitate si calitatea vietii fiind una dintre cele mai cautate din Manastur Proprietatea este potrivita atat pentru locuinta personala cat si pentru investitie Va asteptam la vizionare alaturi de Blitz Imobiliare Cod oferta / ID BLITZ P161399 Id intern P161399
Blitz ofera spre vanzare un apartament cu 3 camere situat in zona strazii Campului aproape de statia de autobuz magazine acces usor spre centru Imobilul are 2 etaje si doar 6 apartamente gradina de 300 mp cu loc de joaca si barbeque Apartamentul este la etajul 1 si are o suprafata utila de 74mp si este compus din hol de acces living cu acces pe balcon bucatarie 2 dormitoare baie cu geam baie camara La subsol detine un garaj subteran generos cu spatiu de depozitare si boxa de depozitare Orientarea apartamentului este Sud-vestica Pentru mai multe detalii nu ezitati sa ne contactati Cod oferta / ID BLITZ P161425 Id intern P161425
Doar in luna IULIE beneficiezi de un DISCOUNT DE 10 din valoarea avansului Pretul prezentat este pentru avans de 50 din valoarea apartamentului Va prezint un apartament cu doua camere decomandat bine compartimentat cu suprafata de 56 mp balcon de 5 mp bucatarie inchisa cu suprafata de 9 mp situat la etajul 3 intr-un bloc cu 10 etaje Apartamentul se preda finisat la cheie cu baie complet dotata cu obiecte sanitare montate si bransat la toate utilitatile Finisajele sunt de buna calitate executate cu atentie la detalii iar in unele situatii chiar vi le puteti alege in anumite conditii Termenul de finalizare al constructiei este luna Septembrie 2025 Pana la aceasta data cladirea va fi racordata la toate utilitatile apartamentul va fi complet finisat si dotat si puteti chiar incepe mobilarea Zona in care se afla imobilul este una foarte usor accesibila cu acces rapid catre mijloace de transport in comun metrou autobuz troleibuz tramvai dar si ...
0 COMISION Acasa nu e un loc e o stare Iar acest apartament te asteapta sa o traiesti din plin Iti propunem un Apartament cochet cu 2 camere Decomandat situat la etajul 9 din 12 intr-un bloc modern finalizat in anul 2016 Este amplasat intr-o zona care devine din ce in ce mai frumoasa chiar langa ultima faza a Parcului Liniei Faza 3 - aflata acum in plina amenajare - si la doar cateva minute de mers pe jos pana la metrou Lujerului Suprafata totala este de 57 mp iar balconul generos de 4 mp este perfect pentru o cafea dimineata sau pentru cateva momente de liniste la final de zi Fiecare coltisor a fost amenajat cu grija si cu gust astfel incat sa te simti acasa din prima clipa CE il face special Este locul in care nu trebuie sa mai faci nimic decat sa te muti si sa te bucuri Apartamentul se vinde exact asa cum il vezi in poze complet mobilat si utilat gandit pentru confortul zilnic si pentru un stil de viata relaxat DOTARILE care iti fac viata mai usoa...
Viziteaza site-ul CleverImobiliare ro si descopera oferta completa de apartamente din intreaga zona Theodor Pallady Peste 1000 de locuinte disponibile direct de la dezvoltator fara comision Gaseste locuinta perfecta pentru tine chiar acum Pret 72 477 Euro TVA Complex rezidential exclusivist format din 3 blocuri cu regim de inaltime P 3 Etaje design-ul minimalist cu ferestre largi ce creeaza spatii luminoase si confortabile dar si o conexiune naturala intre interior si exterior Comunitatea noastra ofera o experienta de viata contemporana cu un design inovator Indiferent daca preferati sa ramaneti activ sau sa va relaxati resedinta noastra va ofera toate aceste facilitati Alatura-te comunitatii noastre in care eleganta si modernitatea se intalnesc si vei putea beneficia de un stil de viata modern si durabil Blocul este proiectat foarte modern atat ca design cat si din punct de vedere al tehnologiilor de constructie materialele folosite fiind de cea mai buna ca...
PYF010B9715 Imagineaza-ti locuinta perfecta care sa reflecte personalitatea ta si sa satisfaca toate nevoile tale Echipa noastra dedicata te va ajuta in cautarea locuintei ideale Portofoliul nostru include exact ceea ce iti doresti tu si familia ta Alege PYF REAL ESTATE pentru a transforma visul tau in realitate PYF REAL ESTATE va propune spre vanzare un apartament situat in zona Pantelimon in imediata apropiere a metroului autobuzului zonelor comerciale restaurantelor centrului universitar situat la 15 minute de statia de metrou Costin Georgian intr-un imobil construit in anul 1974 finalizat avand structura de monolit si compartimentari de caramida Imobilul are izolatie exterioara si interioara apartamentul compus din doua camere avand un dormitor o baie si o bucatarie este situat la etajul 5/10 Avand o suprafata 42mp dar si o compartimentare decomandata apartamentul a fost recent renovat avand finisaje de calitate ridicata si anume parchet gr...
apartament 2 camere confort 1 anul 1984 suprafata totala 58 mp semidecomandat etajul 6/10 cadastru intabulare liber Apartamentul are centrala termica toate instalatiile sunt noi bloc izolat termic Blocul are 2 lifturi
București - 7 Mai 2025
128.000 €
Atenție
Din motive de securitate și pentru protecția utilizatorilor, această funcționalitate nu este disponibilă pentru locația ta.