Apartament cu 3 camere situat pe Calea Vitan chiar langa Auchan Vitan Are o suprafata totala de 72 mp este semidecomandat Bloc construit in anul 1985 anvelopat termic Compartimentarea este ideala pentru o familie 3 camere luminoase 2 bai si un balcon generos cu vedere directa spre Delta Vacaresti Bucataria este mobilata si utilata complet Apartamentul dispune de geamuri termopan aer conditionat Locatia este excelenta aproape de mijloace de transport in comun metrou STB scoli gradinite si centre comerciale inclusiv Mall Vitan Vederea spre Rezervatia Delta Vacaresti ofera un plus de liniste si un cadru natural deosebit Comision standard Pret 130 000 euro Apartamentul este ideal atat pentru locuit cat si pentru investitie datorita pozitionarii excelente si dezvoltarii continue a zonei Pentru mai multe detalii vizionari si cele mai bune oferte contactati-ma Moreanu Alexandru - 0762829209
⚠ AtenÈ›ie !
Nu plăti niciodată în avans într-un cont bancar până când nu l-ai întâlnit pe vânzător și ați semnat un acord.
Nu furniza informații confidențiale în discuții pe WhatsApp/Telegram sau alte aplicații de mesagerie unde utilizatorii își ascund ușor identitatea, deoarece te poți expune la fraude sau înșelăciuni.
Nu furniza niciodată detaliile cardului tău bancar (număr, data expirării, CVV). Te expune direct la fraude bancare.
Primirea unui mesaj pe WhatsApp/Telegram cu un ID scanat nu înseamnă că ai identificat cumpărătorul. Acest lucru se face pe loc, când semnați un acord de cumpărare.
Când comanzi online, alege livrarea cu verificare. Pentru un cost relativ mic, te protejezi de eventuale neplăceri.
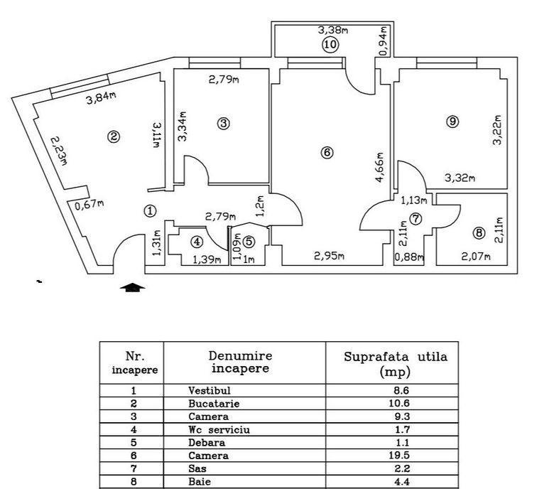
Va propunem spre vanzare un apartament cu 2 camere semidecomandat situat la etajul 1 din 4 al unui bloc anvelopat pe Drumul Gazarului in imediata apropiere a Bulevardului Constantin Brancoveanu Apartamentul are o suprafata de aproximativ 38 mp si este renovat complet oferind un ambient modern luminos si bine organizat Ideal atat pentru locuinta proprie cat si pentru investitie intr-o zona cu acces facil catre mijloace de transport si puncte de interes Apartamentul este ideal atat pentru locuit cat si pentru investitie datorita pozitionarii excelente si dezvoltarii continue a zonei Pentru mai multe detalii vizionari si cele mai bune oferte contactati-ma Moreanu Alexandru - 0762829209
Echipa Ramiro Imob va intampina cu o noua oferta Apartament in zona cu cel mai inalt prag de dezvoltare 2 Camere Suprafata 50mp DECOMANDAT Complet Utilat gata de mutare Pret 110 000 2 Parcari Pret total 130 000 Negociabil Doua parcari acestea se achizitioneaza impreuna cu apartamentul Magazin la parterul blocului iar in proximitate regasiti parcuri Ikea Pallady Auchan Lidl Kaufland Metrou Nicolae Teclu statii de autobuz si tramvai Apartamentul este ideal atat pentru locuit cat si pentru investitie datorita pozitionarii excelente si dezvoltarii continue a zonei Pallady Pentru mai multe detalii vizionari si cele mai bune oferte contactati-ma Moreanu Alexandru - 0762829209
Inca o data Ramiro Imob va propune spre vanzare un apartament de 2 camere in una dintre cele mai bune zone din Dristor este la 1 minut de mers pe jos de Metrou Balcon Inchis pentru eficienta termica Suprafata de 51mp Foarte bine compartimentat Imobilul se afla pe Bulevardul Camil Ressu Metrou Dristor 1 este fix langa Bloc Mega Image la parterul blocului Nu necesita nici-o investitie mutare rapida se vinde mobilat si utilat exact cum vedeti in poze Apartamentul se poate viziona oricand avem cheia Pret 89 999 euro Negociabil Pentru mai multe informatii vizionari sau chiar si alte oferte contactati-ma 0762829209 Alexandru Comision standard
Ramiro Imob va propune spre vanzare un apartament cu 2 camere in zona Unirii Etaj 6/10 Suprafata aproximativ 50mp Instalatiile electrice si sanitara sunt schimbate Apartamentul tocmai ce a fost renovat se vinde mobilat si utilat exact ca in poze In fata blocului nu optureaza nimic privelistea este zona de case Imobilul este amplasat intr-o zona linistita cu acces facil la mijloace de transport centre comerciale scoli si alte puncte de interes Apartamentul este ideal atat pentru locuit cat si pentru investitie datorita pozitionarii excelente si dezvoltarii continue a zonei Unirii Pentru informatii Moreanu Alexandru 0762829209
Ramiro Imob va propune spre vanzare un apartament cu 2 camere Decomandat Decomandat Suprafata 40mp Situat la etajul 9 din 10 Imobilul se afla pe Strada Codrii Neamtului Imobilul este construit in anul 1977 si ofera acces facil la mijloace de transport tramvai autobuz si facilitati din zona piete magazine Auchan Titan scoli gradinite Nu necesita nici-o investitie mutare rapida se vinde mobilat si utilat partial Pret 81 000 euro Negociabil Pentru mai multe detalii vizionari sau oferte similare contactati-ma 0762829209 Alexandru Comision standard
Blitz ofera spre vanzare apartament 3 camere situat in zona Metro/Amethyst/Vivo intr-un complex bine cotat Apartamentul se afla aproape de mijloace de tansport in comun magazine farmacii gradinite si spatii verzi langa VIVO mall Apartamentul este situata la etajul 1 al unui imobil cu regim de inaltime P 7 finalizat in anul 2023 Suprafata utila este de 55 mp si o terasa generoasa de 26 mp Compartimentarea este semidecomandata si se prezinta astfel hol living open space cu bucatarie 2 dormitoare baie si o terasa cu acces din living si din dormitor Apartamentul se preda la stadiul de finisat si dispune de finisaje de lux calitative toate electrocasnicele fiind in garantie Optional se poate achizitiona o parcare subterana de 18mp la pretul de 15 000 de euro Aceasta proprietate este potrivita atat pentru locuit cat si pentru investitie avand in vedere cererea masiva de chirie in regim hotelier pentru aceasta zona sau se poate achizitiona cu preluare de chiriasi avand c...
PYF016B9571 Imagineaza-ti locuinta perfecta care sa reflecte personalitatea ta si sa satisfaca toate nevoile tale Echipa noastra dedicata te va ajuta in cautarea locuintei ideale Portofoliul nostru include exact ceea ce iti doresti tu si familia ta Alege PYF REAL ESTATE pentru a transforma visul tau in realitate PYF REAL ESTATE va propune spre vanzare un apartament situat in zona Apusului mai exact pe str Lacul Zanoaga in imediata apropiere a metroului autobuzului zonelor comerciale restaurantelor centrului universitar situat la 15 minute de statia de metrou Pacii intr-un imobil construit in anul 1972 finalizat avand structura de monolit si compartimentari de caramida Imobilul are izolatie exterioara si interioara apartamentul compus din trei camere avand doua dormitoare o baie si o bucatarie este situat la etajul 5/10 si are destinatie rezidentiala Avand o suprafata 60mp dar si o compartimentare semidecomandata apartamentul a fost recent renovat a...
Va prezentam un apartament de 3 camere situat in Titan la numai 10 minute metrou si parc IOR chiar pe strada Postavarul intr-un bloc reabilitat Apartamentul este decomandat partial mobilat si utilat are are gresie faianta parchet termopane usa metalica si geam la baie Vederea este mixta si blocul este amplasat intr-o zona linistita scara curata Va asteptam la vizionare