Apartament cu 3 camere situat pe Calea Vitan chiar langa Auchan Vitan Are o suprafata totala de 72 mp este semidecomandat intr-un bloc construit in anul 1985 anvelopat termic Compartimentarea este ideala pentru o familie 3 camere luminoase 2 bai si un balcon generos cu vedere directa spre Delta Vacaresti Bucataria este mobilata si utilata complet Apartamentul dispune de geamuri termopan aer conditionat Locatia este excelenta aproape de mijloace de transport in comun metrou STB scoli gradinite si centre comerciale inclusiv Mall Vitan Vederea spre Rezervatia Delta Vacaresti ofera un plus de liniste si un cadru natural deosebit Este ideal atat pentru locuinta proprie cat si pentru investitie datorita pozitiei foarte bune Pentru detalii si vizionari va puteti adresa agentului Ovidiu 0763 026 362
⚠ AtenÈ›ie !
Nu plăti niciodată în avans într-un cont bancar până când nu l-ai întâlnit pe vânzător și ați semnat un acord.
Nu furniza informații confidențiale în discuții pe WhatsApp/Telegram sau alte aplicații de mesagerie unde utilizatorii își ascund ușor identitatea, deoarece te poți expune la fraude sau înșelăciuni.
Nu furniza niciodată detaliile cardului tău bancar (număr, data expirării, CVV). Te expune direct la fraude bancare.
Primirea unui mesaj pe WhatsApp/Telegram cu un ID scanat nu înseamnă că ai identificat cumpărătorul. Acest lucru se face pe loc, când semnați un acord de cumpărare.
Când comanzi online, alege livrarea cu verificare. Pentru un cost relativ mic, te protejezi de eventuale neplăceri.
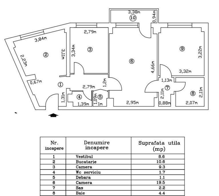
Ramiro Imob va propunem spre vanzare sau inchiriere un apartament cu 3 camere semidecomandat situat la etajul 4 din 4 intr-un bloc construit in 1971 si reabilitat termic recent inclusiv terasa Suprafata utila este de 63 mp iar locuinta se vinde mobilata complet Pentru detalii si vizionari Ovidiu - 0763 026 362 Pret 97 000 euro Pret inchiriere 2 300 lei Comision standard
Ramiro Imob va propunem spre vanzare un apartament cu 2 camere decomandat avand o suprafata de 51 mp situat pe Bulevardul Nicolae Grigorescu intr-un bloc nou izolat termic construit in 2015 Locuinta se afla la etajul 2 din 4 blocul fiind dotat cu lift Apartamentul este mobilat si utilat complet dispune de centrala proprie si ofera confort sporit pentru viitorii proprietari Pret 112 000 euro Agent Ovidiu - 0763 026 362 Comision standard Pentru detalii si vizionari va stam la dispozitie
Agentia imobiliara RamiroImob va propune spre vanzare un apartament decomandat cu 2 camere situat pe bulevardul Alexandru Obregia Blocul se afla in clasa de risc seismic Rs2 deci se preteaza la cumpararea din fonduri proprii Etajul 9/10 Mobilat si utilat parchet si usi noi Pret 63 000 euro Pentru detalii si vizionari contactati Ovidiu - 0763 026 362 Comision standard Pentru detalii si vizionari va asteptam cu drag
Ramiro Imob va propunem spre vanzare un apartament cu 3 camere decomandat situat pe Aleea Ilioara in apropiere de Bulevardul Camil Ressu si Nicolae Grigorescu Imobilul se afla intr-un bloc reabilitat termic construit in 1975 la etajul 8 din 8 avand o suprafata utila de 62 mp Pret 93 000 euro Agent Ovidiu - 0763 026 362 Comision standard Pentru detalii si vizionari nu ezitati sa ne contactati
Ramiro Imob va propunem spre vanzare un apartament cu 2 camere decomandat 53 mp situat la etajul 5 din 10 pe Soseaua Pantelimon in apropiere de Bd Chisinau si Mega Mall Imobilul este construit in anul 1978 si ofera acces facil la mijloace de transport si facilitati din zona piete Mega Mall scoli licee gradinite Nu necesita nici-o investitie mutare rapida Posibilitate de montare centrala proprie teava de gaz si tevile de apa sunt trase in bucatarie ceea ce ofera posibilitatea montarii rapide a unei centrale termice fara alte interventii asupra imobilului Pret 120 000 euro Pentru detalii si vizionari Ovidiu - 0763 026 362 Comision standard
PYF017B10252 Imagineaza-ti locuinta perfecta care sa reflecte personalitatea ta si sa satisfaca toate nevoile tale Echipa noastra dedicata te va ajuta in cautarea locuintei ideale Portofoliul nostru include exact ceea ce iti doresti tu si familia ta Alege PYF REAL ESTATE pentru a transforma visul tau in realitate PYF REAL ESTATE va propune prin agentul zonal Florin M spre vanzare oferim un apartament cu 3 camere avand o compartimentare semidecomandata amplasat in Dristor pe Mihai Bravu intr-un imobil construit in anul 1997 Acest apartament este situat la etajul 10 dintr-un total de 10 etaje oferind accesibilitate si confort Cu o suprafata utila de 75 mp acest apartament reprezinta o oportunitate excelenta de investitie dar nu numai Fiecare detaliu a fost conceput pentru a maximiza confortul avand 2 baie si beneficiind de o bucatarie spatioasa perfecta pentru un stil de viata activ Proprietatea include 1 balcon ideala pentru momente de relaxare Se afla in Bucuresti ...
Apartament de 3 camere cu mansarda - Drumul Binelui Sector 4 Locul unde acasa capata un nou sens Te invitam sa descoperi un camin cald si primitor situat intr-o zona linistita si prietenoasa din Sector 4 - Drumul Binelui in cadrul complexului Family Residence Apartament cu 3 camere decomandate cu o suprafata utila de 64 mp perfect compartimentat pentru confortul unei familii moderne Dar adevarata surpriza se afla deasupra o mansarda generoasa pe toata suprafata camerelor cu acces direct din apartament care adauga aproximativ 50 mp de spatiu suplimentar Aceasta a fost izolata profesional vata bazaltica cu aluminiu folie anticondens OSB - perfecta pentru un birou spatiu de relaxare sau chiar o camera de joaca pentru cei mici Apartamentul este situat la etajul 4 din 4 al unei cladiri construite in 2015 Desi imobilul nu are lift linistea si privelistea de sus merita fiecare pas Confortul termic este asigurat de 2 aparate de aer conditionat iar in sezo...
REF03B2455 Apartament 3 camere de vanzare zona Titan - Liviu Rebreanu Apartamentul este pozitionat langa Lidl Liviu Rebreanu la aproximativ 10 minute de statia de metrou Titan si la 9 minute de Parcul Titanii fiind o zona linistita cu acces fascil catre principalele puncte de interes Apartamentul este situat la etajul 3 intr-un imobil de 8 etaje este decomandat cu o suprafata de 60mp constructie din 1977 bloc reabilitat lift nou In apropiata vecinatate a proprietatii regasim mijloace de transport in comun scoli magazine parcuri farmacii banci etc Va astept la vizionare
Apartament 3 camere Trifoiului Residence amplasat la parterul unui bloc cu 3 etaje compus dintr-un living luminos bucatarie 2 dormitoare spatioase 2 bai si 2 gradini Apartamentul este finisat cu cele mai bune materiale incalzire si racire in pardoseala cu pompa de caldura aer-apa obiecte sanitare Grohe ferestre mari profil Salamander 4 season tripan conceput pentru a reduce consumul de energie si a minimiza pierderile de energie termica ceea ce inseamna ca veti economisi bani la facturile de energie iar costurile de intretinere vor fi mai mici pe termen lung Pompa de caldura poate fi folosita tot timpul anului pentru incalzire apa calda dar si racire si ofera 3-4 kwh de energie termica pentru 1 kwh de energie electrica consumata Asta face pompa de caldura sa fie cu cel putin 300 mai eficienta decat o centrala pe gaz Alte facilitati loc de joaca spatii verzi statie de incarcare auto supraveghere video si bariera Imobilul este amplasat pe str Trifoiului 39 intr-o...
București - 8 Iunie 2025
120.000 €
Atenție
Din motive de securitate și pentru protecția utilizatorilor, această funcționalitate nu este disponibilă pentru locația ta.