Apartament 3 camere 78 mp utili situat in zona centrala - langa Parcul Municipal BLITZ va propune un apartament spatios si modern amplasat intr-o locatie excelenta chiar langa Parcul Municipal Cu o suprafata utila de 78 mp acest apartament situat la etajul 1 al unui imobil nou construit ofera tot confortul de care aveti nevoie pentru un stil de viata urban Apartamentul este compartimentat in 3 camere generoase dintre care 2 dormitoare luminoase perfect adaptate pentru odihna si relaxare Dispunand de 2 bai finisaje moderne si materiale de calitate locuinta se potriveste atat pentru o familie cat si pentru un cuplu care isi doreste spatiu si confort Locatia sa in apropiere de centrul istoric si de Parcul Municipal va ofera acces facil la toate punctele de interes ale orasului fie ca vorbim de recreere sau de facilitati de zi cu zi Pentru mai multe detalii si programarea unei vizionari nu ezitati sa ne contactati Cod oferta / ID BLITZ P133964 Id intern P133964
⚠ AtenÈ›ie !
Nu plăti niciodată în avans într-un cont bancar până când nu l-ai întâlnit pe vânzător și ați semnat un acord.
Nu furniza informații confidențiale în discuții pe WhatsApp/Telegram sau alte aplicații de mesagerie unde utilizatorii își ascund ușor identitatea, deoarece te poți expune la fraude sau înșelăciuni.
Nu furniza niciodată detaliile cardului tău bancar (număr, data expirării, CVV). Te expune direct la fraude bancare.
Primirea unui mesaj pe WhatsApp/Telegram cu un ID scanat nu înseamnă că ai identificat cumpărătorul. Acest lucru se face pe loc, când semnați un acord de cumpărare.
Când comanzi online, alege livrarea cu verificare. Pentru un cost relativ mic, te protejezi de eventuale neplăceri.
Blitz va propune spre vanzare o casa construita in anul 2002 de 75mp situata pe un teren de 1167mp cu deschidere de 23 m la strada asfaltata Casa este nelocuita construita din BCA acoperita cu tigla Elpreco si tabla tip Lindab si este compartimentata astfel terasa deschisa veranda din care se acceseaza 2 dormitoare si bucataria Cu intrare separata se mai acceseaza o camara si o toaleta In curte se mai regaseste o anexa din BCA cu destinatie de depozitare Casa poate fi demolabila sau renovata dupa placul potentialilor cumparatori Este o locatie buna pentru cei care cauta liniste si aer curat proprietatea fiind in vecinatatea padurii a terenului de fotbal si a unui loc de joaca Va asteptam la vizionare Cod oferta / ID BLITZ P151012 Id intern P151012
Blitz propune spre vanzare apartament de 3 camere la casa in curte comuna langa parcul Petofi in apropierea de catedrala romano-catolica scoli licee gradinite restaurante zone verzi etc Imobilul este situat la parter iar podul este mansardabil Apartamentul are o suprafata utila de 56 85 mp compusa din 3 camere un hol o bucatarie si o baie Proprietatea detine o terasa acoperita si un teren de 73 mp Incalzirea in prezent se face prin soba cu serpentine pe lemne insa exista sursa de gaz pe strada si se poate opta si pentru bransament la reteaua de gaz Apa calda prin boiler electric Apartamentul are o priveliste deosebita spre parcul Petofi Cod oferta / ID BLITZ P9236 Id intern P9236
Blitz va propune spre vanzare un apartament cu 3 camere semidecomandat situat la etajul 2 intr-o cladire cu putini vecini intr-o comunitate linistita si bine intretinuta Suprafata utila 85 mp Balcon 5 mp - cu priveliste frumoasa Etaj 2 Panorama superba apartamentul fiind pozitionat intr-o zona aerisita si verde Finisaje si dotari premium Mobilat complet si utilat lux Extrem de bine intretinut - nu necesita nicio renovare Spatiu comun de depozitare disponibil 2 locuri de parcare exterioare chiar langa scara Apartament ideal pentru familii sau persoane care isi doresc confort intimitate si liniste Acces facil la facilitati dar departe de agitatia orasului Cod oferta / ID BLITZ P146711 Id intern P146711
Blitz va propune spre vanzare un apartament de 3 camere situat in Turnisor - Sibiu la etajul 1 intr-o zona linistita dar aproape de toate facilitatile de care ai nevoie Detalii principale o Suprafata utila 74 mp2 o Compartimentare decomandat o Camere dormitor matrimonial cu baie proprie dormitor copii living spatios o Bucatarie complet utilata o Baie hol bucatarie cu incalzire in pardoseala Dotari si confort o Centrala termica in condensare o Electrocasnice premium masina de spalat vase masina de spalat haine uscator cuptor cu microunde cafetiera prajitor de paine o Televizor in fiecare camera in bucatarie o Mobilier modern finisaje de calitate Spatii aditionale o Pivnita boxa o 2 locuri de parcare inchiriate Vedere si pozitionare o Apartamentul se afla in spatele soselei astfel incat traficul si agitatia sunt reduse o Vedere spre loc de joaca - ideal pentru familii Cod oferta / ID BLITZ P152895 Id intern P152895
Blitz va prezinta un apartament de 2 camere decomandat 54mp etaj 4 cu acoperis in zona Catedralei de pe bulevardul Republicii Apartamentul necesita renovare completa Caracteristici si compartimentare -2 camere -1 bucatarie -1 baie -debara -1 hol -1 balcon -camara Apartamentul are dubla orientare sud-est / nord-vest Se afla intr-o zona cu multe facilitati statie de autobus zona cu supermarket la 10 minute de mers pe jos Pentru mai multe detalii nu ezitati sa ne contactati Cod oferta / ID BLITZ P151128 Id intern P151128
APARTAMENT 3 CAMERE PARTER ZONA LICEUL DE INFORMATICA 37 000 EURO Oferim spre achizitionare un apartament compus din 3 camere situat la parter in zona Liceului de Informatica Imobilul este luminos si calduros avand orientare cardinala EST si termosistem integral exterior Are suprafata utila totala de 40 mp Este renovat integral fiind prevazut cu usa antiefractie la intrare termopan gresie faianta parchet usi interioare - totul nou Are schimbate instalatiile electrica sanitara termica Beneficiaza de o amplasare avantajoasa avand in imediata proximitate mai multe centre comerciale institutii de invatamant entitati medicale si alte obiective de interes Pret 37 000 euro Pentru o prezentare detaliata a acestei oferte furnizarea unor informatii suplimentare referitoare la situatia juridica / identificarea imobilului si programarea unei vizionari va invitam la sediul nostru Fortuna Imobiliare situat pe str M Eminescu nr 35 ap 13 parter lang...
Apartament 3 camere suprafata totala 88 mp complet finisat situat la 3 minute de statia de metrou Pacii Ansamblul Rezidential Maniu 141 este localizat intr-o zona fara concurenta a cartierului Militari in partea de vest a capitalei unde ai totul la indemana nu trebuie sa iti mai faci griji pentru mijloacele de transport in comun ai statii de metrou si autobuz chiar in fata rezidentei ai toate utilitatile asigurate apa gaz canalizare electricitate cablu TV si fibra optica Faza 4 este formata din blocul 5 cuprinzand un numar de 88 de unitati locative precum si spatii comerciale la parterul blocului Regim de inaltime S P 11 Compartimentare de caramida Finisaje - apartamentele garsonierele se vand finisate cu gresie parchet faianta usi interior - exterior tamplarie obiecte sanitare Incalzire prin Centrala de bloc Pretul nu contine TVA Modalitati de plata acceptate fonduri proprii si credit de orice tip
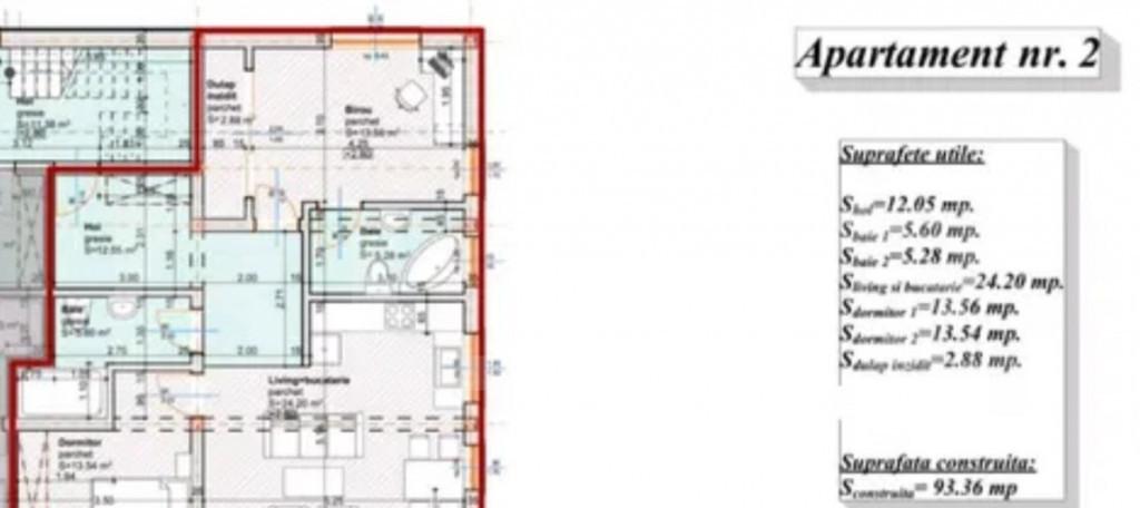
PRIMUM IMOBILIARE are placerea de a va oferi spre vanzare un apartament cu 3 camere situat la etajul 3 intr-un bloc nou de forma P 3E Apartamentul va fi finalizat in anul 2025 Apartamentul dispunde 62 1 mp utili 8 5 mp balcon si prezinta posibilitatea de alegere a finsiajelor Compartimentare - living - bucatarie - 2 dormitoare - baie - hol de acces Confortul termic se realizeaza prin centrala proprie cu incalzire in pardoseala In pretul de vanzare este inclus si un loc de parcare privat inscris in CF Se accepta credit Mai multe detalii telefonic
langa Bcr Aleea Sinaia 3 statii stb metrou Obor etaj 9/10 cf 1 dec 64mp bloc 1976 reabilitat termic pe mijloc baie cu fereastra pe mijloc imb termopan cadastru intabulare
Apartament 3 camere 79 m2 finisaje moderne amplasta in Complex rezidential La Cittadella Garden Chiajna Apartamentele sunt inteligent proiectate si au suprafetele de la 39 14 mp si pana la 123 51 mp Unitatile locative dispun de balcoane cu balustrade din sticla securizata unele apartamente beneficiaza de terase spatioase iar altele facilita de gradini private spatioase Toate locuintele se predau in folosinta complet finisate cu finisaje moderne si au toti peretii interiori tencuiti gletuiti si in culoarea alba vopsiti tavanele sunt finisate si toate pardoselile din dormitoare si living-uri sunt placate cu parchet laminat Toate camerele de baie sunt finisate cu placi ceramice si sunt echipate cu obiecte sanitare de calitate Fiecare apartament se incalzeste individual si la bucatarii sunt instalate centrale termice proprii Vilele si blocurile locative sunt racordate la sistemele de alimentare cu apa gaz curent electric si la sistemul de canalizare si fiecare unitate loc...
Ilfov - 9 Aprilie 2025
76.600 €
Atenție
Din motive de securitate și pentru protecția utilizatorilor, această funcționalitate nu este disponibilă pentru locația ta.