Apartament modern in constructie - zona estica ideala pentru familii si investitii Blitz va propune spre vanzare un apartament spatios situat intr-un proiect nou autorizat cu lucrarile de constructie deja demarate Localizarea in zona de est ofera acces rapid la scoli piete parcuri zone verzi si centre comerciale - un mediu perfect pentru confortul zilnic si o investitie sigura Caracteristici generale Suprafata utila 76 22 mp Balcon/Terasa 12 38 mp Compartimentare moderna gandita pentru functionalitate si confort Dotari si finisaje Incalzire in pardoseala Centrala termica proprie pentru intregul imobil Tamplarie PVC cu 3 foi de sticla Izolatie exterioara performanta Toate acestea contribuie la un consum energetic redus un climat interior placut in orice anotimp si costuri de intretinere scazute Parcare Loc de parcare subteran disponibil 18 000 EUR TVA Optiuni flexibile de plata Avans 90 200 550Euro Avans 50 30 la predare 20 la CF 204 365 Euro Avans 50 credit 208 175 Euro Avans 40 credit 219 606 Euro Proiectul ofera solutii flexibile de achizitie adaptate tuturor tipurilor de clienti - atat end-user cat si investitori Pentru a programa o vizionare nu ezitati sa ne contactati cu drag echipa Blitz Cod oferta / ID BLITZ P160092 Id intern P160092
⚠ AtenÈ›ie !
Nu plăti niciodată în avans până când nu l-ai întâlnit pe vânzător și ați semnat un acord.
Nu furniza informații confidențiale în discuții pe alte aplicații de mesagerie unde utilizatorii își ascund ușor identitatea.
Nu furniza niciodată detaliile contului sau cardului tău bancar.
Când comanzi online, alege livrarea cu verificare. Pentru un cost relativ mic, te protejezi de eventuale neplăceri.
Blitz va ofera un apartament cu 2 camere de inchiriat situat in complexul Moon Reflexes Residence Detalii locuinta - Apartament cu 2 camere bloc nou - Prima inchiriere - Mobilat si utilat complet -- totul nou - Dotari premium - Baie cu cada - Bucatarie complet echipata - Logie si hol spatios - Incalzire prin pardoseala cu termostate in fiecare camera - Aer conditionat Siguranta facilitati - Acces securizat in complex cu bariera - Video interfon la intrarea in bloc - Loc de parcare inclus in pret Localizare - Moon Reflexes Residence - Acces rapid catre Palas UMF si zona centrala - Statie de transport public chiar in fata blocului Chirie conditii - Contract minim 1 an - Contract inregistrat la ANAF - Nu se accepta animale de companie Disponibil imediat Cod oferta / ID BLITZ P160329 Id intern P160329
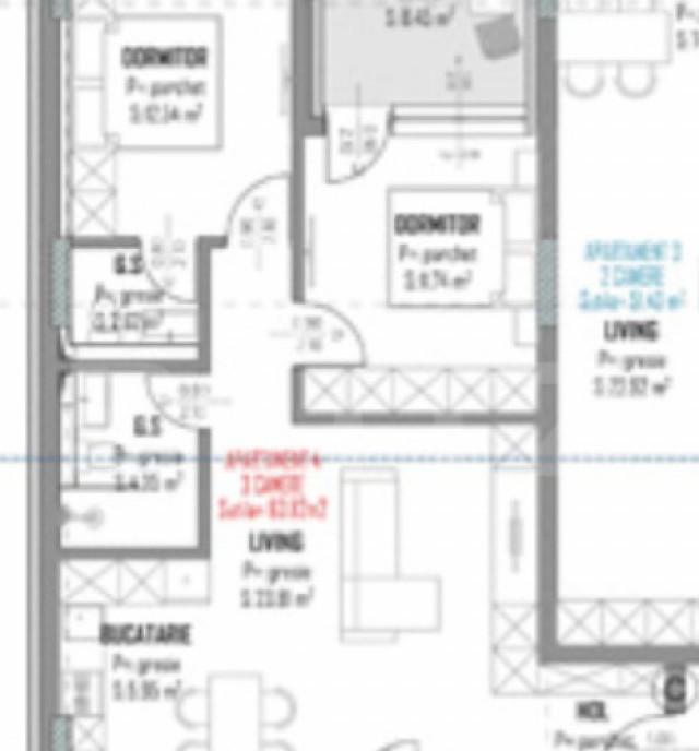
Blitz ofera spre inchiriere un apartament spatios cu 3 camere living situat in zona Dacia rond tramvai Iasi Apartamentul se afla la prima inchiriere dupa renovare este amplasat la etajul 1 din 4 si ofera o compartimentare generoasa ideala pentru o familie sau persoane care isi doresc spatiu si confort Compartimentare si dotari 3 camere living 2 bai dressing balcon complet echipat centrala termica cuptor plita frigider masina de spalat rufe apartament renovat finisaje moderne Localizare zona Capat Dacia - rond tramvai acces facil la mijloace de transport magazine si servicii Conditii de inchiriere contract minim 1 an nu se accepta animale de companie plata 1 luna chirie 1 luna garantie Pentru mai multe detalii sau programarea unei vizionari va rugam sa ne contactati Cod oferta / ID BLITZ P163096 Id intern P163096
Blitz va propune o resedinta cu suflet si tehnologie Intr-un sat plin de tihna dar la doar 19 km de Shopping City si 22 km de zona Balcescu te asteapta un camin rar - o locuinta de 255 mp utili pe un teren de 798 mp care imbina luxul discret cu eficienta perfect controlata INTERIOR Parter living generos cu semineu dining si bucatarie open-space dotata complet dormitor baie cu dus Etaj 3 dormitoare baie cu cada si dus terasa cu vedere deschisa de 30 mp Baie exterioara 2 5 mp si camera tehnica 7 mp - complet utilate si racordate la canalizare NU fosa septica Anexa neintabulata cu doua tarcuri spatioase de cate 2 mp fiecare DOTARI PREMIUM Climatizare performanta 24 000 BTU Incalzire in pardoseala centrala pe gaz Butelie propan 3 000L curent trifazic Iluminat LED WiFi cu consum minim controlabil de pe telefon Jaluzele si site la toate geamurile 7 televizoare in intreaga casa TV living 2 47m dormitor matrimonial 1 89m dormitor jo...
BLITZ ofera spre vanzare un apartament cu 2 camere in Complexul privat Estimo situat in Apahida Bloc nou modern aflat intr-o zona atractiva si in plina dezvoltare Complexul Estimo beneficiaza de acces facil catre principalele puncte de interes transport magazine si alte facilitati urbane Apartamentul are o suprafata utila de 42 5mp situat la etajul 3 si beneficiaza de o compartimentare eficienta fiind ideal atat pentru locuinta propie cat si pentru investitie Cod oferta / ID BLITZ P160597 Id intern P160597
BLITZ va prezinta pentru inchiriere un apartament modern cu 2 camere situat in zona Coresi una dintre cele mai cautate si bine conectate zone din Brasov Apartamentul are o suprafata generoasa de 92 mp si este amplasat la etajul 3 din 10 al unui imobil modern cu lift Compartimentarea este eficienta si gandita pentru confort fiind ideala pentru un cuplu Locuinta dispune de un living spatios dormitor matrimonial cu baie proprie si dressing o a doua baie precum si doua balcoane unul inchis si unul deschis ambele oferind vizibilitate directa catre locul de parcare privat inclus un real avantaj pentru siguranta si comoditate Apartamentul beneficiaza de lumina naturala din plin finisaje moderne si spatii bine proportionate Statiile de autobuz se afla in imediata apropiere asigurand acces rapid catre toate zonele orasului iar zona Coresi ofera numeroase facilitati precum magazine restaurante zone verzi si spatii de relaxare O proprietate ideala pentru cei care...
Ramiro Imob va propune spre vanzare un apartament cu 3 camere decomandat Situat la etajul 10 din 10 cu etaj tehnic deasupra intr-un bloc reabilitat termic Imobilul este situat intr-o zona bine conectata si accesibila Decomandat Reabilitat termic Suprafata 72 mp Acte pregatite pentru vanzare Pret 78 500 Euro -Pentru mai multe detalii vizionari si cele mai bune oferte contactati-ma Moreanu Alexandru - 0762829209 Comision standard Oferim suport complet in relatia cu banca cu acces la cele mai bune oferte de finantare precum si asistenta notariala la cele mai bune preturi
Blitz propune spre vanzare un apartament spatios aflat intr-o casa cu curte comuna situat in zona semicentrala aproape de Scala Center cu acces facil spre toate punctele importante ale orasului Proprietatea are acces separat si este organizata pe doua niveluri Parter 76 mp utili living generos bucatarie birou cu acces si din strada baie dressing si spatiu de depozitare in subpanta 15 mp Etaj pod amenajat un dormitor si baie proprie cu cada si un pod neamenajat de aproximativ 45 mp cu posibilitate de extindere Un element deosebit este tavanul inalt de 3 metri care ofera o atmosfera luminoasa aerisita si un plus de confort in toate camerele Casa dispune si de un subsol amenajat de 12 mp si o terasa exterioara pavata de 26 mp in folosinta exclusiva - ideala pentru relaxare sau luat masa afara Dotari si finisaje Incalzire in pardoseala Centrala termica proprie noua 2023 Tamplarie PVC cu geam tripan Pardoseala din gresie Se vi...
APOSTU ESTATE va ofera spre vanzare un apartament cu 3 camere si 2 bai situat la etajul 3 din 4 al unui bloc in zona Aradului Zona este linistita apartamentul aflandu-se la un doar cateva minute fata de parc scoala market sau statia de autobuz Apartamentul are o suprafata utila de 66 mp fiind compartimentat astfel - hol acces - bucatarie - doua dormitoare - baie prevazuta cu geam pentru aerisire -baie de serviciu -doua balcoane Confortul termic este realizat prin intermediul termoficarii insa exista posibilitatea montarii centralei proprii Beneficiaza de gresie faianta parchet tamplarie PVC geamuri termopan si usa exterioara metalica Oferim consultanta bancara prin colaboratorii nostri pentru alegerea celui mai potrivit credit Va asteptam cu drag la o vizionare chiar astazi ID intern CP2315705
Va propunem spre vanzare un apartament cu 3 camere avand o suprafata utila de 66 mp situat la parterul unui bloc de 10 etaje in apropierea statiei de metrou Titan si a parcului IOR Locuinta a fost renovata recent oferind un interior modern luminos si pregatit pentru mutare imediata Compartimentarea este practica cu camere spatioase si bine luminate natural Baia dispune de geam asigurand o ventilatie excelenta si confort sporit Imobilul este amplasat intr-o zona linistita cu acces rapid la transportul public magazine scoli gradinite si multiple spatii verzi fiind ideal pentru o familie sau pentru cei care cauta un apartament confortabil intr-o zona excelenta a cartierului Titan Comision Standard Pentru mai multe detalii vizionari sau oferte similare contactati-ma Adrian 0770 965 679
VG Real Estate va propune spre vanzare un apartament situat in zona X ideal in scop rezidential Informatii generale o Tipul apartamentului 3 camere tip open-space o Suprafata o Utila 68 07 m2 o Construita 77 m2 o Etajul P/3 o Anul constructiei 2020 o Tipul cladirii bloc nou Detalii specifice o Compartimentare bucatarie open space 2 dormitoare 2 bai holuri o Dotari si finisaje parchet gresie faianta tamplarie PVC aer conditionat centrala termica o Se preda mobilat o Electrocasnicele sunt incluse o Utilitati apa gaz curent electric canalizare internet/cablu TV incalzire centrala Avantaje si proximitati o Locuri de parcare loc propriu / parcare comuna / disponibilitate la cerere o Zona si facilitati magazine scoli gradinite statii de transport public centre comerciale parcuri etc o Accesibilitate acces facil la bulevard centru orasului autostrazi Pret si contact o Pretul ...
Constanţa - 27 Noiembrie 2025
135.000 €
Atenție
Din motive de securitate și pentru protecția utilizatorilor, această funcționalitate nu este disponibilă pentru locația ta.