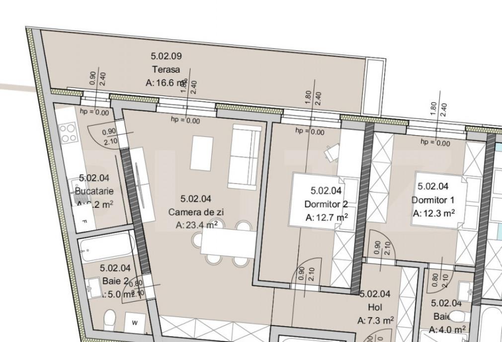
Blitz ofera spre vanzare un apartament de 3 camere cu 2 bai si Terasa de 17 mp in Zona The Office intr-un imobil in constructie cu termen de finalizare in ultima parte a anului 2027 Un nou inceput prinde contur in inima orasului tau Proiect imobiliar modern care imbina armonios locuintele spatioase cu functiuni comerciale utile pentru comunitate 49 de apartamente cu 2 3 si 4 camere cu suprafete intre 52 si 104 mp la care se adauga balcoane si terase generoase - intre 6 1 mp si 68 mp Spatii comerciale la parter cu suprafata de 78mp si 430mp cu acces direct si parcari dedicate 2 nivele subterane de parcari accesibile prin rampa auto La etajul 1 birouri cu suprafata intre 67mp si 179mp Confortul tau conteaza - fiecare apartament va fi dotat cu Incalzire in pardoseala Imobilul va fi racordat la reteaua de termoficare a orasului Tamplarie PVC cu 3 foi de sticla Izolatie exterioara performanta Totul pentru un consum energetic optim un climat interior placut in orice anotimp si costuri reduse Pretul afisat este pentru un avans de 90 Se accepta plata si prin credit bancar Exista posibilitatea achizitiei unui loc de parcare in subteran la 20000 Euro TVA Preturile afisate nu contin TVA Cod oferta / ID BLITZ P156923 Id intern P156923
⚠ AtenÈ›ie !
Nu plăti niciodată în avans într-un cont bancar până când nu l-ai întâlnit pe vânzător și ați semnat un acord.
Nu furniza informații confidențiale în discuții pe WhatsApp/Telegram sau alte aplicații de mesagerie unde utilizatorii își ascund ușor identitatea, deoarece te poți expune la fraude sau înșelăciuni.
Nu furniza niciodată detaliile cardului tău bancar (număr, data expirării, CVV). Te expune direct la fraude bancare.
Primirea unui mesaj pe WhatsApp/Telegram cu un ID scanat nu înseamnă că ai identificat cumpărătorul. Acest lucru se face pe loc, când semnați un acord de cumpărare.
Când comanzi online, alege livrarea cu verificare. Pentru un cost relativ mic, te protejezi de eventuale neplăceri.
Blitz va propune o proprietate situata pe o strada linistita din zona Modern ideala pentru cei care isi doresc o locuinta cu curte individuala bine conectata cu zona centrala a orasului Terenul are 413 mp iar pe acesta se afla casa principala o anexa cu doua niveluri si o magazie pentru depozitare Casa principala este o constructie solida din caramida ridicata in anii 70 cu pivnita si doua intrari Compartimentarea este functionala si cuprinde -3 camere -bucatarie cu camara -2 grupuri sanitare -hol generos -acces dintr-o terasa acoperita Inaltimea camerelor este de 2 75 m ferestrele sunt partial inlocuite cu termopan iar usile interioare sunt din lemn Incalzirea se realizeaza prin centrala pe gaz si calorifere In curte se afla o anexa P E compartimentata in doua apartamente ideala pentru extinderea spatiului de locuit pentru generatii diferite sau pentru inchiriere In partea din spate a curtii este amplasata o magazie utila pentru depozitare...
Blitz ofera spre inchiriere un apartament modern cu 2 camere semidecomandat situat la etajul 4 al unui bloc nou din zona Teilor Floresti Zona este linistita cu acces facil catre mijloacele de transport in comun supermarketuri gradinite si farmacii - ideala pentru cupluri sau persoane active care doresc confort si proximitate fata de oras Apartamentul are o suprafata generoasa de 60 mp si este compartimentat astfel hol cu living bucatarie inchisa un dormitor spatios si o baie modern amenajata Se inchiriaza complet mobilat si utilat cu electrocasnice moderne Dispune de incalzire in pardoseala ferestre mari ce ofera lumina naturala din abundenta si un loc de parcare exterior inclus in pret Un apartament modern si primitor perfect pentru un stil de viata confortabil in Floresti Va asteptam la vizionare Disponibil imediat Cod oferta / ID BLITZ P159096 Id intern P159096
Blitz ofera spre inchiriere un apartament care imbina perfect eleganta contemporana cu senzatia de confort autentic Spatiul deschis al bucatariei si livingului impresioneaza prin designul sofisticat unde tonurile calde ale lemnului se armonizeaza cu nuantele mate de gri si accentele negre ale corpurilor de iluminat Mobilierul minimalist si finisajele premium confera un aer rafinat iar lumina naturala care patrunde prin ferestrele generoase creeaza o atmosfera primitoare Bucataria este complet utilata ce devine centrul perfect pentru relaxare sau momente petrecute cu cei dragi Detaliile atent alese plantele naturale si textura placuta a materialelor transforma acest spatiu intr-un camin cu adevarat special locul ideal pentru cei care apreciaza confortul stilul si linistea de acasa Disponibil imediat Cod oferta / ID BLITZ P156838 Id intern P156838
Blitz va prezinta un apartament modern cu 3 camere situat in cartierul Nufarul la etajul 9 cu o suprafata generoasa de 65 mp ideal pentru gazduirea echipelor de muncitori capacitate pana la 7 persoane Apartamentul este complet mobilat si utilat configurat astfel incat sa ofere spatiu suficient si conditii bune pentru muncitori Camerele sunt bine compartimentate cu locuri de dormit organizate eficient Dispune de -bucatarie open space utilata complet -baie cu vana -3 camere amenajate pentru cazarea mai multor persoane -loc de parcare -apartament modern ingrijit si pregatit pentru ocupare imediata Pozitionat in Nufarul apartamentul are acces rapid la statii de transport magazine Lotus si puncte de interes fiind o varianta excelenta pentru firme sau echipe de muncitori care cauta cazare functionala si accesibila Cod oferta / ID BLITZ P158041 Id intern P158041
Apartament nou spatios cu 2 camere in Giroc Descopera un apartament modern cu design rafinat si finisaje premium situat intr-o zona excelenta Ideal pentru cei care cauta confort spatiu si intimitate Compartimentare Hol de acces generos Living luminos cu canapea si zona de luat masa avand doua iesiri pe terasa imensa Dormitor spatios complet mobilat si utilat cu dressing Bucatarie open-space complet mobilata si utilata Baie mare cu cada si geam Terasa acoperita de 17 mp fara blocuri in fata si cu o priveliste spectaculoasa la apus Mobilierul este facut la comanda oferind spatii generoase de depozitare Confortul termic este asigurat de centrala proprie si incalzire in pardoseala Parcare proprie supravegheata video intrare securizata in casa scarii Super pozitionare La doar 2 minute de mers pe jos de Penny Profi NonStop Lidl Mega Image si sala de sport Reguli Nu se accepta animale de companie si fumatul in incinta imobilu...
Descopera confortul unui apartament spatios modern si primitor situat pe Strada Emanoil Buteica chiar langa Kaufland la cateva minute de metrou int r-o zona linistita si bine conectata din Sector 3 Bucuresti Caracteristici principale o Suprafata utila 65 suprafata totala 69 mp o Compartimentare decomandata si eficienta 3 camere generoase 2 bai ideal pentru familii o Etajul 1 din 10 o Complet mobilat si utilat - tot ce trebuie sa faci e sa te muti o Bucatarie inchisa echipata modern o Finisaje de calitate parchet gresie faianta geamuri termopan o Instalatie electrica schimbata instalatie sanitara schimbata o Clasa energetica A o Balcon inchis o Bloc reabiltat termic Avantaje suplimentare o Zona verde linistita ideala pentru familii o Acces rapid catre mijloace de transport scoli magazine si parcuri o Imobil curat vecini civilizati Disponibil imediat Apartamentul este ideal atat pentru locuit Pret avantajos 149 000 Euro Program...
TIMPURI NOI - 3 camere - 10 min Metrou Apartamentul de 3 camere se afla la etajul 5 intr-un imobil nou construit in imediata apropiere de statiei de metrou Timpuri Noi Este impartit astfel 96 de metri patrati utili plus o logie de 4 metri patrati Fiind amplasat la etajul 5 apartamentul beneficieaza de liniste si intimitate Pozitia este excelenta fiind pozitionat la 10 minute de mers pe jos fata de statia de metrou Timpuri Noi In apropiere se afla centrul comercial Mall Vitan precum si magazine scoli gradinite si restaurante Apartamentul are dotari si finisaje de lux - Tamplarie salamander cu 3 geamuri si profil de 92 mm - Parchet laminat - Gresie si faianta moderna - Prize si intrerupratoare Legrand - Centrala termica - Incalzire in pardoseala - Usi interioare celulare - Usa intrare metalica Blocul are parcare subterana si adapost ALA Parcarea subterana se poate achizitiona separat PRETURILE NU INCLUD TVA Reper Timpuri Noi - Metrou Timpuri Noi Serviciul nou oferit de...
Apartament 3 camere de vanzare decomandat 89 mp zona Rahovei Sibiu TABOO Imobiliare propune un apartament de vanzare cu 3 camere decomandat situat in localitatea Sibiu zona Rahovei aflat la nbsp mansarda unui imobil tip bloc cu regim de inaltime pe Parter 4 Etaje Mansarda anul constructiei 2005 structura caramida Suprafata utila de 89 mp balcon de 6 mp Apartamentul este structurat astfel Primul nivel bull Hol bull Living cu bucatarie de tip open-space si balcon bull Baie de serviciu Al 2-lea nivel bull Hol intermediar bull Baie bull 2 dormitoare Finisajele interioare sunt nbsp clasice bull Usa intrare metal bull Usi interioare celulare nbsp nbsp nbsp nbsp nbsp nbsp nbsp nbsp nbsp nbsp nbsp nbsp bull Tamplarie ferestre pvc termopan nbsp nbsp bull Pereti vopsea lavabila faianta bull Podele parchet gresie Utilitati si dotari bull Bucatarie mobilata utilata nb...
REA1021271 SVN Residentialist va propune spre vanzare un apartament deosebit de 3 camere decomandat 68mp utili aflat la etajul 7al unui bloc de 9 etaje In apropiere se regasesc o multitudine de centre comerciale si puncte de interes printre care mentionam scoli gradinite farmacii magazine Totodata apartamentul este situat la o distanta de 5 minute de mers pe jos de statia de metrou Gorjului iar statia STB se afla la 2 minute Apartamentul se vinde mobilat si utilat complet asa cum se poate observa din poze vederea este in spatele blocului pentru dormitoare si bucatarie iar livingul si balconul sunt cu vedere spre bulevardul Iuliu Maniu Imobilul a fost renovat complet are schimbata instalatia electrica si sanitara Certificatul Energetic va fi pus la dispozitie in momentul vanzarii Pentru mai multe informatii nu ezitati sa ne contactati Echipa SVN Residentialist este aici pentru a va facilita achizitionarea apartamentului mult visat Vizionarea...
Apartament 3 camere de vanzare decomandat 82 mp zona Rahovei Sibiu nbsp nbsp Avantaje majore ale acestui apartament nbsp bull Un loc de parcare inclus in pret bull Pretabil investitie sigura bull Parcare extra pentru vizitatori bull Locatie ferita de aglomeratie TABOO Imobiliare propune un apartament de vanzare cu 3 camere decomandat situat in localitatea Sibiu zona Rahovei aflat la etajul 2 intr -un imobil tip bloc cu regim de inaltime Demisol Parter 4 Etaje anul constructiei 2010 structura caramida Suprafata utila de 82 mp doua balcoane cu suprafata totala de 11 mp nbsp nbsp Apartamentul este structurat astfel bull Hol bull Bucatarie bull Baie bull Living cu balcon bull Dormitor matrimonial cu balcon bull Dormitor copii bull Hol intermediar bull Dressing Finisajele interioare sunt clasice bull Usa intrare metal bull Usi interioare celulare nbsp nbsp bull Tamplarie ferestre pvc ter...
Sibiu - 1 Noiembrie 2025
142.000 €
Atenție
Din motive de securitate și pentru protecția utilizatorilor, această funcționalitate nu este disponibilă pentru locația ta.