Va prezentam un apartament cu 3 camere 2 bai si 1 balcon situat la etajul 7 la cateva minute de mers pe jos pana la Statia de Metrou Aparatorii Patriei Bine compartimentat cu vedere deosebita de la toate ferestrele si din balcon Apartamentul a fost renovat instalatiile sanitare si termice Blocul a fost reabilitat recent au fost reabilitate si subsolul -acoperisul -scara blocului si schimbate lifturile Blocul are scara de bloc curata vecini linistiti civilizati Acces rapid la Metrou Aparatorii Patriei Patinuarul Berceni Arena Universitatea Spiru Haret Parcul Vacaresti Soseaua Oltenitei Mall Sun Plaza Detalii apartament o Suprafata 68 mp o Camere 3 camere o Etaj 7/8 bloc solid din beton construit 1984 Vecinatati o Parcuri si zone verzi pentru relaxare in apropiere o Acces rapid la centre comerciale Nu ratati ocazia de a locui intr-o zona centrala cu toate facilitatile la indemana Pentru mai multe detalii Agentia Imobiliara - Ramiro Imob - 0770280100 - Cornel Ion Comision Standard Nu asteptati sa cumparati acest apartament Cumparati apartamentul si asteptati
⚠ AtenÈ›ie !
Nu plăti niciodată în avans într-un cont bancar până când nu l-ai întâlnit pe vânzător și ați semnat un acord.
Nu furniza informații confidențiale în discuții pe WhatsApp/Telegram sau alte aplicații de mesagerie unde utilizatorii își ascund ușor identitatea, deoarece te poți expune la fraude sau înșelăciuni.
Nu furniza niciodată detaliile cardului tău bancar (număr, data expirării, CVV). Te expune direct la fraude bancare.
Primirea unui mesaj pe WhatsApp/Telegram cu un ID scanat nu înseamnă că ai identificat cumpărătorul. Acest lucru se face pe loc, când semnați un acord de cumpărare.
Când comanzi online, alege livrarea cu verificare. Pentru un cost relativ mic, te protejezi de eventuale neplăceri.
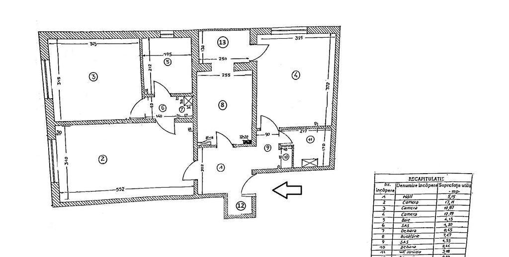
Va oferim spre vanzare un apartamet cu 3 camere decomandat cu o suprafata totala de aproximativ 65 mp Blocul este situat in Popesti -Leordeni pe strada Amurgului la 700 metri de statia de metrou Dimitrie Leonida aproximativ 8-10 minute de mers pe jos Apartamentul dispune de urmatoarele caracteristici - bloc finalizat in 2015 P 2 cu pod si acoperis tabla - suprafata apartament 65 mp decomandat - arhitectura cu inaltime tavan 2 9 m oferind volum interior generos - 3 camere 2 balcoane - parcare inclusa cota indiviza Avantaje zona - campus scolar nou in imediata apropiere - acces facil la Mall La Strada Penny Mega Image - pozitionare excelenta intr-o zona superba Sali de fitness saloane pizzerii si restaurante la doar cativa pasi distanta - iesire rapida cu auto la Soseaua Berceni Bd Metalurgiei Nu ratati ocazia de a cumpara acest apartament spatios situat intr-o zona centrala cu toate facilitatile la indemana Pentru mai multe ...
Va prezentam o casa deosebita spatioasa si frumos compartimentata curte 40mp situata pe o strada in spate la Bd Dimitrie Cantemir 5 minute de mers pana la Statia de metrou Tineretului Zona deosebit de frumoasa zona selecta zona istorica una dintre cele mai frumoase zone din Bucuresti Accesul se poate face pe jos din Bd Cantemir sau cu masina din Bd Dimitrie Cantemir sau din Bd Gheorghe Sincai Intrarea in Parcul Tineretului sau in Parcul Carol la 10 minute de mers pe jos In apropiere U- Center Tineretului Colegiul Sincai Statia de Metrou Tineretului Piata Unirii Centrul Vechi Timpuri Noi Casa a fost renovata in 2015 la interior arata foarte bine Casa poate fi folosita si in scop comercial - spatiu de birouri sediu de firma spatiu servicii Nu ratati ocazia de a cumpara acesta casa intr-o zona deosebita cu toate facilitatile la indemana Pentru mai multe detalii Agentia Imobiliara - Ramiro Imob - 0770 280 100 - Cornel Ion Comisio...
Va prezentam un apartament deosebit finisat modern mobilat si utilat gata pentru locuit Decomandat cu 50mp utili este situat la Parter inalt Are balcon spatios inchis cu acces in apartament din parcare prin usa balcon Blocul cu 4 etaje este relativ nou - an 2019 Situat in Popesti Leordeni pe Soseaua Oltenitei zona frumoasa si linistita Primaria Popesti este la 2 statii de Stb departare In fata balconului proprietarul detine 3 locuri de parcare Unul pe la mijlocul parcarii si 2 la marginea cu gradina blocului Pentru ca sunt pe lung si avea nevoie de acces cimentat pentru auto acum beneficiaza la iesirea din apartament de o adevarata curte proprie cu loc de petrecut timpul in aer liber Are si o rulota in stare buna parcata In pretul afisat este inclus 1 loc de parcare Cele 2 locuri de parcare de langa gradina si rulota se negociaza separat Apartamentul impresioneaza prin amenajare si compartimentare si nu in ultimul rand prin accesul l...
Apartament cu 2 camere decomandat cu o suprafata de 51 mp situat la etajul 2/4 intr-un bloc nou cu lift Blocul este situat pe Drumul Jilavei - sector 4 in cartier nou de blocuri zona linistita in apropiere de intersectia cu Bd Metalurgiei la 10 minute de mers de Statia de metrou Dimitrie Leonida Se vinde mobilat si utilat gata pentru viitorul cumparator sa se mute rapid Detalii partament - 51 mp - Etaj 2 / 4 - Lift - Decomandat - 2 balcoane - Mobilat si utilat - Aer conditionat - Centrala termica - Bloc nou - Loc de parcare disponibil pentru inchiriere 150-180 lei Nu ratati ocazia de a cumpara acest apartament spatios situat intr-o zona centrala cu toate facilitatile la indemana Pentru mai multe detalii Agentia Imobiliara - Ramiro Imob - 0770 280 100 - Cornel Ion Comision Standard
Va propunem spre vanzare un apartament renovat de 3 camere 72 mp la doar 10 minute de mers pe jos de metrou Aparatorii Patriei Situat la etajul 4/4 acest apartament este luminos si are o compartimentare ideala Este potrivit atat pentru locuit cat si pentru investitie chiriile in zona metroului sunt mari Renovari recente o instalatii sanitare noi o parchet si gresie schimbate o pereti si tavane refacute o balcon inchis Baia este nefinisata -- un plus pentru cine vrea sa-si aleaga singur finisajele Locatie excelenta langa de statia de metrou Aparatorii Patriei aproape de STB magazine Mega scoli gradinite parcuri si toate facilitatile zonei Nu ratati ocazia de a cumpara acest apartament spatios situat intr-o zona centrala cu toate facilitatile la indemana Pentru mai multe detalii Agentia Imobiliara - Ramiro Imob - 0770 280 100 - Cornel Ion Comision Standard
Koncept Imobiliare va propune spre vanzare un apartament cu 3 camere in cartierul Buna Ziua zona Home Garden Situat la mansarda unui bloc cu regim de inaltime S P 2 M Apartamentul in suprafata utila de 62 mp este compartimentat in living de tip open-space cu bucatarie si loc de luat masa 2 dormitoare foarte spatioase si baie Acesta se vinde complet mobilat/utilat cu posibilitate de preluare chiriasi Imobilul este situat pe o strada asfaltata retras de la drumul principal dar in apropriere de magazine si statie de autobuz Se accepta doar plata cash acesta figurand ca spatiu tehnic in acte Pentru detalii complete pentru programarea unei vizionari sau pentru a afla oferta noastra completa nu ezitati sa ne contactati telefonic prin email sau la sediul agentiei noastre pe str Aviator Badescu nr 19 Cluj-Napoca Id intern P17811
Ramiro Imob va propune spre vanzare un apartamentde 3 camere decomandat cu o suprafata utila de 67mp situat la etajul 3 din 8 intr-un bloc reabilitat termic aflat pe Soseaua Giurgiului-Drumul Gazarului Apartamentul este luminos bine compartimentat si beneficiaza de loc de parcare de la primarie Pentru mai multe vizionari detalii sau oferte similare ma puteti contacta 0731631324 Elena Comision standard
Va propunem spre vanzare un apartament cu 3 camere in zona Canta - Scoala Elena Cuza Iasi Are suprafata totala de 70 mp si este situat la etajul 1 dintr-un bloc cu 4 etaje din anul 1980 Are 2 dormitoare living bucatarie hol balcon 2 bai cea mica a fost desfiintata si este folosita ca o debara in prezent se poate repune in functiune pentru cine doreste instalatiile si tevile exista fiind doar puse dopuri Imobilul dispune de - spatiu pentru depozitarea de diferite lucruri inchis cu usa metalica la parter - centrala proprie - AC - 2 TV - uri - cuptor si aragaz incorporabile - masina de spalat vase Pentru mai multe detalii si vizionari va rog sa sunati la 0757-135-189 sau email 160 protected Id intern P7415
R E A Imobiliare Apartament 3 camere cu spatii vitrate si finisaje la alegere in colaborare cu Delta Studio la etajul 4/4 in zona Doamna Ghica Termen de finalizare 20 Decembrie 2025 Locuintele din acest bloc se vand rapid Au mai ramas doar 4 apartamente disponibile din 12 Suprafata totala 109 16 mp suprafata utila 73 32 mp balcoane 35 84 mp Configuratie 2 dormitoare living cu bucatarie open space hol 2 bai si 2 balcoane - balcon 22 45 mp balcon 13 39 mp Incalzire in pardoseala centrala imobil Pretul apartamentului cu predare la cheie este de 174 500 EUR TVA dar exista si posibilitatea de predare la alb Locuri de parcare la subteran disponibile la 13 500 EUR TVA Locatia ofera acces rapid la Pasajul Doamna Ghica si Soseaua Colentina Acces excelent la transportul public 2 minute pana la statiile STB - Proiectul dispune de arhitectura contemporana si design functional - Standard NZEB - eficienta energetica ridicata consum redus...
R E A Imobiliare va ofera spre vanzare un apartament cu 3 camere decomandat amplasat in zona Morarilor/Soseaua Dobroesti Bloc reabilitat termic cu panouri fotovoltaice construit in 1982 care nu este incadrat in nicio categorie de risc seismic nefiind expertizat Vedere mixta - lumina naturala pe tot parcursul zilei Se afla la etajul 2 al unui bloc cu 4 etaje si are o suprafata utila totala de 70 mp din care 8 mp sunt reprezentati de cele doua balcoane Compartimentare living doua dormitoare bucatarie doua bai si doua balcoane Confortul termic este asigurat prin reteaua edilitara de termoficare Zona pet-friendly In imediata apropiere se afla puncte comerciale bancare farmaceutice medicale educationale si de divertisment Acces facil la mijloacele de transport in comun 12-15 minute pana la statia de metrou Se accepta toate modalitatile de plata Informatiile tehnice au caracter orientativ acestea fiind preluate de la proprietar Comision standard valab...
București - 25 Octombrie 2025
105.000 €
Atenție
Din motive de securitate și pentru protecția utilizatorilor, această funcționalitate nu este disponibilă pentru locația ta.