Ansamblul Somesului 15 by Hexagon combina locuinte de 2 3 4 camere Materialele si dotarile sunt de cel mai inalt nivel iar ansamblul respecta standardele nZEB prin solutii sustenabile energie geotermala pompe de caldura panouri solare In plus Hexagon are o reputatie solida in piata--acest proiect este ideal pentru clientii care cauta confort calitate si un stil de viata urban responsiv Apartamentele se predau Semifinisate cu posibilitate de finisare Cladirea imbina un design rafinat cu eficienta energetica prin fatada ventilata cu tehnologie Hytect ce purifica aerul termoizolatie sanatoasa din vata bazaltica de 200 mm si tamplarii placate cu aluminiu dotate cu sticla tripan si jaluzele automate pentru protectie solara Echipamentele high-tech includ un sistem bivalent de incalzire si racire prin tavane pompe de caldura geotermale si solare panouri fotovoltaice pe acoperis si ventilare cu recuperare de caldura integrata in fatade Confortul si eficienta sunt amplificate de un sistem smart home pentru controlul incalzirii racirii iluminatului si jaluzelelor precum si de statiile de incarcare electrica inteligente din parcarea subterana Toate acestea sunt completate de o curte interioara amenajata peisagistic ca o oaza de liniste si un spatiu de joaca ce continua firesc peisajul malului Somesului Apartamentul prezentat are o suprafata utila de 76 mp plus o terasa de 27 2 mp Pretul parcarilor subterane incep de la 18 000 plus TVA Cod oferta / ID BLITZ P150593 Id intern P150593
⚠ AtenÈ›ie !
Nu plăti niciodată în avans într-un cont bancar până când nu l-ai întâlnit pe vânzător și ați semnat un acord.
Nu furniza informații confidențiale în discuții pe WhatsApp/Telegram sau alte aplicații de mesagerie unde utilizatorii își ascund ușor identitatea, deoarece te poți expune la fraude sau înșelăciuni.
Nu furniza niciodată detaliile cardului tău bancar (număr, data expirării, CVV). Te expune direct la fraude bancare.
Primirea unui mesaj pe WhatsApp/Telegram cu un ID scanat nu înseamnă că ai identificat cumpărătorul. Acest lucru se face pe loc, când semnați un acord de cumpărare.
Când comanzi online, alege livrarea cu verificare. Pentru un cost relativ mic, te protejezi de eventuale neplăceri.
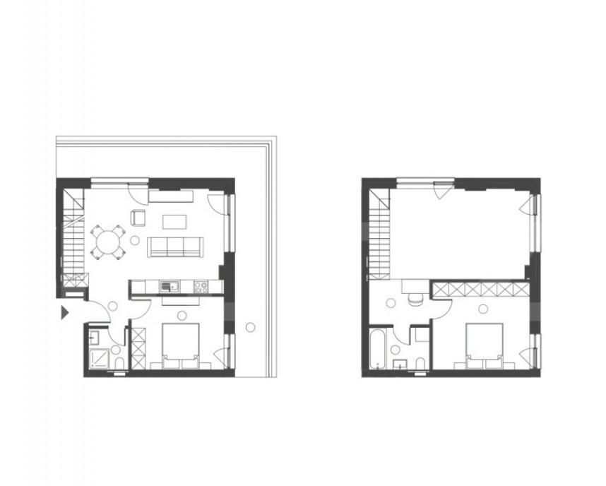
Blitz va prezinta un studio modern de vanzare intr-un bloc nou finalizat in 2019 ideal pentru locuit sau investitie datorita compartimentarii eficiente si orientarii sudice care asigura lumina naturala pe tot parcursul zilei Apartamentul are o suprafata utila de 37 mp la care se adauga o terasa generoasa de 10 mp perfecta pentru relaxare cafeaua de dimineata sau un mic spatiu verde urban Este situat la etajul 4 din 5 intr-un imobil dotat cu lift oferind un echilibru foarte bun intre intimitate lumina si acces facil Orientarea sudica contribuie la un confort termic sporit si la costuri reduse de intretinere Locuinta dispune de centrala termica proprie si incalzire prin calorifere oferind control total asupra temperaturii si cheltuielilor Compartimentarea este practica si bine gandita cu hol prevazut cu spatiu de depozitare bucatarie separata camera luminoasa cu acces direct pe terasa si baie Configuratia permite o mobilare usoara si o utilizare eficienta a fiec...
Blitz ofera spre vanzare un apartament modern de 2 camere situat intr-un bloc nou din cartierul Iris ideal pentru cei care isi doresc confort urban acces rapid la facilitati si o locuinta construita la standarde actuale Proprietatea are o suprafata utila de 52 mp si este compartimentata eficient cu living si bucatarie open space dormitor baie si balcon oferind un spatiu aerisit si usor de personalizat Apartamentul se preda semifinisat un avantaj important pentru cei care vor sa isi amenajeze locuinta dupa propriul gust fara costuri inutile de demolare Beneficiaza de incalzire in pardoseala pentru un confort termic superior ferestre cu geam termopan triplu care asigura izolatie fonica si termica excelenta usa metalica la intrare sistem de aer conditionat integrat si instalatiile electrice si sanitare trase pe pozitie pregatite pentru finisaje finale Imobilul este construit pe structura solida de beton cu zidarie din caramida si izolatie exterioara cu polistiren ...
Blitz Imobiliare va propune spre vanzare o casa premium situata in Moara intr-o zona linistita ideala pentru familie Suprafata 120 mp Teren 600 mp Terasa 45 mp Garaj Se vinde complet mobilata si utilata LUX la cheie electrocasnice Miele mobilier de calitate Mobexpert Dalin perdele/draperii la comanda Perdele Suceava Mutare imediata fara investitii Finisaje si mobilier premium Curte generoasa terasa ideala pentru relaxare Pentru detalii si vizionare Blitz Imobiliare Cod oferta / ID BLITZ P162913 Id intern P162913
Blitz va prezinta o casa P M cu atelier 100 mp si teren generos - Bod Brasov Localitatea Bod jud Brasov Necesita investitii Utilitati disponibile la strada Descriere generala O oportunitate ideala pentru cei care cauta spatiu de locuit activitate profesionala intr-un mediu linistit aproape de Brasov Proprietate cu teren generos de 924 mp situata pe strada asfaltata cu toate utilitatile la poarta Suprafata teren 924 mp Structura constructie lemn Tip cladire Parter mansarda Suprafata parter aprox 140 mp atelier 100 mp NU este racordata la gaz si canalizare - disponibile la limita proprietatii Compartimentare parter Living Bucatarie Doua dormitoare Doua bai Hol Atelier spatios de 100 mp - perfect pentru atelier mestesugaresc mica afacere birou hobby-uri Mansarda Spatiu necompartimentat - cu potential de amenajare dormitoare sala de hobby birou etc Alte informatii Apa si curent r...
BLITZ ofera spre vanzare un apartament de 3 camere situat in cartierul Buna ziua zona Calea Turzii Leroy Merlin cu acces facil spre mijloacele de transport in comun scoli magazine etc Apartamentul are suprafata utila de 61 mp utili compus din living cu bucatarie 2 dormitoare hol baie si terasa circulara de 13 8 mp Apartamentul are orientare sud-vestica si este pozitionat la etajul 3 al unui imobil cu 3 etaje deasupra este pod Pentru mai multe detalii te astept la vizionare Cod oferta / ID BLITZ P162754 Id intern P162754
Visezi la un camin primitor spatios si linistit Acest apartament cu 3 camere decomandat confort 1 situat intr-o zona linistita a Sectorului 4 - Brancoveanu str Izvorul Muresului te asteapta sa-i spui acasa Locatie excelenta - aproape de mijloace de transport scoli parcuri si magazine dar ferit de agitatia urbana La parter intr-un bloc cu doar 4 etaje - ideal pentru familii cu copii persoane in varsta sau pentru cei ce iubesc accesul usor si rapid Loc de parcare de la primarie - fara griji pentru masina Bucataria ramane mobilata exact ca in poze gata pentru mesele in familie iar dressingul din dormitor iti ofera spatiul de depozitare de care ai nevoie Este locul perfect unde linistea cartierului se imbina cu confortul unei locuinte calde si luminoase pregatita sa primeasca povestile unei noi familii Suna acum si programeaza o vizionare - urmatorul capitol al vietii tale poate incepe aici Paula Tereaca 0726171888
R E A Imobiliare va ofera spre vanzare un apartament cu 3 camere decomandat amplasat in zona Costin Georgian/Vergului Bloc reabilitat termic construit in 1976 care nu este incadrat in nicio categorie de risc seismic nefiind expertizat Se afla la etajul 7 al unui bloc cu 10 etaje si are o suprafata utila totala de 67 mp Compartimentare living doua dormitoare bucatarie baie si balcon Confortul termic este asigurat prin reteaua edilitara de termoficare dar si cu ajutorul aparatului de aer conditionat Se vinde semimobilat Instalatiile electrice si sanitare au fost schimbate Loc de parcare Zona pet-friendly In imediata apropiere se afla puncte comerciale bancare farmaceutice medicale educationale si de divertisment Acces facil la mijloacele de transport in comun 5-6 minute pana la statia de metrou Se accepta toate modalitatile de plata Informatiile tehnice au caracter orientativ acestea fiind preluate de la proprietar Comision standard valabil doa...
Blitz ofera spre vanzare apartament 3 camere cu gradina situat in zona Fagului cu orientare Vest-Est Apartamentul se afla aproape de mijloace de transport magazine farmacii gradinite si spatii verzi Apartamentul este situata la etajul parter al unui imobil cu regim de inaltime P 3 finalizat in anul 2017 Suprafata utila este de 64mp plus o gradina de 50mp Compartimentarea este semidecomandata si se prezinta astfel hol living cu bucatarie open space 2 dormitoare baie debara balcon inchis cu debara si o gradina mare Se vinde mobilat si utilat cum v-a fi prezentat la vizionare Pentru mai multe detalii sau pentru a stabili o vizionare nu ezitati sa ne contactati Cod oferta / ID BLITZ P131939 Id intern P131939
Sunt Dima consultant imobiliar in cadrul biroului RE/MAX Central din Brasov iar astazi va prezint un apartament special situat in inima cartierului istoric Schei pe strada Capitan Ilie Birt nr 10 -- la doar cativa pasi de Piata Unirii Despre zona Piata Unirii este una dintre cele mai frumoase si autentice zone ale Brasovului un loc incarcat de istorie traditie si farmec local Inconjurata de stradute inguste case vechi reconditionate si privelisti spectaculoase catre Tampa zona ofera un stil de viata aparte liniste aer curat si apropierea de centrul istoric si toate atractiile sale Descrierea apartamentului Proprietatea se afla la ultimul nivel al unei cladiri cu regim P 2 M o casa cu poveste construita in 1926 si complet renovata in 2025 care si-a pastrat insa farmecul arhitecturii originale Apartamentul are o suprafata utila de 108 mp fiind generos si bine proportionat doua dormitoare luminoase un living amplu si primitor o bucatarie mare ...
Blitz va prezinta un apartament spatios cu 3 camere decomandat situat intr-o zona excelenta cu acces rapid catre punctele de interes ale orasului Construit in 1990 intr-o perioada recunoscuta pentru calitatea ridicata a imobilelor apartamentul impresioneaza prin compartimentarea eficienta si spatiile generoase Suprafata este completata de doua bai functionale doua balcoane cu vedere spectaculoasa spre Tampa precum si o boxa de 6 mp dotata cu rafturi si inaltime suficienta pentru a sta confortabil in picioare Lumina naturala abundenta patrunde pe tot parcursul zilei in fiecare camera oferind o atmosfera calda si primitoare Livingul este atat de generos incat permite compartimentarea suplimentara ideal pentru familii numeroase sau pentru cei care doresc un spatiu de lucru suplimentar La intrare un geam mare cu deschidere spre o terasa ofera o vedere panoramica impresionanta perfecta pentru relaxare Apartamentul este ideal pentru cei care cauta confort spatiu si o...
BraÅŸov - 22 August 2025
169.000 €
Atenție
Din motive de securitate și pentru protecția utilizatorilor, această funcționalitate nu este disponibilă pentru locația ta.