Apartamentul este situat pe strada 11 Iunie foarte aproape de Piata Libertatii intr-un bloc construit in anul 1930 expertizat seismic si incadrat in clasa U2 Imobilul este anvelopat la exterior are doar 3 nivele plus mansarda fara lift si beneficiaza de o curte comuna Locuinta se afla la etajul 2 are vedere stradala si este foarte luminoasa Apartamentul este decomandat dispune de centrala proprie si aer conditionat este nemobilat iar bucataria si baia sunt mobilate si utilate Necesita o usoara renovare - raschetare sau inlocuire parchet zugravirea peretilor si cateva retusuri la finisaje beneficiaza de un balcon comun cu acces din bucatarie catre scara secundara Totodata beneficiaza si de o boxa in subsolul blocului idela pentru depozitare Zona este excelenta cu statie de RATB si tramvai chiar in fata blocului iar in proximitate se gasesc restaurante cafenele si diverse facilitati iar parcul Carol este la 2 min de mers pe jos Apartamentul este situat vis-a-vis de FABRICA Pub intr-o zona vibranta si accesibila ceea ce il face o alegere ideala atat pentru locuit cat si pentru investitie in vederea inchirierii pe termen lung Imobilul este disponibil imediat si reprezinta o oportunitate intr-o zona centrala Daca ti-am starnit curiozitatea si vrei sa vii sa vezi acest apartament astept un apel din partea ta
⚠ AtenÈ›ie !
Nu plăti niciodată în avans într-un cont bancar până când nu l-ai întâlnit pe vânzător și ați semnat un acord.
Nu furniza informații confidențiale în discuții pe WhatsApp/Telegram sau alte aplicații de mesagerie unde utilizatorii își ascund ușor identitatea, deoarece te poți expune la fraude sau înșelăciuni.
Nu furniza niciodată detaliile cardului tău bancar (număr, data expirării, CVV). Te expune direct la fraude bancare.
Primirea unui mesaj pe WhatsApp/Telegram cu un ID scanat nu înseamnă că ai identificat cumpărătorul. Acest lucru se face pe loc, când semnați un acord de cumpărare.
Când comanzi online, alege livrarea cu verificare. Pentru un cost relativ mic, te protejezi de eventuale neplăceri.
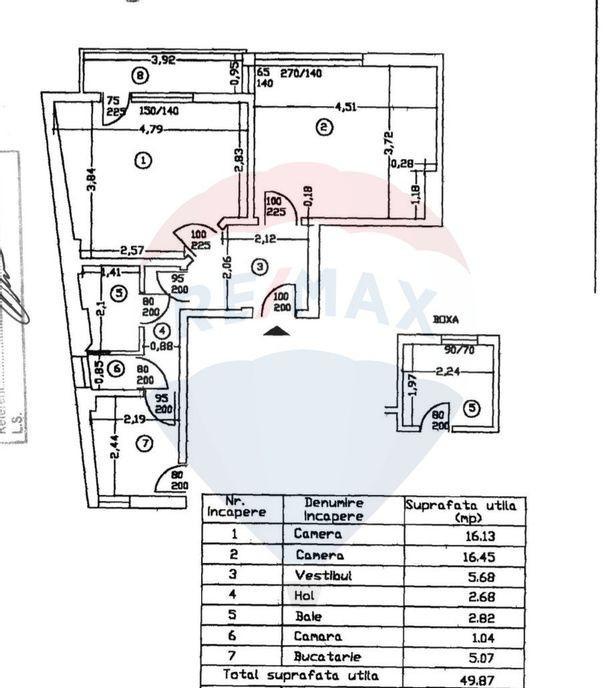
Va prezint spre inchiriere un superb apartament cu 4 camere situat la 1 mn de P-ta Victoriei Apartaentul se preteaza pentru a fi ocupat de o firma ce are ca domeniu de activitate birouri sau alta activitate similara dar poate fi inchiriat si pentru regim rezidential Blocul este o construcite cu 4 etaje mansarda ce a fost finalizat in anul 1930 situat stradat pe Blv Lascar Catargiu Este incadrat in clasa de urgenta 2 nefiind incadrat in clasa de risc seismic Apartamentul se afla la etajul 2 cu vedere pe fata blocului orientarea este catre N-E foarte luminos spatios si cu o compartimentare excelenta Blocu este dotat cu lift Tavanele inalte obloanele si tamplaria din lemn usile si parchetul din lemn masiv pastreaza aerul intebelic si frumusetea apartamentului Un avantaj al apartamentuui este faptul ca are centrala proprie si aer conditionat montat in fiecare camera in asa fel incat sedera in aceasta proprietate sa fie cat mai placuta Pentru mai multe detalii nu e...
Apartamentul este situat pe strada 11 Iunie foarte aproape de Piata Libertatii intr-un bloc construit in anul 1930 expertizat seismic si incadrat in clasa U2 Imobilul este anvelopat la exterior are doar 3 nivele plus mansarda fara lift si beneficiaza de o curte comuna Locuinta se afla la etajul 2 are vedere stradala si este foarte luminoasa Apartamentul este decomandat dispune de centrala proprie si aer conditionat si se vinde nemobilat Beneficiaza de un balcon comun cu acces din bucatarie catre scara secundara totodata si de o boxa in subsolul blocului idela pentru depozitare Zona este excelenta cu statie de RATB si tramvai chiar in fata blocului iar in proximitate se gasesc restaurante cafenele si diverse facilitati iar parcul Carol este la 2 min de mers pe jos Apartamentul este situat vis-a-vis de FABRICA Pub intr-o zona vibranta si accesibila ceea ce il face o alegere ideala atat pentru locuit cat si pentru investitie in vederea inchirierii pe termen lung...
Disponibil acum spre inchiriere un apartament de doua camere situat intr-unul dintre putinele imobile construite ultracentral in anul 1984 pe strada George Enescu in zona Pietei Lahovari si a Ambasadei Marii Britanii Imobilul este solid bine intretinut izolat termic si recent igienizat Apartamentul se afla la etajul 8 al unui bloc cu 9 niveluri si beneficiaza de un etaj tehnic deasupra ceea ce ofera un plus de liniste si confort Privelistea este superba neobstructionata cu vedere directa catre Ambasada Marii Britanii si o perspectiva ampla asupra centrului Bucurestiului Locuinta este complet mobilata si utilata toate piesele de mobilier si electrocasnicele fiind noi si alese cu grija pentru a oferi confort si functionalitate Apartamentul are o compartimentare eficienta fiind format din vestibul spatios bucatarie inchisa living luminos dormitor primitor grup sanitar si un balcon generos accesibil din living si extins pana in dreptul bucatariei Este dotat cu dou...
PET FRIENDLY - se accepta animale de companie Apartamentul este situat pe strada 11 Iunie intr-un bloc interbelic construit in anul 1930 expertizat seismic si incadrat in clasa U2 Cladirea este anvelopata la exterior are doar 3 nivele plus mansarda fara lift si beneficiaza de curte comuna Locuinta se afla la etajul 2 are vedere la strada si este foarte luminoasa Apartamentul este decomandat dispune de centrala proprie si aer conditionat este nemobilat iar bucataria si baia sunt mobilate si utilate Spatiul este potrivit in special pentru birou dar poate fi folosit si ca locuinta confortabila datorita amplasarii centrale si compartimentarii eficiente Apartamentul necesita o usoara renovare - raschetare sau inlocuire parchet zugravirea peretilor si mici retusuri la finisaje - iar proprietarul este dispus sa scada costurile renovarii din chirie Zona este excelenta cu statie de RATB si tramvai chiar in fata blocului restaurante cafenele si alte facilitati urba...
Va oferim un spatiu modern de birou cu suprafata de 230 de mp mochetabil si o suprafata utila de 286 60 mp ce include chicienta grupuriile sanitare si camera servarului un spatiu ce poate fi exploatat de pana la 23 de persoane Spatiul este situat la etajul 6 dintr-o cladire premium construita in anul 2013 Spatiul este disponibil imediat si beneficiaza de flexibilitate in compartimentare adaptandu-se astfel nevoilor dumneavoastra Caracteristici 1 Chicineta 2 grupuri sanitare 2 lifturi de acces Camera server Terasa proprie Supraveghere video Receptie si paza permanenta Semi mobilat cu optiunea de a se inchiria cu mobilierul existent Cladirea este situata in zona ultracentrala reper Vasile Lascar cu acces facil catre toate mijloacele de transport La parter se regasesc spatii comerciale magazine cafenele si alte facilitati Pentru confortul angajatilor sunt disponibile in subsolul cladirii 4 locuri de parcare nominale ce se inchiriaza separat la pr...
Koncept Imobiliare va propune spre vanzare un apartament situat in zona Garii amplasat la parterul unei cladiri reabilitate cu regim de inaltime P 4 si curte comuna Locatia ofera acces facil catre Facultatea de Litere centrul orasului si multiple puncte de interes dar ramane in acelasi timp retrasa de la zgomotul si agitatia arterelor principale Apartamentul are o suprafata utila de 47 mp si este compus din 2 camere bucatarie baie si hol cu posibilitate de recompartimentare in functie de nevoi Nu dispune de balcon terasa sau parcare dar beneficiaza de o configuratie practica si versatila ideala pentru locuire sau inchiriere pe termen lung Finisajele sunt decente iar locuinta se vinde mobilata si dotata cu centrala termica proprie Orientarea estica permite o iluminare naturala buna in prima parte a zilei Imobilul este ocupabil imediat si reprezinta o optiune functionala pentru cei care cauta eficienta si proximitate urbana Recomandat atat pentru locuinta de familie c...
Te invitam sa descoperi acest apartament cu 2 camere situat intr-un ansamblu rezidential nou si exclusivist din inima Florestiului intr-o zona centrala Pretul afisat include TVA-ul Cu o suprafata utila de 52 38 mp si o terasa de 11 26 mp apartamentul este ideal pentru cei care apreciaza confortul si stilul de viata modern Etajul poate fi ales in functie de dorinta clintului si disponibilitate beneficiind de o orientare estica te vei bucura de o lumina naturala placuta pe tot parcursul zilei Compartimentarea inteligenta include 1 dormitor luminos 1 living generos perfect pentru relaxare 1 bucatarie 1 baie moderna Apartamenele se pot preda si la stadiul de FINISAT la pretul de 1800 euro/mp Posibilitatea achizitionarii unui loc de parcare subteran la pretul de 7000e Nu rata ocazia de a investi intr-un apartament care promite confort si rafinament Pentru mai multe detalii legate de apartament sau pentru o vizionare nu ezitati sa ne contactati Termenul de finalizare este ...
Descopera confortul si eleganta unui apartament mobilat si decorat cu gust de un designer situat intr-un apreciat complex rezidential din nordul capitalei - City Nord Tunari Acest apartament beneficiaza de un interior rafinat cu finisaje de calitate superioara perfect gandit pentru a-ti oferi un spatiu modern luminos si primitor Fiecare detaliu a fost ales cu atentie pentru a crea un ambient placut si functional ideal pentru confortul tau zilnic Locatia este legata de Promenada Mall prin linia STV 459 Aici vei putea sa te bucuri de linistea si siguranta unui complex rezidential de top Ideal pentru cupluri sau persoane care doresc sa traiasca intr-un cadru modern Detalii etaj Bloc Apartamente Detalii garaj Garaj atasat Loc Parcare Repartizata Detalii compartimentare spatiu Suprafata Nivel Principal MP 54 70mp Reper Tunari - Tunari Nord
Apartament 2 camere de vanzare decomandat 36 mp zona Vasile Aaron Sibiu Prin investitia in acest apartament puteti beneficia de o compartimentare decomandata cu o suprafata utila de 36 mp caracteristica ce il face sa fie probabil unic pe piata imobiliara Avantaje majore ale acestui apartament bull nbsp Priveliste direct catre muntii Fagaras fara a fi opturata de nimic bull Compartimentare ideala bull nbsp Acces facil catre punctele de inters ale orasului bull nbsp Scoli gradinite insitutii bancare spatii comerciale toate la cateva minute de mers pe jos TABOO Imobiliare propune un apartament de vanzare cu 2 camere decomandat situat in localitatea Sibiu zona Vasile Aaron aflat la etajul 5 intr-un imobil tip bloc cu regim de inaltime pe Parter nbsp 5 Etaje anul constructiei este 1980 iar structura este beton Suprafata utila este de 36 mp Apartamentul este structurat astfel bull Hol bull Bucatarie bull Dormitor bull...
Apartament 2 camere de vanzare semidecomandat 44 mp zona Calea Cisnadiei - Arhitectilor Sibiu Exclusivitate Comision 0 Descopera un apartament care nu este doar un spatiu ci un adevarat refugiu Fiecare colt al acestui apartament spune o poveste si asteapta sa o completezi cu a ta Este locul ideal pentru un nou inceput pentru visuri care prind contur si pentru clipe care merita traite din plin Avantaje majore ale acestui apartament bull Loc de parcare bull nbsp Pretabil investitie sigura TABOO Imobiliare propune un apartament de vanzare cu 2 camere semidecomandat situat in localitatea Sibiu zona Calea Cisnadiei - Arhitectilor aflat la etajul 1 intr -un imobil tip bloc cu regim de inaltime pe Parter 2 Etaje anul constructiei 2019 structura caramida Suprafata utila de 44 mp balcon de 3 mp Apartamentul este structurat astfel bull Hol bull Bucatarie Living cu Balcon bull Baie bull Dormitor Finisajele interioare sunt cl...
Sibiu - 12 Iunie 2025
89.000 €
Atenție
Din motive de securitate și pentru protecția utilizatorilor, această funcționalitate nu este disponibilă pentru locația ta.