Va propunem spre vanzare un apartament de 2 camere decomandat cu o suprafata totala de aproximativ 52 mp Este situat la etajul 4 al unui bloc de 10 etaje construit in 1972 Apartamentul necesita renovare insa are urmatoarele avantaje -este compartimentat eficient fiind decomandat - beneficiaza de un balcon patios si loc de depozitare -este un apartament luminos si spatios -este aproape de scoli si gradinite Pentru detalii si vizionari contactati-o pe Antonia la 0758880813 Comision standard
⚠ AtenÈ›ie !
Nu plăti niciodată în avans într-un cont bancar până când nu l-ai întâlnit pe vânzător și ați semnat un acord.
Nu furniza informații confidențiale în discuții pe WhatsApp/Telegram sau alte aplicații de mesagerie unde utilizatorii își ascund ușor identitatea, deoarece te poți expune la fraude sau înșelăciuni.
Nu furniza niciodată detaliile cardului tău bancar (număr, data expirării, CVV). Te expune direct la fraude bancare.
Primirea unui mesaj pe WhatsApp/Telegram cu un ID scanat nu înseamnă că ai identificat cumpărătorul. Acest lucru se face pe loc, când semnați un acord de cumpărare.
Când comanzi online, alege livrarea cu verificare. Pentru un cost relativ mic, te protejezi de eventuale neplăceri.
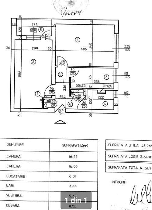
Va prezentam spre vanzare un apartament de 4 camere cu o suprafata utila de aproximativ 80 mp si totala de aproximativ 88 mp Apartamentul dispune de doua balcoane-unul la dormitor si celalalt la bucatarie Dispune de primul grup sanitar cu cada si aerisire naturala iar celalalt este cu cabina de dus Apartamentul se vinde nemobilat ceea ce asigura un avantaj noului proprietar Este un apartament luminos si spatios ideal pentru o familie cu mai multi membri Este pozitionat intre Soseaua Oltenitei si Soseaua Berceni la o distanta de metrou Piata Sudului de 13 minute de mers pe jos si 15 minute de Aparatorii Patriei In zona avem magazine scoli gradinite spitale Pentru vizionari sau informatii sunati la 0758880813 Antonia Comision standard
ID 2C007 Va propunem spre vanzare un apartament de 52 mp ideal atat pentru locuinta cat si pentru investitie sau afacere Situat la parterul unui bloc rezidential nou acesta este ultimul apartament disponibil din imobil Zona Brancoveanu ofera acces rapid catre toate punctele importante ale Capitalei fiind aproape de mijloace de transport magazine si spatii verzi Apartamentul dispune de centrala proprie iar parcarea interioara este disponibila contra cost Pentru vizionari detalii suplimentare sau oferte similare ma puteti contacta la 0758880813 Antonia Comision standard
Va propunem spre vanzare un apartament de 2 camere decomandat situat in zona Brancoveanu intr-un bloc anvelopat intr-un cartier linistit si bine conectat la mijloacele de transport Apartamentul se afla la etajul 4 din 7 si dispune de loc de parcare un avantaj important in zona Metroul Constantin Brancoveanu se afla la aproximativ 10 minute iar in apropiere sunt statii de autobuz magazine farmacii si spatii verzi Locuinta este luminoasa bine compartimentata si potrivita atat pentru locuit cat si ca investitie datorita pozitiei excelente Pentru mai multe detalii programari pentru vizionare sau oferte similare ma puteti contacta 0758880813 Antonia Comision standard
Va oferim spre vanzare un apartament de 2 camere situat la etajul 1 din 4 intr-un bloc solid construit in 1985 intr-o zona linistita si verde aproape de Rezervatia Naturala Parc Vacaresti Apartamentul dispune de urmatoarele caracteristici -suprafata totala de aproximativ 67 mp -un balcon la sufragerie si unul la dormitor -bucatarie spatioasa si luminoasa cu vedere catre gradina blocului -baie spatioasa aerisita natural -boxa la subsol de 4 mp -mobilat si utilat precum in poze -posibilitate preluare loc de parcare-mai sunt 6 locuri libere -pozitionare excelenta intr-o zona superba k aproape de statiile STB Piata Sudului scoli gradinite - Suprafata totala 66 4 mp compartimentare semi-decomandata 2 balcoane - in dormitor si living Boxa la subsol atribuita apartamentului - 4mp Complet mobilat si utilat inclusiv dressing 1-2 pers Pozitionare pe 3 laturi ale cladirii cu vedere catre spatii verzi si multa lumina naturala Vederea din b...
Va propunem sp vanzare un apartament de 3 camere situat pe strada Podul Giurgiului cu o suprafata de aproximativ 50 mp Este situat la etajul 7/10 intr-un bloc anvelopat urmeaza a fi schimbat liftul Apartamentul se vinde complet mobilat si utilat Este un apartament renovat se dispune de urmatoarele imbunatatiri -instalatie electrica si sanitara schimbata -a fost zugravit recent -toate caloriferele si tevile aferente au fost inlocuite -baia a fost renovata complet cu tevi din cupru In proximitate avem magazine precum Lidl si Mega Image scoli gradiite spatii verzi si statii STB iar metroul Eroii Revolutiei se afla la 4 statii distanta Pentru vizionari sau infomatii contactati-o pe Antonia la 0758880813 Comision standard
Va prezentam un apartament cu 2 camere situat la etajul 1 in zona Timpuri Noi in apropiere de Palatul Copiilor si intrarea in Parcul Tineretului pe Calea Vacaresti decomandat foarte frumos compartimentat la interior Bucatarie mare inchisa Blocul are scara de bloc curata vecini linistiti civilizati In apropiere Palatul Copiilor Timpuri Noi Parcul Tineretului Calea Vacaresti Parcul Vacaresti Sos Mihai Bravu Splaiul Unirii Detalii apartament o Suprafata 55 mp decomandat o Camere 2 camere o Etaj 1/4 bloc solid din beton construit 1986 Vecinatati o Parcuri si zone verzi pentru relaxare in apropiere o Acces rapid la centre comerciale Locatia centrala il face potrivit si pentru uz comercial spatiu birouri sediu firma inchiriere in regim hotelier Nu ratati ocazia de a locui intr-o zona centrala cu toate facilitatile la indemana Pentru mai multe detalii Agentia Imobiliara - Ramiro Imob - 0770280100 - Cornel Ion Comision Standard
Blitz va propune spre vanzare un apartament cu 2 camere semidecomandat mobilat si utilat cu o suprafata de 50 26 mp utili Situat la etajul 4 al unui bloc de 4 etaje intr-o zona linistita proprietatea dispune de un dormitor o sufragerie bucatarie baie si un balcon de 4 60 mp toate utilate si mobilate Blocul este izolat la exterior cat si la interior Se afla langa biserica mare avand parcare publica langa bloc in imediata proximitate gasim gradinita scoala generala si multe spatii verzi De asemenea in zona se afla biblioteca farmacii cafenele supermarketuri etc Pentru mai multe detalii va astept la vizionare Cod oferta / ID BLITZ P145762 Id intern P145762
Agentia Invest Imobiliare va propune spre achizitie un apartament cu 2 camere decomandat luminos cu dubla vedere situat la etajul 1 al unui bloc din 1987 fara risc seismic Zona ofera acces rapid la transport scoli magazine si parcuri Dotari centrala proprie gresie faianta termoizolatie rulouri exterioare balcon inchis Se vinde mobilat si utilat gata de mutare Pentru mai multe detalii si vizionari va rog sa sunati la 0757-135-189 sau email 160 protected Memo privat Id intern P8337
Vanzare apartament 2 camere situat in Bd Chisinau la 1 min fata mijloace de transport in comun si 6 minute fata de Mega Mall La mica distanta fata de locurile de interes Parculul IOR Mega Mall Arena Nationala Piata Delfinului etc Acesta se afla la etajul 7 al unui bloc cu 10 etaje Apartamentul este decomandat luminos dispune de doua grupuri sanitare si doua balcoane Blocul este izolat termic la exterior iar scara este curata Pentru mai multe informatii si vizionari va rog sa apelati numarul afisat Informatii eficienta energetica Clasa energetica Consumul de energie primara Indicele de emisii echivalent CO2 Consum de energie din surse regenerabile
București - 16 Iunie 2025
109.900 €
Atenție
Din motive de securitate și pentru protecția utilizatorilor, această funcționalitate nu este disponibilă pentru locația ta.