Va oferim spre vanzare un apartamet cu 2 camere decomandat cu o suprafata de 61 mp Blocul este situat Apartamentul dispune de urmatoarele caracteristici - bloc finalizat in 2015 P 2 cu pod si acoperis tabla - suprafata apartament 65 mp decomandat - arhitectura cu inaltime tavan 2 9 m oferind volum interior generos - 3 camere 2 balcoane - parcare inclusa cota indiviza Avantaje zona - campus scolar nou in imediata apropiere - acces facil la Mall La Strada Penny Mega Image - pozitionare excelenta intr-o zona superba Sali de fitness saloane pizzerii si restaurante la doar cativa pasi distanta - iesire rapida cu auto la Soseaua Berceni Bd Metalurgiei Nu ratati ocazia de a cumpara acest apartament spatios situat intr-o zona centrala cu toate facilitatile la indemana Aspecte juridice si comerciale Acte la zi Se poate vinde imediat Accepta achizitie prin credit Oferim asistenta completa pentru obtinerea creditului si intocmirea actelor Comision standard Pentru detalii programarea unei vizionari sau alte oferte similare nu ezitati sa ma contactati Emma - 0723 457 657
⚠ AtenÈ›ie !
Nu plăti niciodată în avans într-un cont bancar până când nu l-ai întâlnit pe vânzător și ați semnat un acord.
Nu furniza informații confidențiale în discuții pe WhatsApp/Telegram sau alte aplicații de mesagerie unde utilizatorii își ascund ușor identitatea, deoarece te poți expune la fraude sau înșelăciuni.
Nu furniza niciodată detaliile cardului tău bancar (număr, data expirării, CVV). Te expune direct la fraude bancare.
Primirea unui mesaj pe WhatsApp/Telegram cu un ID scanat nu înseamnă că ai identificat cumpărătorul. Acest lucru se face pe loc, când semnați un acord de cumpărare.
Când comanzi online, alege livrarea cu verificare. Pentru un cost relativ mic, te protejezi de eventuale neplăceri.
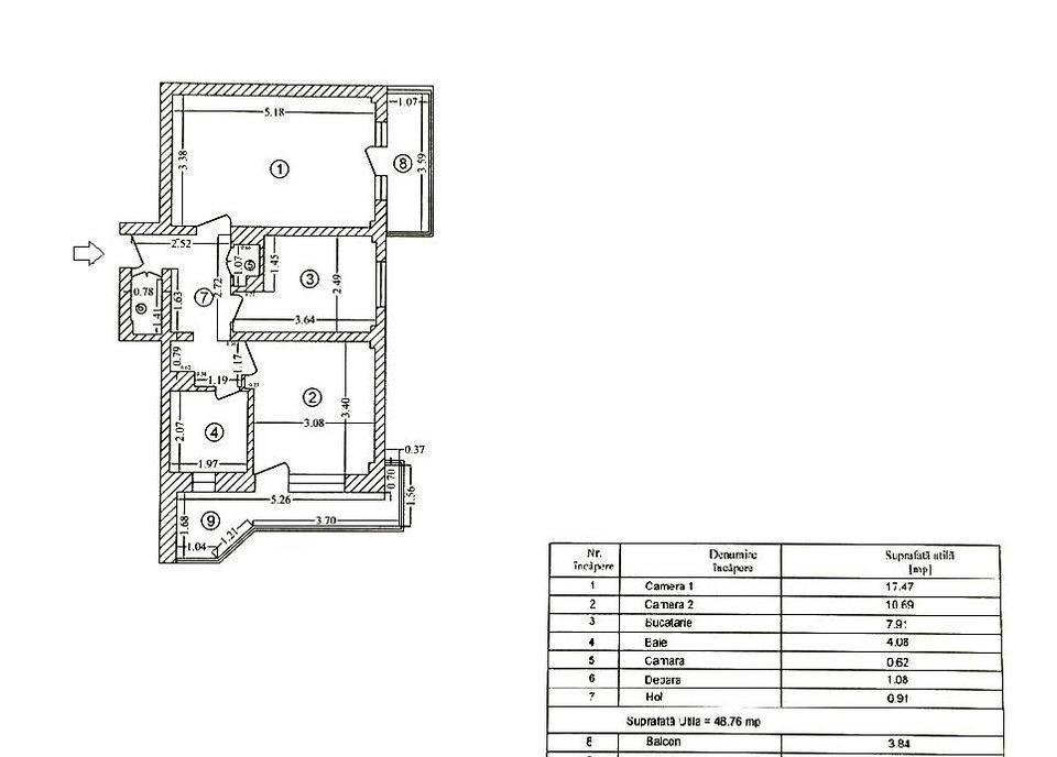
Va propunem spre vanzare o garsoniera situata la parterul unui bloc reabilitat termic de 10 etaje Blocul este pozitionat langa Soseaua Colentina Suprafata 31 mp Balcon Compartimentare eficienta Parter Potrivita pentru birou cabinet activitate comerciala sau locui Bloc reabilitat termic Costuri reduse de intretinere Zona linistita Transport public in vecinatate Statia Doamna Ghica 4 min de mers Statia Teiul Doamnei 6 min de mers Soseaua Colentina 6 min de mers Aspecte juridice Acte la zi Se poate vinde imediat Accepta achizitie prin credit Oferim asistenta completa pentru credit si intocmirea actelor Comision Standard Emma - 0723 457 657 Pentru detalii vizionari sau alte oferte similare nu ezitati sa ma contactati
Ramiro Imob va propune spre vanzare un apartament de 2 camere in una dintre cele mai bune zone din Dristor este la 1 minut de mers pe jos de Metrou Avantaje cheie -Balcon Inchis pentru eficienta termica -Suprafata de 51mp -Foarte bine compartimentat -Imobilul se afla pe Bulevardul Camil Ressu -Metrou Dristor 1 este fix langa Bloc -Mega Image la parterul blocului Nu necesita nici-o investitie mutare rapida se vinde mobilat si utilat exact cum vedeti in poze Apartamentul se poate viziona oricand avem cheia Aspecte juridice si comerciale Acte la zi Se poate vinde imediat Accepta achizitie prin credit Oferim asistenta completa pentru obtinerea creditului si intocmirea actelor Comision standard Pret 89 999 euro Negociabil Pentru mai multe informatii vizionari sau chiar si alte oferte contactati-ma Pentru Detalii si vizionari Contactati-ma Emma 0723 457 657 Comision standard
Detalii imobil Tip imobil bloc de garsoniere An constructie 1982 Bloc foarte curat si bine intretinut Regim de inaltime P 10 Etaj 10 cu etaj tehnic deasupra 2 lifturi Costuri reduse de intretinere Caracteristici garsoniera Tip confort 1 Suprafata 32 mp Compartimentare practica Contorizare individuala Cheltuieli foarte mici Localizare 5 minute de mers pe jos pana la Metrou Iancului Zona linistita cu acces rapid catre toate zonele orasului Avantaje Gata de mutare imediata Ideala pentru locuire sau investitie inchiriere Etaj tehnic deasupra - confort termic si fonic sporit Se vinde mobilata si utilata complet Aspecte juridice si comerciale Acte la zi Se poate vinde imediat Accepta achizitie prin credit Oferim asistenta completa pentru obtinerea creditului si intocmirea actelor Mobilare dotari se vinde exact ca in poze Complet mobilata si utilata Comision standard Pentru detalii programarea unei vizionari sau alte ofe...
Ramiro Imob va propune la vanzare un apartament 3 camere Suprafata 74 mp Etaj 4/10 Compartimentare decomandat Balcon Debara 2 Apartament finisat clasic Se vinde mobilat si utilat complet Localizare Zona Mega Mall - Arena Nationala - Basarabiei Metrou Iancului - 10-12 min Parcul IOR - maxim 20 min pe jos Acces rapid la STB si magazine Avantaje Gata de mutare imediata Ideal pentru locuire sau investitie inchiriere Spatii de depozitare si compartimentare practica Juridic Comercial Acte la zi vanzare imediata Accepta achizitie prin credit Asistenta completa pentru credit si acte Comision standard Pentru detalii programarea unei vizionari sau alte oferte similare nu ezitati sa ma contactati Emma 0723 457 657
Va prezentam un apartament spatios de 3 camere situat in zona Doamna Ghica cu reper Parc Doamna Ghica - Pasaj Doamna Ghica intr-o zona linistita si bine conectata la toate punctele de interes ale orasului Detalii imobil Tip imobil bloc de apartamente Regim de inaltime P 9 Numar apartamente pe palier 4 Bloc cu supraveghere video Reabilitat termic Caracteristici apartament Numar camere 3 Confort 1 Compartimentare decomandat Suprafata totala 77 mp Etaj 8 din 9 Numar bai 1 Numar balcoane 2 Renovat Acces si facilitati Metrou Obor - aproximativ 10 minute Statii STB in apropiere Parcuri Gradinite si scoli Magazine alimentare si de uz casnic Aspecte juridice si comerciale Acte la zi Se poate vinde imediat Accepta achizitie prin credit Asistenta completa pentru credit si intocmirea actelor Comision standard Contact Emma - 0723 457 657 Pentru detalii vizionari sau oferte similare nu ezitati sa ma contactati
Cauti un apartament modern eficient compartimentat si amplasat intr-o zona linistita dar aproape de tot ce conteaza Empire Residence Tornadei 2 continua traditia proiectului Empire Tornadei 1 deja finalizat si locuit oferind acelasi nivel de calitate confort si atentie la detalii Situat intr-o zona rezidentiala linistita cu regim mic de inaltime proiectul ofera apartamente moderne bine compartimentate cu camere luminoase si finisaje de calitate E locul potrivit pentru cei care isi doresc un apartament complet decomandat intr-un bloc nou cu bucatarie separata logie generoasa si acces facil catre Metrou 1 Decembrie 1918 - aproximativ 13 minute de mers pe jos Despre apartament Apartamentul cu 2 camere este gandit inteligent pentru a oferi confort real si functionalitate Dispunerea spatiilor permite o separare clara intre zona de zi si cea de noapte iar lumina naturala abunda in toate incaperile -Living generos cu acces direct catre logie perfect pentr...
et 3/10 recent renovat spatios si bine compartimentat balcon si spatii de depozitare zona linistita acces facil la STB inclusiv la metrou statia Raul Doamnei
Se ofera spre vanzare apartament cu 2 camere decomandat situat la parter intr-un bloc solid construit in 1973 intr-o zona verde si linistita Detalii tehnice o Suprafata utila 36 14 mp o An constructie bloc 1973 o Centrala termica proprie - caldura si apa calda oricand ai nevoie o Instalatii electrice si sanitare complet inlocuite o Parchet cu izolatie - confort termic sporit o Repartitoare cu autocitire - citirea se face automat fara vizite in apartament o Compartimentare decomandata - camere complet separate bine organizate Extra Exact langa bloc exista un parc de copii - ideal pentru familii dar si pentru relaxare in aer liber Zona este linistita si bine conectata la mijloacele de transport in comun iar in apropiere se regasesc magazine restaurante terase si parcuri ceea ce asigura un stil de viata modern si confortabil Daca apreciati aceasta oferta sau pentru alte informatii sunati la numarul de contact din anunt Ne dor...
REA Imobiliare va ofera spre vanzare un apartament cu 2 camere decomandat situat pe Calea Victoriei in vecinatatea restaurantului The Saint Imobilul se afla intr-un bloc de apartamente construit in anul 1969 fara risc seismic la etajul 1/18 si detine o suprafata utila totala de 66 m p Locuinta este alcatuita din un dormitor un living o bucatarie o baie si un hol Apartamentul a fost renovat integral sau schimbat inclusiv instalatiile sanitare si cele electrice si se vinde complet mobilat si utilat Confortul termic este realizat de la reteaua edilitara de termoficare In imediata apropiere se intalnesc puncte farmaceutice medicale comerciale educationale de divertisment bancare parcuri piete etc Accesul la mijloacele de transport in comun facil 8 minute pana la statia de metrou Piata Victoriei Se accepta toate modalitatile de plata Informatiile tehnice au caracter orientativ acestea fiind preluate de la proprietari Pentru mai multe detalii si v...
Ramiro imob va propune spre vanzare un apartament cu 2 camere decomandat cu suprafata de aproximiativ 55 mp Situat in planul secund fata de Bulevardul 1 Decembrie 1918 intr-un imobil construit in 1977 Apartamentul se afla la etajul 4 si dispune de doua balcoane Blocul este izolat termic Pret 93 000 euro Negociabil ID 2C014 Agent Emma 0723 457 657 Comision Standard
București - 9 Ianuarie 2026
92.999 €
Atenție
Din motive de securitate și pentru protecția utilizatorilor, această funcționalitate nu este disponibilă pentru locația ta.