Va oferim spre vanzare un apartament cu 2 camere bloc nou finalizat 2023 Zona este linistita si accesibila are iesire rapida 7-8 minute de mers pe jos pana la intersectia Bd C-tin Brancoveanu cu Strada Turnu Magurele la cateva minute de Grand Arena Mall Statii Stb - 102 220 141 116 216 - 10 minute de Statia de Metrou Aparatorii Patriei sau de Statia de Metrou C-tin Brancoveanu Cu masina pana in centrul orasului 20-30 minute Blocul este construit solid cu materiale de calitate caramida porotherm acoperis din tabla cu pod placa de beton de la ultimul etaj izolata cu vata Fiind bloc nou nu veti avea surprize pe viitor precum la apartamentele vechi de o viitoare expertizare si incadrare intr-un grad de risc seismic inferior In bloc au mai ramas disponibile pentru vanzare apartamente de 2 camere la etajul 8 Pretul pe metru patrat construit este foarte avantajos chiar mai bun decat pretul apartamentelor din blocurile vechi din zona Detalii apartament Suprafata 63 mp utili - 78 500euro sau 72mp- 89000euro - preturile sunt cu tva inclus Apartament finalizat curent-apa-gaze trase usa metalica la intrare ferestre termopan tevile de la calorifere trase prin pereti Acest apartament se vinde finisat viitorul proprietar va trebui sa monteze centrala Actele sunt pregatite pentru vanzare Comision Standard Pret 78 500 euro Pentru mai multe detalii vizionari sau oferte similare contactati-ma Beatrice 0771631848
⚠ AtenÈ›ie !
Nu plăti niciodată în avans într-un cont bancar până când nu l-ai întâlnit pe vânzător și ați semnat un acord.
Nu furniza informații confidențiale în discuții pe WhatsApp/Telegram sau alte aplicații de mesagerie unde utilizatorii își ascund ușor identitatea, deoarece te poți expune la fraude sau înșelăciuni.
Nu furniza niciodată detaliile cardului tău bancar (număr, data expirării, CVV). Te expune direct la fraude bancare.
Primirea unui mesaj pe WhatsApp/Telegram cu un ID scanat nu înseamnă că ai identificat cumpărătorul. Acest lucru se face pe loc, când semnați un acord de cumpărare.
Când comanzi online, alege livrarea cu verificare. Pentru un cost relativ mic, te protejezi de eventuale neplăceri.
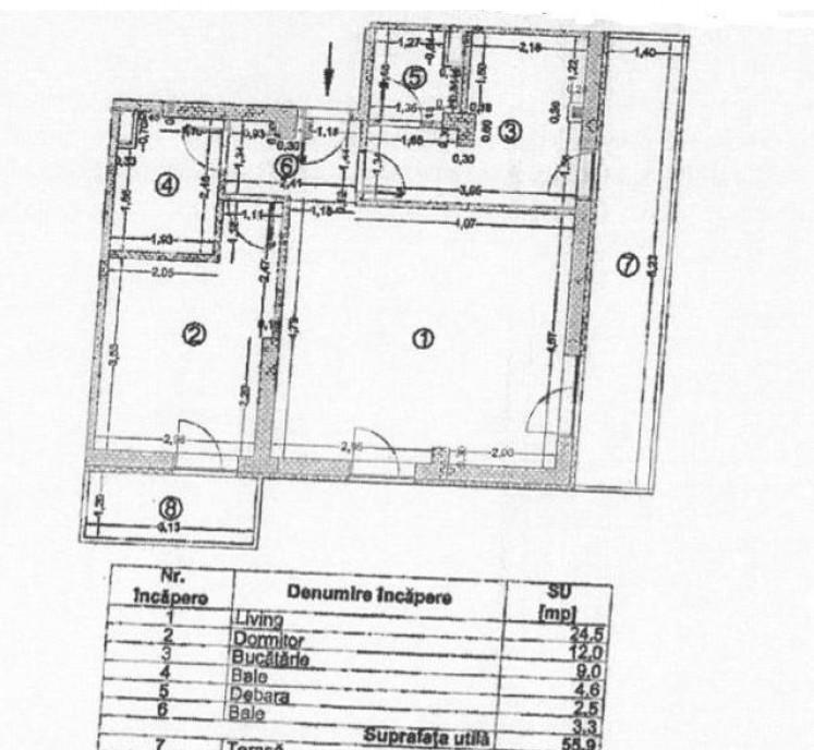
ID 3C011 Va propunem spre vanzare un apartament de 3 camere decomandat situat pe Soseaua Giurgiului la doar 4 statii de mers cu mijlocul de transport in comun pana la statia de metrou Eroii Revolutiei Suprafata 75 mp Etaj 8/10 Blocul este reabilitat termic Se preda mobilat/utilat Actele sunt pregatite pentru vanzare mutare imediata Comision standard Pret 93 000 euro Pentru mai multe detalii vizionari sau oferte similare contactati-ma Beatrice 0771631848
Apartament spatios de 4 camere decomandat cu suprafata totala de 70 mp situat la etajul 3 din 10 intr-un bloc solid construit in 1976 si anvelopat termic in 2020 Locuinta a fost renovata complet in 2024 pregatita pentru mutare imediata fara alte investitii necesare Finisajele sunt moderne si de calitate Apartamentul se vinde mobilat si utilat complet la pretul de 127 000 EUR Exista posibilitatea achizitiei nemobilat 122 000 EUR sau semimobilat in functie de preferintele cumparatorului - Suprafata totala 70 mp - Etaj 3/10 - Bloc 1976 anvelopat termic 2020 - Renovare completa 2024 - Finisaje moderne mobilat si utilat complet optional nemobilat sau semimobilat Avantaje zona - Pozitionare excelenta pe Bulevardul 1 Decembrie 1918 - La 5 minute de mers pe jos de statia de metrou 1 Decembrie 1918 - Aproape de supermarketuri scoli gradinite si alte puncte de interes Pret discutabil ideal pentru familie care cauta confort spatiu si acces rapid la mijloac...
Apartament cu 2 camere decomandat avand o suprafata totala de 51 mp Locuinta este situata la etajul 5 din 8 intr-un bloc construit in 1980 si reabilitat termic Apartamentul a fost recent renovat si dispune de multiple imbunatatiri fiind gata pentru mutare imediata - Suprafata totala 51 mp - Etaj 5/8 - Bloc constructie 1980 reabilitat termic - Parchet nou - Faianta si gresie noi - Obiecte sanitare noi - Usa metalica noua - Decomandat Avantaje zona - Aproape de statii STB - 10 minute pana la metrou Aparatorii Patriei - Acces facil la magazine scoli si gradinite - Zona linistita si bine conectata Comision standard Pentru mai multe detalii vizionari sau oferte similare contactati-ma Beatrice 0771631848
Va propunem spre vanzare un apartament spatios cu 2 camere decomandat cu o suprafata generoasa de 78 m2 la care se adauga o camera suplimentara de 15 m2 aflata la demisol perfecta pentru depozitare ajungand la un total de 93 m2 utili Locuinta se preda mobilata si utilata fiind echipata cu o centrala proprie noua Situat intr-un bloc intim cu doar doua etaje apartamentul se afla pe Soseaua Giurgiului langa Cimitirul Evreiesc Camerele mari de 16 si 17 m2 sunt luminoase si ofera un plus de confort si intimitate Inaltimea de 3 metri confera intregului spatiu o atmosfera aerisita iar holul generos include zone bine gandite pentru depozitare Bucataria are acces direct la o terasa de 8 m2 - un loc linistit ideal pentru un mic dejun in aer liber sau pentru momente de relaxare Datorita compartimentarii eficiente apartamentul poate fi transformat cu usurinta intr-o locuinta cu 3 camere Un avantaj major este amplasarea chiar in fata imobilului va fi construita noua statie...
Va propunem spre vanzare un apartament cu 2 camere decomandat 52mp p/10 mobila si utilat partial situat intr-un bloc anvelopat construit in anul 1978 situat la 3 minute de mers pe jos pana la statia de metrou 1 dec 1918 In imediata apropiere sunt scoli gradinite magazine mijloace de transport in comun stb piata agro-alimentara Comision standard Pret 78 000 euro Pentru mai multe detalii vizionari sau oferte similare contactati-ma Beatrice 0771631848
Apartament de 2 camere intr-un bloc stradal pe Bulevardul Ion Mihalache situat intre Piata Domenii si Chibrit la mai putin de 10 minute de mers pe jos pana la statia de metrou Apartamentul este la parterul unui bloc de 7 etaje are vedere spre spate liniste ferit de zgomotul de la bulevard dispune de ferestre de tip termopan aer conditionat bucatarie spatioasa iar baia are geam spre exterior Fiind la parter apartamentul nu are balcon Apartamentul este liber fiind disponibil pentru o mutare imediata
Situat intr-un bloc nou din cartierul Zorilor pe strada Observatorului acest apartament cu 2 camere semidecomandate imbina perfect confortul modern cu avantajele unei pozitionari excelente in oras Locuinta este compusa dintr-un hol de intrare un living luminos cu bucatarie open space dormitor spatios si baie Se vinde partial mobilat ceea ce permite viitorului proprietar sa aduca usor propria amprenta asupra spatiului Unul dintre punctele forte ale proprietatii este potentialul investitional in prezent este inchiriat generand venit imediat pentru cumparator Zona este foarte cautata de studenti si cadre medicale datorita proximitatii fata de principalele centre universitare si medicale ale orasului Locatie si distante - Universitatea de Medicina si Farmacie Iuliu Hatieganu UMF - la aproximativ 500-600 m acces rapid pe jos in mai putin de 10 minute - Spitalul Clinic de Recuperare - la doar 200-300 m - Centrul orasului Piata Unirii - aproximativ 1 8 ...
Comision cumparator 2 TVA Ascendent Imobiliare Targu Mures este onorata sa va propuna spre vanzare o proprietate regim de vila situata in cartierul Unirii HS Residence pe Strada Constandin Hagi Stoian la doar 50 m de Calea Voincenilor in apropiere de Peco Penny si la 2 km de centrul localitatii Targu Mures Un punct forte al acestei resedinte il reprezinta zona retrasa invaluita in liniste si aer curat apreciata pentru momente de relaxare si reconectare Va invitam sa experimentati o vizionare initiala din locatia unde va aflati chiar acum prin accesarea turului virtual si a filmului de prezentare Tur virtual tridimensional https //my matterport com/show/ m cwNkNrFhRwc Film prezentare https //www youtube com/watch v Ce0vwmWEVZo Detalii tehnice apartamentul este compus din living spatios 20 60 mp bucatarie practica 6 72 mp dormitor confortabil 12 43 mp baie generoasa 5 60 mp hol aerisit 10 78 mp terasa logie 5 65 mp Se remarca prin stilul...
REF03B2709 Apartamen 2 camere de vanzare zona Park Lake - Dristor Apartamentul este situat la 2 minute de Park Lake 3-4 minute de Parc IOR si 10 minute de Metrou Dristor fiind o zona cu acces facil catre principalele puncte de interes Apartamentul este pozitionat la etajul 1 intr-un imobil de 10 etaje este semidecomandat cu o suprafata de 53mp are balcon inchis si izolat este renovat mobilat si utilat se preda ca in poze Constructie din 1966 ce beneficiaza de izolatie termica exterioara In apropiata vecinatate regasim mijloace de transport in comun spatii verzi magazine supermarket farmacii scoli etc Va astept la vizionare
Viziteaza site-ul CleverImobiliare ro si descopera oferta completa de apartamente din intreaga zona Theodor Pallady Peste 1000 de locuinte disponibile direct de la dezvoltator fara comision Gaseste locuinta perfecta pentru tine chiar acum Pret 75 137 Euro TVA Complex rezidential exclusivist format din 3 blocuri cu regim de inaltime P 3 Etaje design-ul minimalist cu ferestre largi ce creeaza spatii luminoase si confortabile dar si o conexiune naturala intre interior si exterior Comunitatea noastra ofera o experienta de viata contemporana cu un design inovator Indiferent daca preferati sa ramaneti activ sau sa va relaxati resedinta noastra va ofera toate aceste facilitati Alatura-te comunitatii noastre in care eleganta si modernitatea se intalnesc si vei putea beneficia de un stil de viata modern si durabil Blocul este proiectat foarte modern atat ca design cat si din punct de vedere al tehnologiilor de constructie materialele folosite fiind de cea mai buna ca...
București - 5 Iunie 2025
75.137 €
Atenție
Din motive de securitate și pentru protecția utilizatorilor, această funcționalitate nu este disponibilă pentru locația ta.