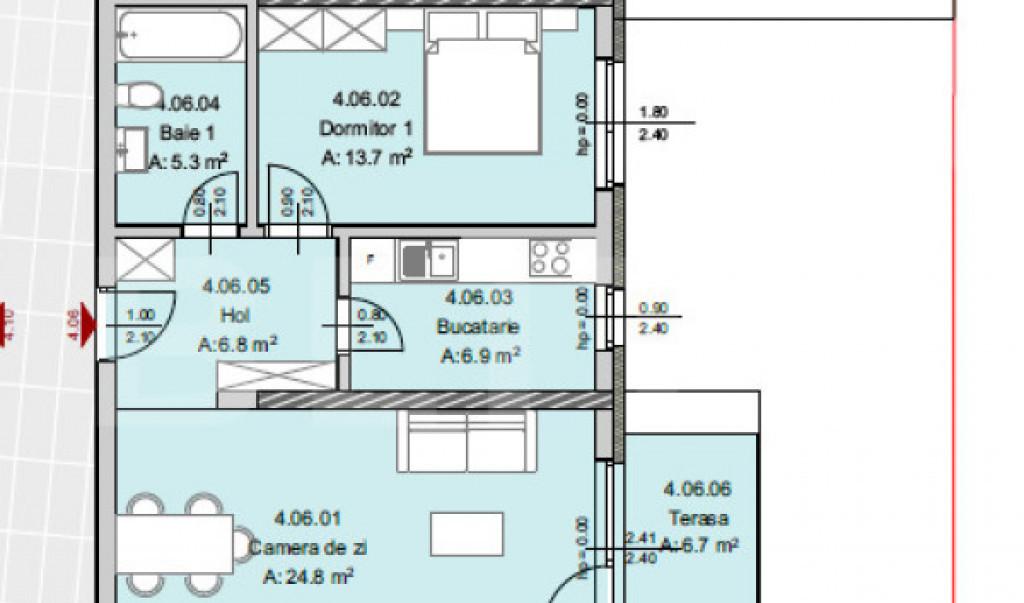
Blitz ofera spre vanzare un apartament de 2 camere cu 1 baie si Terasa de 6 mp in Zona The Office intr-un imobil in constructie cu termen de finalizare in ultima parte a anului 2027 Un nou inceput prinde contur in inima orasului tau Proiect imobiliar modern care imbina armonios locuintele spatioase cu functiuni comerciale utile pentru comunitate 49 de apartamente cu 2 3 si 4 camere cu suprafete intre 52 si 104 mp la care se adauga balcoane si terase generoase - intre 6 1 mp si 68 mp Spatii comerciale la parter cu suprafata de 78mp si 430mp cu acces direct si parcari dedicate 2 nivele subterane de parcari accesibile prin rampa auto La etajul 1 birouri cu suprafata intre 67mp si 179mp Confortul tau conteaza - fiecare apartament va fi dotat cu Incalzire in pardoseala Imobilul va fi racordat la reteaua de termoficare a orasului Tamplarie PVC cu 3 foi de sticla Izolatie exterioara performanta Totul pentru un consum energetic optim un climat interior placut in orice anotimp si costuri reduse Pretul afisat este pentru un avans de 90 Se accepta plata si prin credit bancar Exista posibilitatea achizitiei unui loc de parcare in subteran la 20000 Euro TVA Preturile afisate nu contin TVA Cod oferta / ID BLITZ P157070 Id intern P157070
⚠ AtenÈ›ie !
Nu plăti niciodată în avans într-un cont bancar până când nu l-ai întâlnit pe vânzător și ați semnat un acord.
Nu furniza informații confidențiale în discuții pe WhatsApp/Telegram sau alte aplicații de mesagerie unde utilizatorii își ascund ușor identitatea, deoarece te poți expune la fraude sau înșelăciuni.
Nu furniza niciodată detaliile cardului tău bancar (număr, data expirării, CVV). Te expune direct la fraude bancare.
Primirea unui mesaj pe WhatsApp/Telegram cu un ID scanat nu înseamnă că ai identificat cumpărătorul. Acest lucru se face pe loc, când semnați un acord de cumpărare.
Când comanzi online, alege livrarea cu verificare. Pentru un cost relativ mic, te protejezi de eventuale neplăceri.
Blitz va propune spre inchiriere un penthouse deosebit cu 4 camere de 110 mp 120 mp terasa amenajata Acest apartament este situat in Buna-Ziua in complexul rezidential Bonjour residance Apartamentul se inchiriaza mobilat si utilat mai putin un dormitor care se poate mobila la cerere Apartamentul este compartimentat astfel - un living mare de 40mp openspace cu bucataria si loc de luat masa -un dormitor matrimonial cu baie proprie un dormitor cu o canapea extensibila un dormitor/birou momentan nemoibilat o baie principala un hol mare -o terasa de 120mp cu pergola retractabila si loc de luat masa plus diverse spatii de depozitare Tot mobilierul si toate electrocasnicele sunt de foarte buna calitate aer conditionat plita cu inductie hota cuptor electric masina de spalat vase masina de spalat rufe cu uscator frigider In pret este inclus un loc de parcare in garajul subteran cu priza pentru incarcare masina si separat se mai pot inchiria doua locuri subterane ...
Blitz Imobiliare va propune spre vanzare un apartament cochet situat intr-o zona extrem de apreciata din cartierul Grigorescu intr-o casa cu curte comuna ideal pentru cei care isi doresc liniste intimitate si acces rapid catre oras Suprafata utila 52 mp Compartimentare semidecomandata Loc de parcare inclus Apartamentul se vinde mobilat si utilat fiind pregatit pentru mutare imediata Beneficiaza de bucatarie functionala baie cu geam pentru aerisire naturala spatii bine organizate atmosfera intima specifica locuintelor la casa Zona este recunoscuta pentru liniste si aer curat fiind retrasa de la traficul intens vecinatati de case cu un nivel ridicat de confort si siguranta acces rapid catre parcuri malul Somesului si zone de recreere apropiere de magazine servicii scoli si gradinite conexiuni rapide catre centrul orasului si principalele puncte de interes Aceasta proprietate este ideala atat pentru locuinta personala cat si pe...
Apartament de 2 camere in zona Torontalului e o zona in plina dezvoltare si cu multe facilitati in apropiere avand supermarket-uri benzinarii Iulius Town si alte beneficii Apartamentul este situat intr-un bloc nou avand o suprafata de 52 15 mp plus o gradina de 19 mp compartimentat astfel living cu acces pe balcon dormitor baie cu cada si bucatarie Locul de parcare este inclus in pret In aceast bloc exista mai multe variante de apartamente cu 2 camere respectiv 5 variante cele de la parter beneficiaza si de gradina de minim 19 mp Va recomand sa le descoperim impreuna Cod oferta / ID BLITZ P6070 Id intern P6070
Blitz va propune spre vanzare un apartament 2 camere modern parcare zona semicentrala Detalii proprietate Suprafata utila 46 mp Balcon 5 mp Etaj 1 din 7 Bloc nou Orientare Nord Compartimentare Living cu bucatarie open space 1 dormitor 1 baie 1 debara Parcare Loc de parcare suprateran cu CF situat in curte privata - inclus in pret Dotari si stare Apartamentul este finisat si mobilat modern Gata de locuit fara necesar de investitii Design actual functional si bine optimizat Avantaj major pentru investitori Proprietatea se poate prelua cu chiriasi existenti care locuiesc in prezent in apartament si isi doresc inchiriere pe termen lung Alte beneficii Blocul dispune de curte interioara si parc Zona centrala cu acces rapid la mijloace de transport magazine institutii si puncte de interes Cod oferta / ID BLITZ P161384 Id intern P161384
Blitz ofera spre vanzare o casa noua cu arhitectura moderna amplasata intr-o zona linistita cu panorama deschisa spre lac si expunere sudica ideala pentru cei care cauta lumina naturala intimitate si eficienta energetica Detalii proprietate Suprafata teren 772 mp Suprafata construita la sol 136 5 mp Suprafata construita desfasurata 261 mp Suprafata utila 150 mp Acces din doua strazi cu doua fronturi si porti glisante 4 locuri de parcare pavate cate 2 pe fiecare acces Compartimentare Parter living generos si foarte luminos baie bucatarie open space perete vitrat cu deschidere catre terasa acoperita de 29 mp Etaj 3 dormitoare 2 bai balcon panoramic de 24 mp cu balustrade din sticla Dotari si caracteristici tehnice Utilitati apa curent gaz fosa septica Predare la stadiu semifinisat avansat Pereti interiori finisati cu lavabil Incalzire in pardoseala centrala termica puffer puse in functiune Tamplarie REHAU 7 c...
Artemis Imobiliare va ofera spre vanzare un apartament cu 2 camere in zona Petrom Este pozitionat la etajul 3 al unui bloc cu regimul de inaltime P 7 finalizat in anul 2019 Compartimentarea este decomandata suprafata utila este de 50 mp si se prezinta astfel bucatarie living 2 dormitoare hol baie si balcon de 3 mp Este situat in zona foarte buna aproape de statii de mijloc de transport in comun si magazine Apartamentul se vinde complet mobilat si utilat finisajele fiind moderne In pret este inclus si un loc de parcare exterior Este o proprietate aparte care iti transmite un sentiment de acasa Va asteptam la vizionare ID Extern P124564 Id intern P124564
REA1025846 SVN Residentialist va ofera spre vanzare un apartament semidecomandat situat la parterul unui bloc cu 10 etaje amplasat pe partea din spate a imobilului pe mijloc intr-o zona linistita Locuinta este semistradala aflata chiar la intersectia dintre Bulevardul Iuliu Maniu si strada Apusului cu acces rapid la mijloace de transport si facilitati din zona Apartamentul este calduros iarna si racoros vara dispune de balcon pe dormitor si beneficiaza de loc de parcare ADP A fost recent renovat integral inclusiv instalatiile sanitare si electrice Se vinde cu bucataria complet mobilata si utilata fiind pretabil pentru credit ipotecar Liber mutare imediata Pentru detalii suplimentare sau pentru a programa o vizionare nu ezitati sa ne contactati Echipa SVN Residentialist va sta la dispozitie pentru a va facilita achizitia apartamentului mult visat
Vand apartament cu 2 camere decomandat in Popesti Leordeni complexul Apollo Apartamentul dispune de o suprafata utila totala de 52 6 mp gradina in proprietate de 25 mp Disponibil imediat Se poate achizitiona si locul de parcare separat in fata curtii la pretul de 7 000 euro Mijloace de transport in comun Metrou Berceni Metrou Dimitrie Leonida Autobuz linia verde Pret 100 000 euro Pentru mai multe detalii si vizionari ma puteti contacta la 0729 233 993 Alexandru Radu
REAl Imobiliare Apartament de 2 camere orientat EST aflat la etajul 8 din 8 intr-un bloc anvelopat constructie 1976 in zona Dorobanti la doar cativa pasi de Colegiul National Ion Luca Caragiale si Scoala Gimnaziala Titu Maiorescu cu acces rapid atat catre Televiziunea Romana cat si catre Piata Floreasca - Suprafata totala de 60 mp 54 mp utili 6 mp balcon deschis - Compartimentare living dormitor bucatarie inchisa baie 2 holuri spatii de depozitare si balcon deschis - Incalzire prin calorifere termoficare Acces rapid la transport public 2 minute pana la statiile STB 12 minute pana la metrou P-ta Victoriei sau 8 minute pana la metrou Stefan cel Mare Pentru detalii si vizionari contactati-ne specificand codul de identificare P9127 Id intern P9127
București - 7 Noiembrie 2025
124.990 €
Atenție
Din motive de securitate și pentru protecția utilizatorilor, această funcționalitate nu este disponibilă pentru locația ta.