Ansamblul Somesului 15 by Hexagon combina locuinte de 2 3 4 camere Materialele si dotarile sunt de cel mai inalt nivel iar ansamblul respecta standardele nZEB prin solutii sustenabile energie geotermala pompe de caldura panouri solare In plus Hexagon are o reputatie solida in piata--acest proiect este ideal pentru clientii care cauta confort calitate si un stil de viata urban responsiv Apartamentele se predau Semifinisate cu posibilitate de finisare Cladirea imbina un design rafinat cu eficienta energetica prin fatada ventilata cu tehnologie Hytect ce purifica aerul termoizolatie sanatoasa din vata bazaltica de 200 mm si tamplarii placate cu aluminiu dotate cu sticla tripan si jaluzele automate pentru protectie solara Echipamentele high-tech includ un sistem bivalent de incalzire si racire prin tavane pompe de caldura geotermale si solare panouri fotovoltaice pe acoperis si ventilare cu recuperare de caldura integrata in fatade Confortul si eficienta sunt amplificate de un sistem smart home pentru controlul incalzirii racirii iluminatului si jaluzelelor precum si de statiile de incarcare electrica inteligente din parcarea subterana Toate acestea sunt completate de o curte interioara amenajata peisagistic ca o oaza de liniste si un spatiu de joaca ce continua firesc peisajul malului Somesului Apartamentul prezentat are o suprafata utila de 68 mp plus o terasa de 11 1 mp Pretul parcarilor subterane incep de la 18 000 plus TVA Cod oferta / ID BLITZ P150592 Id intern P150592
⚠ AtenÈ›ie !
Nu plăti niciodată în avans până când nu l-ai întâlnit pe vânzător și ați semnat un acord.
Nu furniza informații confidențiale în discuții pe alte aplicații de mesagerie unde utilizatorii își ascund ușor identitatea.
Nu furniza niciodată detaliile contului sau cardului tău bancar.
Când comanzi online, alege livrarea cu verificare. Pentru un cost relativ mic, te protejezi de eventuale neplăceri.
Blitz oferă spre închiriere spațiu pentru birouri sau activități comerciale, cu o suprafață de 50 mp, situat în zonă centrală. Imobilul dispune de apă curentă, baie proprie și centrală termică, fiind ideal pentru birouri, cabinet, salon sau alte activități comerciale. Acces facil și vizibilitate bună. ???? Disponibil imediat Cod ofertă / ID BLITZ: P163142 Id intern: P163142
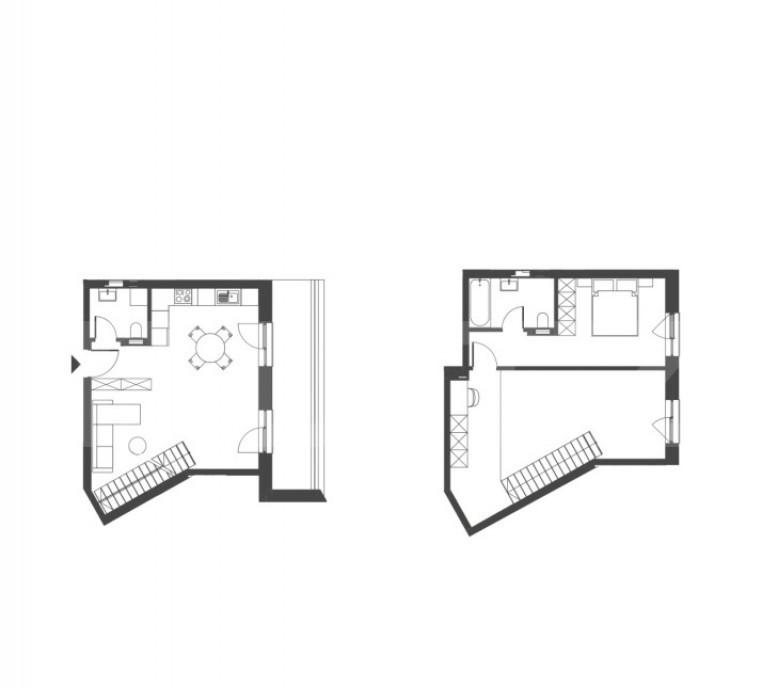
Blitz propune spre vânzare o casă cu design contemporan, aflată la intrare în Chinteni, în zona Profi – o locație liniștită și în plină dezvoltare, la doar câteva minute de Cluj-Napoca. Construită pe un teren de 500 mp, proprietatea impresionează prin arhitectura modernă și compartimentarea inteligentă, având o suprafață utilă de 125 mp: Parterul include: Hol generos la intrare Bucătărie spațioasă cu cămară separată Baie de serviciu Living luminos cu acces direct către o terasă de 32 mp Birou ideal pentru lucrul de acasă Spațiu tehnic Mansarda este dedicată zonei de noapte și oferă: Dormitor matrimonial cu dressing și baie proprie Două dormitoare secundare Baie spațioasă de 6.5 mp Casa va fi construită din cărămidă, cu acoperiș din țiglă ceramică, și se va preda la stadiul de semifinisat, ceea ce îți oferă libertatea de a o personaliza după propriul gust. Dotări tehnice moderne: Racordare la apă, curent și canalizare Încălzire prin pardoseală alimentată de pompă de căldură – soluție e...
Blitz ofera spre vânzare o casă individuală, tip P+E, situată într-o zonă liniștită și accesibilă din Barițiu, ideală pentru o familie care își dorește un cămin confortabil și modern. Proprietatea se întinde pe o suprafață utilă de 120 mp și beneficiază de un teren generos de 340 mp, oferind un spațiu suficient atât în interior cât și în curte.La parter, casa dispune de un living spațios,un dining perfect pentru momentele de relaxare în familie sau cu prietenii; șemineul pe lemne adaugă un plus de căldură și atmosferă. Bucătăria este open-space, complet mobilată și utilată cu aparatură de ultimă generație, oferind toate facilitățile necesare pentru gătit cu ușurință. De asemenea, la parter se află o cămară pentru depozitare, o baie de serviciu modernă, dar și un spațiu dedicat pentru depozitarea pantofilor, care adaugă un plus de funcționalitate locuinței.La etaj, găsim două dormitoare spațioase, fiecare având suficient loc pentru mobilier de calitate. Dormitorul principal beneficiază...
???? *Blitz ofera spre vânzare un apartament de vis, perfect pentru o familie mare!* ???? ???? *Apartament 4 camere, nou, mobilat și utilat la cel mai înalt standard!* ???? *Locație privilegiată* – într-o zonă liniștită, bine conectată la mijloacele de transport și în apropiere de școli, grădinițe, parcuri și facilități comerciale. ✨ *Caracteristici principale:* - *4 camere spațioase*, perfecte pentru o familie numerosă sau pentru cei care doresc spațiu suplimentar. - *Bucătrie mobilată și utilată* cu electrocasnice de ultimă generație: frigider cu sistem No Frost, plită cu inductie, cuptor incorporat, hotă puternică, mașină de spălat vase. Totul este nou și de înaltă calitate! - *Baie modernă* cu cada, chiuvetă elegantă și mobilieră de design. - *Sistem de încălzire calorefire pentru un confort maxim în orice sezon. - *Geamuri termopan* pentru izolare fonică și termică excelentă. - *Pardoseală de lux* în toate camerele (marmura de calitate si gresie antifală). - *Doua balcoane* unde ...
Blitz va propune spre vanzare un penthouse unic in ansamblu rezidential din zona Decebal. Acesta reprezintă un proiect rezidențial de excepție, ce se remarcă prin designul său contemporan și caracteristicile arhitecturale inovatoare, fiind unul dintre cele mai ambițioase proiecte de pe piața imobiliară. Amplasat la doar 50 de metri de vibrantul bulevard Decebal, cunoscut pentru atmosfera sa mondenă și oferta variată de restaurante și cafenele, ansamblul oferă rezidenților săi un stil de viață modern, dinamic și elegant. Situat la doar 200 de metri de Rondul Piața Alba-Iulia, ansamblul asigură un acces rapid către facilitățile zonei centrale, Unirii – Centrul Vechi, unde locuitorii pot beneficia de o paletă extinsă de servicii culturale și de divertisment. În proximitate se găsesc teatre, cinematografe, muzee, centre comerciale și pub-uri, creând astfel un mediu urban ideal, ce răspunde atât nevoilor cotidiene, cât și dorințelor de relaxare și socializare. Ansamblul se bucură de o pozi...
Blitz va propune spre vanzare un apartament intr-o zona aerisita cu locuinte individuale la doar 2 km de Cetatea Alba Carolina cu acces rapid la toate facilitatile importante magazine Lidl scoala spital parc transport public zona de agrement Zona exclusivista pentru constructia de locuinte colective de joasa inaltime si locuinte individuale aproape de Cetate dar fara haos urbanistic Cartier fara blocuri inalte - comunitate selecta acces controlat in imobil si parcare intimitate gradina spatiu verde amenajat loc de joaca pentru copii Apartamente finisate complet - Incalzire in pardoseala - Centrala termica proprie gaz - 1 aparat de aer conditionat 9000 BTU / apartament - Videointerfon la scara Sistem fotovoltaic care sustine consumul spatiilor comune Amenajari eco friendly spatii verzi alei pavate Locuri de parcare contra cost Cod oferta / ID BLITZ P153338 Id intern P153338
Va propunem spre vanzare un apartament primitor cu o suprafata utila de 52 mp situat la etajul 3 din 4 intr-un imobil aflat intr-un complex rezidential ce dispune de curte interioara ideal pentru cei care cauta liniste si confort departe de agitatia orasului Apartamentul se remarca printr-o compartimentare practica si un ambient placut fiind luminos si calduros dotat cu centrala termica proprie pe gaz ceea ce asigura un confort termic optim pe tot parcursul anului Se vinde complet mobilat si utilat exact ca in fotografii fiind gata pentru mutare imediata sau pentru investitie Zona este una foarte bine cotata Palazu Mare - Elvila apreciata pentru atmosfera sa calma si accesibilitate Statia de autobuz se afla la doar 200 m iar in imediata vecinatate regasiti farmacie si market pentru un plus de comoditate in viata de zi cu zi Apartamentul nu dispune de loc de parcare insa beneficiaza de avantajele unui complex ingrijit cu spatii comune aerisite Alte avanta...
De vanzare apartament cu 2 camere avand o suprafata utila de 47 3 mp disponibil la etajele 1 2 si 3 intr-un bloc nou P 3E Pod cu placa de beton finalizat in anul 2025 Predare la cheie cu finisaje interioare la alegerea cumparatorului Centrala termica pe gaz si calorifere Racordat la toate utilitatile apa canalizare gaze electricitate Blocul are o pozitie foarte buna situat chiar pe Soseaua Alexandriei la doar cateva minute de mijloacele de transport in comun si multiple spatii comerciale Ideal pentru locuit sau investitie Pentru detalii suplimentare si programarea unei vizionari va rog sa ma contactati la numarul de telefon 0736564292
Pyf009B12836 vanzare 2 camere Pret: 92000 Euro Zona: Berceni, Bucuresti Strada: Viilor ID oferta: Pyf009B12836 Acasa incepe cu un sentiment.......Poate fi o lumina calda intr-o dupa-amiaza linistita, un balcon cu vedere sau o bucatarie unde iti savurezi cafeaua de dimineata. Imagineaza-ti locuinta perfecta, care reflecta personalitatea ta si raspunde nevoilor tale zilnice. Echipa PYF REAL ESTATE te ajuta sa gasesti acel loc special pe care il poti numi acasa. Portofoliul nostru cuprinde proprietati atent selectate, ideale pentru tine si familia ta. Localizare: Berceni - (Eroii Revolutiei), una dintre cele mai cautate zone din Bucuresti, cu acces rapid la mijloace de transport in comun (scoala/gradinita, restaurant/pub, parc, benzinarie, fastfood, supermarket, banca, zona comerciala, autobuz, metrou), scoli, magazine, parcuri si centre comerciale. Detalii proprietate: Tip locuinta: Apartamente Tip operatiune: vanzare Numar camere: 2 camere (1 dormitoare) Suprafata utila: 48 mp Suprafat...
Smart Imobiliare propune spre vanzare un apartament se 2 camere semidecomandat situat la etajul 4 al unui bloc din zona Hipodrom Are o suprafata utila de 37 mp compusa din hol living dormitor bucatarie si baie Detine de asemenea un balcon inchis cu o suprafata de 5 mp si izolatie la acoperis Se vinde complet utilat si mobilat fiind gata de locuit Amplasarea il face sa fie in apropierea magazinelor a unitatilor de invatamant a parcurilor si a mijloacelor de transport Pentru mai multe detalii va rugam sa contactati agentul si sa specificati ID ul proprietatii P16129 Id intern P16129
Sibiu - 11 Noiembrie 2025
69.800 €
Atenție
Din motive de securitate și pentru protecția utilizatorilor, această funcționalitate nu este disponibilă pentru locația ta.