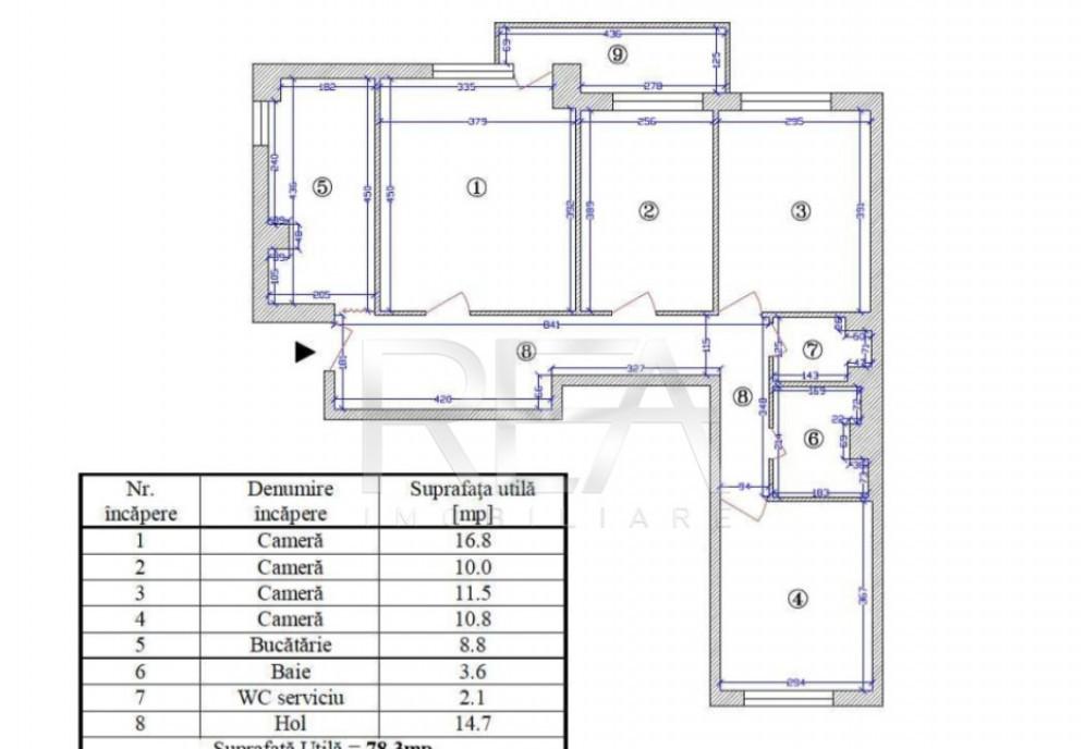
R E A Imobiliare va ofera spre vanzare un apartament cu 4 camere decomandat situat la Lujerului vizavi de Carrefour Lujerului Imobilul se afla intr un bloc de apartamente construit in anul 1977 reabilitar fara risc seismic la etajul 3/10 Este alcatuit din living 3 dormitoare bucatarie doua bai si un balcon Suprafata totala este de 82 9 mp iar cea utila este de 78 3 mp Apartamentul se vinde mobilat si utilat Confortul termic este realizat cu ajutorul retelei edilitare de termoficare In imediata apropiere se intalnesc puncte comerciale bancare farmaceutice medicale educationale si de divertisment Acces facil la mijloacele de transport in comun doua minute pana la statia de metrou/STB Lujerului Se accepta toate modalitatiile de plata Informatiile tehnice au caracter orientativ acestea fiind preluate de la proprietar Pentru mai multe detalii si vizionari ne puteti contacta telefonic specificand codul de identificare P7734 Id intern P7734
⚠ AtenÈ›ie !
Nu plăti niciodată în avans într-un cont bancar până când nu l-ai întâlnit pe vânzător și ați semnat un acord.
Nu furniza informații confidențiale în discuții pe WhatsApp/Telegram sau alte aplicații de mesagerie unde utilizatorii își ascund ușor identitatea, deoarece te poți expune la fraude sau înșelăciuni.
Nu furniza niciodată detaliile cardului tău bancar (număr, data expirării, CVV). Te expune direct la fraude bancare.
Primirea unui mesaj pe WhatsApp/Telegram cu un ID scanat nu înseamnă că ai identificat cumpărătorul. Acest lucru se face pe loc, când semnați un acord de cumpărare.
Când comanzi online, alege livrarea cu verificare. Pentru un cost relativ mic, te protejezi de eventuale neplăceri.
R E A Imobiliare va ofera spre inchiriere un apartament cu 2 camere situat langa Piata Gorjului pe Str Cernisoara Imobilul se afla intr-un bloc de apartamente construit in anul 1978 la etajul 6/10 Detine o suprafata totala de 51mp din care suprafata utila este de 47mp Este alcatuit din living dormitor bucatarie baie si balcon Apartamentul este complet mobilat si utilat Este renovat in totalitate Confortul termic este realizat cu ajutorul retelei edilitare de termoficare In imediata apropiere se intalnesc puncte comerciale bancare farmaceutice medicale educationale si de divertisment Acces facil la mijloacele de transport in comun 2 minute pana la statia Stb si metrou Gorjului Informatiile tehnice au caracter orientativ acestea fiind preluate de la proprietar Pentru mai multe detalii si vizionari ne puteti contacta telefonic specificand codul de identificare P9331 Id intern P9331
R E A Imobiliare Apartament cu 2 camere decomandat complet mobilat si utilat situat la etajul 9/10 intr-un bloc solid finalizat in 1974 si reabilitat termic Suprafata totala 43 mp din care 41 5 mp utili balcon inchis de 1 5 mp Configuratie dormitor living cu bucatarie open-space baie si balcon Sistem de incalzire racordat la centrala de termoficare Apartamentul impresioneaza printr-un design modern si functional bucatarie dispune de sticla securizata cu mobilier realizat pe comanda si multiple spatii de depozitare Este complet mobilat si utilat dotat cu -Electrocasnice premium BOSCH - frigider plita cuptor hota -Sistem de climatizare DAIKIN -Iluminat cu spoturi LED incastrate in tot apartamentul -Instalatii electrice si sanitare schimbate integral la renovare Beneficiaza de o boxa comuna perfecta pentru depozitare suplimentara si loc de parcare ADP valabil pana in martie 2026 Localizare excelenta La doar 1 minut de mers pe jos pan...
R E A Imobiliare Apartament cu 2 camere semidecomandat complet mobilat si utilat situat la etajul 4/5 intr-un bloc solid finalizat in 2015 Suprafata totala 72 31 mp din care 67 13 mp utili balcon deschis de 5 19 mp Configuratie dormitor living bucatarie baie si balcon Sistem de incalzire centrala proprie Apartamentul impresioneaza printr-un design modern si functional cu mobilier de calitate si multiple spatii de depozitare Este complet mobilat si utilat dotat cu -frigider aragaz hota microunde cafetiera -aer conditionat Loc de parcare este la subteran iar pretul acestuia este 12 000 euro Localizare excelenta La doar 10 minut de mers pe jos pana la metrou Valea Ialomitei si 5 minute pana la statiile STB In apropiere scoli gradinite magazine banci si parcuri fiind o zona linistita Pentru detalii si vizionari va rugam sa ne contactati mentionand codul de identificare P8912 Id intern P8912
R E A Imobiliare va ofera spre vanzare un apartament cu 3 camere decomandat situat in Drumul Taberei pe Bdul Timisoara Imobilul se afla intr-un bloc de apartamente construit in anul 1978 prevazut cu adapost antiatomic anvelopat in 2025 lift modern fara risc seismic la etajul 6/10 Detine o suprafata totala de 65 mp din care suprafata utila este de 59 5 mp Locuinta este alcatuita din living doua dormitoare bucatarie baie si balcon Apartamentul necesita renovare Se vinde partial mobilat si utilat Confortul termic este realizat cu ajutorul retelei edilitare de termoficare dar si cu ajutorul aparatului de aer conditionat In imediata apropriere se intalnesc puncte bancare comerciale farmaceutice medicale dar si de divertisment Acces facil la mijloacele de transport in comun 2 minute pana la statia Stb si 12-15 minute pana la statia de metrou Romancierilor Se accepta toate modalitatile de plata Informatiile tehnice au caracter orientativ acestea fiind preluate...
R E A Imobiliare va ofera spre vanzare un apartament cu 3 camere semidecomandat situat in Ghencea pe Str Constantin Titel Petrescu Imobilul se afla intr-un bloc de apartamente construit in anul 1983 fara risc seismic la etajul 9/10 Detine o suprafata totala de 72 mp din care suprafata utila este de 65 mp Locuinta este alcatuita din living doua dormitoare bucatarie doua bai si balcon Apartamentul necesita renovare Se vinde partial mobilat si utilat Confortul termic este realizat cu ajutorul retelei edilitare de termoficare dar si cu ajutorul aparatului de aer conditionat In imediata apropriere se intalnesc puncte bancare comerciale farmaceutice medicale dar si de divertisment Acces facil la mijloacele de transport in comun 2 minute pana la statia Stb Se accepta toate modalitatile de plata Informatiile tehnice au caracter orientativ acestea fiind preluate de la proprietar Pentru mai multe detalii si vizionari ne puteti contacta telefonic specificand co...
Va propunem spre vanzare un apartament deosebit cu 4 camere decomandat avand o suprafata totala de 96 mp situat in zona Parcului Sebastian cu acces rapid catre multe puncte de interes Imobilul se afla la etajul 2 din 8 intr-un bloc solid construit in anul 1987 bucatarie spatioasa si inchisa 2 bai una cu cada cealalta cu dus Balconul este destul de spatios inchis in termopan Centrala proprie pe gaz geamuri termopan de calitate 4 aparate de aer conditionat Loc de parcare ADP pentru anul in curs Documentele pentru anveloparea blocului in stadiu avansat Apartamentul a fost renovat complet in 2013 cu materiale calitative instalatiile electrice/sanitare schimbate complet Coloanele principale de apa ale intregului bloc au fost schimbate complet 2025 Zona este linistita si bine conectata la mijloacele de transport in comun iar in apropiere se regasesc magazine restaurante terase si parcuri ceea ce asigura un stil de vi...
Penthouse exclusivist 6 camere vederi panoramice uimitoare experienta de lux in inima Brasovului complex Sunnyville Plus Apartamentul se vinde la gri intabulat Mai mult am integrat si adaptat feedbackul utilizarii peretilor de caramida interior intre apartamente si exterior pentru o izolare fonica foarte performanta balcoanele sunt de tip logie o caracteristica unica in Brasov oferind protectie impotriva intemperiilor ploilor ninsorilor abundente un plus de utilitate si confort Pretul nu include TVA
Pantelimon-Piata Delfinului Apartament 4 camere 87 mp Decomandat compartimentat eficient amenajat si igienizat in stare perfecta scara curata Confortabil si luminos orientat spre sud-est si nord-vest Bloc construit in 1976 reabilitat termic vederea pe fata si spate disponibil la etajul 4 din 12 Interior spatios spatii de depozitare living 3 dormitoare 3 holuri 2 bai bucatarie 2 balcoane Ideal pentru o familie care isi doreste confort si acces rapid la facilitatile urbane Se vinde mobilat si utilat complet In proximitate Piata Delfinului Mega Mall Arena Nationala Parcul National Parcul Morarilor Pentru mai multe detalii va rog sa ma contactati Video de prezentare la cerere Comision 0 Cumparator
Proprietar - vand apartament spatios cu 4 camere situat pe Soseaua Colentina zona Raul Colentina vis-a-vis de Parcul Plumbuita Imobilul se afla intr-un bloc stradal oferind o priveliste frumoasa si acces facil catre zone verzi si mijloace de transport Apartamentul este decomandat confort 1 amplasat la etajul 4 avand o suprafata utila de 85 mp Compartimentarea include 4 camere 2 bai un balcon si o bucatarie complet mobilata si echipata gata de utilizare Dotari suplimentare 4 aparate de aer conditionat functionale dormitor cu pat matrimonial mobilier complet in living si alte spatii Blocul este anvelopat termic si reabilitat iar instalatiile electrica si sanitara au fost inlocuite integral Apartamentul se vinde impreuna cu un loc de parcare rezervat Ideal pentru familii sau investitie Pentru mai multe detalii sau pentru a programa o vizionare va rog sa ma contactati la numarul de telefon 0723448424
REA1023484 SVN Romania va propune spre vanzare un apartament deosebit situat intr-un bloc nou pe Soseaua Sisesti cu acces facil si pozitionare stradala Proprietatea se afla la parter si impresioneaza prin spatiu confort si amenajari de calitate superioara Cu o suprafata utila de 87 mp apartamentul este compartimentat inteligent living generos si luminos trei dormitoare primitoare doua bai moderne si o bucatarie inchisa complet echipata Se vinde complet mobilat si utilat cu electrocasnice incorporabile marca Samsung - plita frigider masina de spalat si uscator - toate integrate discret pentru un plus de eleganta Dotarile premium includ sistem de aer conditionat obloane electrice si aparatura de ultima generatie pentru un stil de viata modern si confortabil Piesa de rezistenta este terasa spectaculoasa de 65 mp utili amenajata cu gazon natural braduti decorativi foisor canapele si masa - un adevarat colt de relaxare in mijlocul orasului Apartamentul...
București - 4 Iunie 2025
398.900 €
Atenție
Din motive de securitate și pentru protecția utilizatorilor, această funcționalitate nu este disponibilă pentru locația ta.