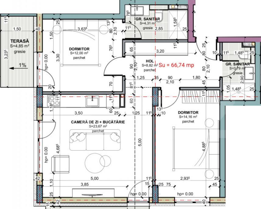
Blitz va prezinta un apartament cu 3 camere in Terra Gardens Cluj-Napoca - de la 1850 EUR/mp Locuinte moderne intr-un ansamblu exclusivist cu acces privat compus din case si blocuri cu regim redus de inaltime - o alegere ideala pentru familii sau investitie sigura Parcari subterane disponibile 10 000 EUR TVA INCLUS Plata in transe corelata cu stadiul lucrarilor sau plata prin credit ipotecar avans minim 50 Termen de finalizare august 2026 Comision 0 Exemplu disponibil - Etaj 3 o Suprafata utila 66 74 mp o 2 dormitoare 2 bai o Living generos bucatarie o 2 balcoane o Predare la stadiul de semifinisat - 2 maini de glet sapa instalatii trase pe pozitii o Incalzire in pardoseala o Centrala termica smart pe bloc Cod oferta / ID BLITZ P156640 Id intern P156640
⚠ AtenÈ›ie !
Nu plăti niciodată în avans într-un cont bancar până când nu l-ai întâlnit pe vânzător și ați semnat un acord.
Nu furniza informații confidențiale în discuții pe WhatsApp/Telegram sau alte aplicații de mesagerie unde utilizatorii își ascund ușor identitatea, deoarece te poți expune la fraude sau înșelăciuni.
Nu furniza niciodată detaliile cardului tău bancar (număr, data expirării, CVV). Te expune direct la fraude bancare.
Primirea unui mesaj pe WhatsApp/Telegram cu un ID scanat nu înseamnă că ai identificat cumpărătorul. Acest lucru se face pe loc, când semnați un acord de cumpărare.
Când comanzi online, alege livrarea cu verificare. Pentru un cost relativ mic, te protejezi de eventuale neplăceri.
Blitz va ofera spre vanzare un apartament cu 4 camere avand o suprafata utila de 80 mp situat in zona ultracentrala intr-un imobil bine intretinut aproape de toate punctele de interes ale orasului Locuinta se remarca printr-o spatiere inteligenta si practica oferind un echilibru perfect intre confort functionalitate si eleganta Compartimentarea este urmatoarea -living generos obtinut prin reunirea a doua camere cu o zona de relaxare ampla si luminata natural -bucatarie deschisa moderna si complet utilata -doua dormitoare confortabile -baie cu finisaje moderne -mansarda amenajata si utilata cu o suprafata egala cu cea a apartamentului ideala pentru spatiu de relaxare birou sau zona de hobby Apartamentul dispune de parchet din lemn masiv finisaje de calitate si o ambianta calda primitoare care imbina stilul clasic cu confortul modern Pozitionarea ultracentrala ofera acces facil la institutii restaurante cafenele centre comerciale scoli si mijlo...
Blitz va propune spre vanzare un apartament cu 4 camere situat intr-un complex nou din Valea Lupului Cu o suprafata utila de 94 m2 apartamentul se dezvolta pe doua niveluri combinand confortul unei locuinte decomandate cu zona de zi deschisa tip open-space Compartimentarea inteligenta si spatiul generos fac din acest apartament o locuinta confortabila si functionala gata sa fie locuit Caracteristici -Living cu bucatarie open-space -Doua niveluri pentru organizarea clara a zonelor -Balcon deschis -Incalzire in pardoseala cu centrala termica -Apartament complet mobilat si utilat -Parcarea si boxa sunt incluse in pret Avantaje -Compartimentare eficienta si spatiu generos pentru intreaga familie -Zona de zi open-space luminoasa si primitoare -Doua niveluri pentru intimitate si flexibilitate in organizarea camerelor -Confort termic optim si facilitati incluse -Apartamentul este intabulat si cu toate actele in regula gata pentru mutare Va invitam la vizio...
Blitz va propune spre vanzare un apartament luminos spatios cu 3 camere open space mare bucatarie living cu posibilitate de recompartimentare in 4 camere situat intr-una dintre cele mai cautate zone ale Iasului - Bucsinescu la doar cateva minute de puncte de interes facultati scoli si zone comerciale Etaj 2/5 Bloc Nou construit in 2013 Lift Nou Loc de parcare Adapost de aparare civila buncar Apartamentul se remarca printr-o compartimentare moderna cu living si bucatarie open space oferind flexibilitate pentru transformarea intr-un apartament cu 4 camere dupa preferintele viitorului proprietar Structura pe cadre din beton armat permite renovari si compartimentari suplimentare fara restrictii majore Se poate renova dupa preferinte iar in pret este inclus si proiectul complet de design interior ideal pentru cei care doresc sa-si personalizeze locuinta Se accepta avans cu rest de plata in maximum 1 an sau credit bancar Aceasta proprietate reprezint...
Blitz iti propune sa descoperi o proprietate deosebita cu arhitectura moderna mediteraneana amplasata pe un teren de 500 mp cu acces facil direct din Centura Iasi Casa are o suprafata construita de 178 mp este complet utilata si se preda la cheie in aprilie 2025 Caracteristici generale Stil modern luminos si elegant Toate utilitatile gaz apa canalizare curent electric Compartimentare excelenta ideala pentru familii Dormitor la parter un mare avantaj pentru confort Priveliste superba catre lac liniste si natura Compartimentare detaliata Beci 21 35 mp Parter Living 29 90 mp Hol 11 80 mp Baie musafiri 3 90 mp Bucatarie 14 45 mp Dormitor 19 70 mp Baie dormitor 6 55 mp Terasa intrare 2 60 mp Terasa bucatarie 10 50 mp Etaj Hol 14 85 mp Dormitor 1 17 45 mp Dormitor 2 14 45 mp Dormitor 3 12 65 mp Baie 10 90 mp Balcon dormitor 2 4 20 mp Balcon dormitor 3 terasa 15 35 mp Avantaje suplimentare Zona deosebit de linistita cu...
Blitz va propune spre vanzare apartament semidecomandat cu 3 camere 63 mp utili mobilat si utilat complet situat la etajul 3 din 3 singur pe tot nivelul Imobilul este amplasat intr-un bloc din caramida izolat termic la exterior situat in zona cu acces facil catre oras la mica distanta de statia de autobuz M21 si toate punctele importante ale orasului Apartamentul dispune de finisaje de lux gresie in tot apartamentul centrala termica proprie cu incalzire in pardoseala Rehau electrocasnice Electrolux automatizare pe 3 zone Salus aer conditionat in living si dormitorul principal tamplarie PVC cu geam termopan usa metalica la intrare si este compus din living cu bucatarie open space 2 dormitoare baie si terasa de 88 mp Locul de parcare este inclus in pret Pentru mai multe detalii nu ezitati sa ne contactati Cod oferta / ID BLITZ P149965 Id intern P149965
Va doriti un apartament in zona care v-ati nascut Vreti sa fiti aproape de familia Dumneavoastra Vreti sa fiti aproape de locul de munca sau aveti un business aici Va doriti o zona cu multiple oportunitati si facilitati Pentru toate acestea sau pentru orice alte necesitati avem noi ceea ce va doriti Apartamentul quot BENEIT quot se afla in zona Obor-Pasajul Obor intr-un quot BLOC STRADAL quot quot REABILITAT TERMIC quot cu o scara curata la etajul 3 ce are o suprafata utila totala de de 70 mp De cand intri in el te cuprinde sentimentul de quot ACASA quot si din prima clipa simti quot ABUNDENTA ENERGIEI POZITIVE quot datorate luminii naturale si o intimitate care te imbie sa il cunosti in profunzime Proprietarii au o viziune moderna asupra spatiilor si au gandit aici o amenajare prietenoasa de bun gust cu elemente de design interior ce ii da o nota de autenticitate Am apreciat culorile mobilierul minimalist de bun gust si impartirea spatiului i...
Vanzare apartament 3 camere - 70 mp - Etaj 4/4 - Piata Sudului Se ofera spre vanzare un apartament de 3 camere situat la etajul 4 din 4 cu o suprafata de aproximativ 70 mp Imobilul este construit in anul 1970 este fara risc seismic si anvelopat termic Apartamentul necesita renovare oferind posibilitatea de a fi amenajat dupa gustul viitorului proprietar Localizare strada Aleea Terasei - zona linistita si foarte bine conectata Avantaje si locatie Bloc solid anvelopat termic construit in 1970 Scoala la 3 minute de mers pe jos Magazine si supermarketuri in imediata apropiere Metrou Piata Sudului la 6 minute de mers pe jos Parc in fata blocului Statie de autobuz la 3 minute Zona este excelenta potrivita pentru locuinta proprie sau investitie Pentru detalii si vizionari 0729697263 Alexandru
Apartament 3 Camere Metrou Piata Sudului Str Nitu Vasile Balcon Bloc Anvelopat Localizare excelenta Situat pe Strada Nitu Vasile la doar cateva minute de mers pe jos de statia de metrou Piata Sudului si Fantana Florilor Zona linistita cu acces rapid la centre comerciale mijloace de transport scoli si parcuri Detalii apartament Suprafata 60 14 mp Compartimentare Decomandat Etaj 2 din 4 Balcon Bloc anvelopat termic eficienta energetica sporita An constructie 1965 Fara risc seismic Ideal pentru locuit sau investitie apartamentul beneficiaza de o compartimentare practica si lumina naturala pe tot parcursul zilei Nu rata aceasta oportunitate Programeaza o vizionare chiar azi Reper Piata Sudului Serviciul nou oferit de PREMIER Imobiliare Solicita acum VIZIONARE ONLINE pentru aceasta proprietate
Agentia imobiliara Mervani va prezinta un apartament cu 3 camere edificat in anul 2008 situat la etajul 7 al unui bloc cu 9 etaje in zona Belle View a orasului Sinaia Imobilul beneficiaza de o terasa generoasa ce ofera acces catre o priveliste deosebit de frumoasa Apartamentul cu suprafata construita de 78 87 mp si suprafata utila de 62 32 mp se vinde impreuna cu locul de parcare in suprafata de 10 50 mp situat la subsolul imobilului Tamplaria apartamentului este din PVC Incalzirea se realizeaza cu centrala termica pe gaz Imobilul este dotat cu lift si beneficiaza de paza Compartimentare - bucatarie de tip open-space - camera de zi - hol - 2 dormitoare Pentru mai multe detalii si fotografii accesati site-ul nostru mervani ro
Blitz intermediaza spre vanzare un apartament cu 3 camere un refugiu urban contemporan care imbina rafinamentul si potentialul nesfarsit al designului interior Cu o locatie privilegiata si o vedere panoramica asupra orasului acest spatiu reprezinta o oportunitate unica de a-ti crea casa de vis personalizata exact asa cum iti doresti Urcand pe scara interioara vei descoperi etajul superior unde se afla cele trei camere fiecare oferind spatiu generos si lumina naturala Aceste camere pot fi transpuse in dormitoare confortabile birouri de lucru sau orice alta destinatie pe care ti-o doresti Apartamentul semifinisat iti ofera libertatea de a-ti personaliza in detaliu interiorul alegand finisaje si accesorii care sa reflecte stilul tau unic si preferintele personale Cu o locatie centrala si acces facil la facilitatile urbane vei fi mereu conectat la pulsul orasului bucurandu-te de tot ceea ce acesta are de oferit Contracost se poate achizitiona loc de parcare boxa si ...
Suceava - 22 Iunie 2025
99.000 €
Atenție
Din motive de securitate și pentru protecția utilizatorilor, această funcționalitate nu este disponibilă pentru locația ta.