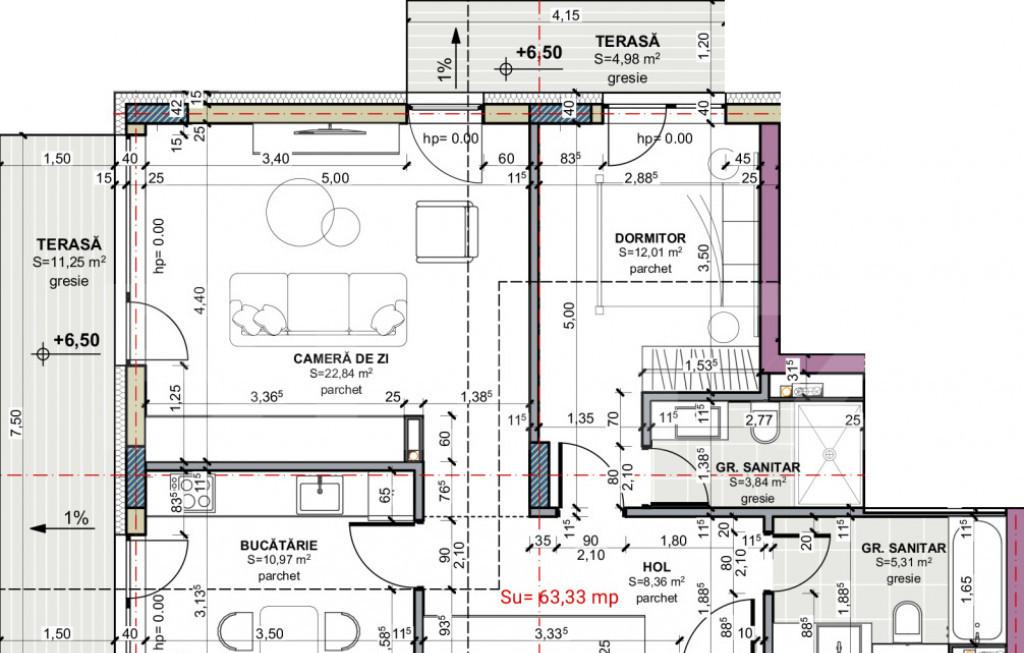
Blitz va prezinta un apartament cu 3 camere in Terra Gardens Cluj-Napoca - de la 1850 EUR/mp Locuinte moderne intr-un ansamblu exclusivist cu acces privat compus din case si blocuri cu regim redus de inaltime - o alegere ideala pentru familii sau investitie sigura Parcari subterane disponibile 10 000 EUR TVA INCLUS Plata in transe corelata cu stadiul lucrarilor sau plata prin credit ipotecar avans minim 50 Termen de finalizare august 2026 Comision 0 Exemplu disponibil - Etaj 2 o Suprafata utila 63 33 mp o 2 dormitoare 2 bai o Living generos bucatarie o 2 balcoane mari o Predare la stadiul de semifinisat - 2 maini de glet sapa instalatii trase pe pozitii o Incalzire in pardoseala o Centrala termica smart pe bloc Cod oferta / ID BLITZ P156619 Id intern P156619
⚠ AtenÈ›ie !
Nu plăti niciodată în avans într-un cont bancar până când nu l-ai întâlnit pe vânzător și ați semnat un acord.
Nu furniza informații confidențiale în discuții pe WhatsApp/Telegram sau alte aplicații de mesagerie unde utilizatorii își ascund ușor identitatea, deoarece te poți expune la fraude sau înșelăciuni.
Nu furniza niciodată detaliile cardului tău bancar (număr, data expirării, CVV). Te expune direct la fraude bancare.
Primirea unui mesaj pe WhatsApp/Telegram cu un ID scanat nu înseamnă că ai identificat cumpărătorul. Acest lucru se face pe loc, când semnați un acord de cumpărare.
Când comanzi online, alege livrarea cu verificare. Pentru un cost relativ mic, te protejezi de eventuale neplăceri.
Blitz va ofera spre vanzare un apartament modern si foarte bine compartimentat situat pe strada Daliei Baia Mare intr-un bloc nou izolat interior si exterior cu lift pe scara si supermarket la parter Locuinta are o suprafata de 49 mp utili la care se adauga un balcon spatios perfect pentru relaxare Apartamentul beneficiaza de incalzire in pardoseala si clasa energetica A asigurand un consum redus si confort termic excelent pe tot parcursul anului Interiorul este amenajat cu mult bun gust folosind materiale de calitate superioara si mobilier realizat integral la comanda care ofera atat estetica cat si functionalitate Livingul este luminos si aerisit cu o canapea eleganta si accente moderne iar bucataria open-space este complet mobilata si utilata integrandu-se perfect in designul general al locuintei Baia impresioneaza prin finisajele premium si detaliul aparte al ferestrei catre dormitor un element modern care aduce lumina naturala si un plus de stil Apa...
Blitz va propune spre inchiriere un apartament tip studio cu o suprafata utila de 40 mp situat ultracentral in zona Bulevardul Iuliu Maniu - o locatie ideala pentru cei care apreciaza accesul rapid catre toate punctele importante ale orasului Detalii proprietate Suprafata utila 40 mp Situat la demisol Compartimentare eficienta spatiu deschis Terasa interioara generoasa perfecta pentru serile relaxante cu prietenii Compartimentare practica Spatiu de zi cu zona pentru dormit si living Bucatarie deschisa mobilata si utilata Baie cu finisaje moderne Dotari beneficii Contorizare separata pentru toate utilitatile Spatiu ideal pentru relaxare si socializare pe terasa interioara Pozitionare excelenta in zona Bulevardul Iuliu Maniu locatie ultracentrala cu acces rapid la mijloacele de transport magazine si facilitati urbane Disponibil imediat - programeaza o vizionare cu Blitz si descopera un spatiu modern prac...
Apartament cu 3 camere 66mp foarte luminos modern aproape nou terasa garaj - etaj 1 zona Urusagului Localizare practica dar retrasa In zona Urusagului zona linistita cu acces usor catre padure Statii de autobuz magazine gradinite - toate la cateva minute de mers pe jos Etajul 1 din 3 - considerat cel mai cautat pentru confortul termic si accesibilitate Garaj individual la subsolul blocului inclus in pret Apartament modern aproape nou - locuit doar ocazional arata si se simte ca nou Compartimentare practica living cu bucatarie open space 2 dormitoare baie dresing sau poate fi a 2 -a baie hol Totul este mobilat si utilat cu bun gust cu finisaje moderne si electrocasnice in stare excelenta - gata de mutare imediata fara alte investitii Ideal pentru familii tineri profesionisti sau ca investitie - pozitia confortul si facilitatile complete fac din acest apartament o alegere sigura si valoroasa pe termen lung C...
Blitz va ofera spre vanzare acest apartmanet cu 2 camere din zona Dacia Apartamentul e pozitionat la etajul 2/4 intr-un bloc izolat termic Fiind etaj intermediar costurile de intretinere sunt decente Instalatii electrice schimbate in 2012 pereti refacuti sapa modificata Te astept la o vizionare Cod oferta / ID BLITZ P155525 Id intern P155525
Blitz propune spre vanzare un apartament modern cu 3 camere decomandat 65 mp balcon inchis zona Somesului Bloc din caramida 2014 intr-o zona linistita cu acces rapid spre Cluj 6 minute aproape de Profi stadion teren de fotbal parcuri magazine si statii de transport - eviti traficul de dimineata Detalii principale o 65 mp utili balcon inchis spatios o Decomandat 2 dormitoare living bucatarie separata o Usa glisanta mare din sticla intre living si bucatarie o Parcare inclusa in pret cu CF separat o Se accepta credit ipotecar Dotari finisaje o Mobilat si utilat complet exact ca in poze o Mobilier pe comanda culori moderne armonioase o Centrala termica incalzire prin calorifere o Tamplarie termopan usa metalica la intrare o Bloc izolat exterior apartament calduros si luminos o Vecini tineri comunitate faina Ideal pentru familie sau investitie spatiu optim compartimentare excelenta parcare in propriet...
Va prezentam spre vanzare un apartament decomandat situat in zona Unirii pe strada Panait Cerna Apartamentul se afla la etajul 2 al unui bloc solid de 9 niveluri construit in anul 1989 ideal pentru cei care isi doresc o locuinta centrala dar linistita Cu o suprafata utila totala de 76 mp si o compartimentare practica si bine gandita proprietatea include un living spatios 2 dormitoare orientate catre N-V o bucatarie separata ideala pentru gatitul in voie o baie principala cu cada si o baie de serviciu Cele 2 holuri leaga armonios camere intre ele iar debaralele sunt un plus pentru depozitare Locuinta se afla intre cele doua metrouri Timpuri Noi 10 minute de mers pe jos si Piata Unirii 15 minute de mers pe jos si poate reprezenta atat un camin cat si o alegere sigura pentru investitie Va asteptam la vizionare
REA1025969 SVN Residentialist Pipera va propune spre vanzare un apartament de 3 camere situat in zona Salajan o locatie linistita sigura si bine conectata la principalele puncte de interes ale orasului Proprietatea se remarca prin spatiul generos compartimentarea functionala si finisajele moderne oferind confortul ideal pentru o familie sau un cuplu care isi doreste un camin elegant si bine amplasat Zona Salajan este una dintre cele mai cautate din estul Bucurestiului datorita accesului facil catre mijloacele de transport in comun inclusiv statia de metrou si proximitatii fata de numeroase facilitati urbane - centre comerciale scoli gradinite restaurante si spatii verzi De asemenea accesul rapid catre bulevardele principale si autostrada A2 reprezinta un avantaj major pentru cei care apreciaza mobilitatea Imobilul se afla intr-un ansamblu rezidential modern curat si sigur beneficiind de locuri de parcare spatii verzi si zone comune bine intretinute Apartamentu...
Va prezint un apartament modern si elegant situat in ansamblul rezidential si exclusivist Cortina 126 din Bd Erou Iancu Nicolae Voluntari ce dispune de facilitati premium si securitate 24/7 Suprafata utila 71 4 mp Terasa 11 7 mp perfecta pentru relaxare Compartimentare 3 camere un living luminos si 2 dormitoare cu design modern si functional ideal pentru confort si stil de viata activ 2 bai bucatarie open space Etaj 5/10 An constructie 2024 Finisaje ultrafinisat cu materiale premium Parcare loc de parcare 22 500e tva Zona rezidentiala este excelenta aproape de centre de afaceri restaurante scoli si mijloace de transport Contacteaza-ma pentru detalii sau o posibila vizionare
Agentia Confort Casa Imobiliare va propune spre achizitie un apartament de 3 camere semidecomandat in suprafata totala 69 52 mp 1 balcon inchis 2 grupuri sanitare etaj 5/10 bloc 1979 Apartament necesita renovare Situat la 7 min de metrou Piata Iancului si la 6 statii de troleibuz de Universitate la 10 minute de mers de Parcul Lia Manoliu si de Arena Nationala si Mega Mall Zona Iancului-Cristescu Dima Va asteptam la vizionare Exclusivitate Comision standard 3